
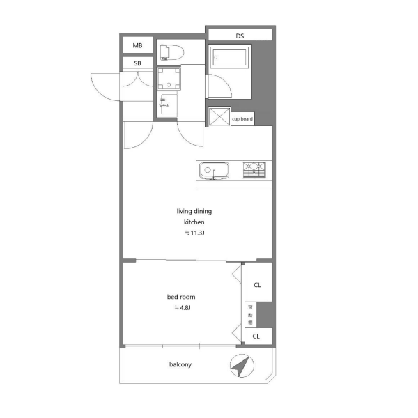
1LDK
1LDK
特徴ピックアップ
- 複数駅・路線利用可能な好アクセス◎
- 1人暮らしにぴったりな37.31㎡・1LDK
- リノベーションが施された上品な内装✧
- 陽当り良好☀南東向きのお部屋
編集部の部屋レポ
ゼロレボ編集部が実際に現地を訪れました。
写真や図面だけじゃわからない
リアルな空気感を全力でお届けします!
-
1 / 8
-
2 / 8
-
3 / 8
-
4 / 8
-
5 / 8
-
6 / 8
-
7 / 8
-
8 / 8
その他の室内・設備写真
ゼロレボ編集部が
お部屋を訪れてみて
赤坂見附駅と赤坂駅、どちらからも徒歩4分という便利な立地に佇む『ライオンズマンション赤坂第2』。駅近の好条件ながら、落ち着いた暮らしが叶う住まいです。お部屋は1人暮らしはもちろん、2人での生活にも程よいサイズ感。昭和築ならではのレトロな外観を持ちながら室内はしっかりリノベーションが施されており、まるで新しい空間に生まれ変わっています✧柔らかなグレーのクロスとモノトーンを基調としたデザインが、スタイリッシュで洗練された印象を与えてくれます。さらに床には明るい木目のフローリングが敷かれており、クールな雰囲気の中にも自然な温もりを感じられる心地よさがありました。ぜひ、実際に現地でもご確認いただきたい一室です。 ライター:hana【25I29】
もっと見る毎月の支払い予想シミュレーション
- ローン支払い目安
- 131,876円/月
- 管理費
- 15,564円/月
- 修繕積立金
- 10,376円/月
- 合計
- 157,816円/月
※ローンの目安は、頭金ゼロ、借入年数35年、都市銀行・変動金利0.595%(優遇利用を想定。)審査内容により、融資の一部または全部をご利用いただけない場合がございます。予めご了承ください。
住戸概要
- 価格
- 4,999

- 所在階
- 3

- 間取り
- 1LDK
- 専有面積
- 37.31

- バルコニー
- 3.69

- 管理費
- 15,564

- 修繕積立費
- 10,376

- リノベーション
現在、この物件に
成約済みのお部屋情報はありません。
ライオンズマンション赤坂第2建物全体と周辺環境
アクセス
- 東京メトロ千代田線 『赤坂』駅 徒歩4分
- 東京メトロ銀座線/丸ノ内線 『赤坂見附』駅 徒歩4分
- 東京メトロ有楽町線/半蔵門線/南北線 『永田町』駅 徒歩7分
- 東京メトロ銀座線/半蔵門線/都営大江戸線 『青山一丁目』駅 徒歩14分
物件概要
- 物件名
- ライオンズマンション赤坂第2
- 所在地
- 港区赤坂4-3-31
- 築年数
- 昭和52年1977年6月
- 構造
- 鉄骨鉄筋コンクリート造
- 階数
- 5階建
- 土地
- 所有権
- 総戸数
- 15戸
- 管理会社
- 自主管理
- ペット飼育
- 不可
- 学区(小学校)
- 赤坂小学校
- 学区(中学校)
- 赤坂中学校
- 共用・設備
-
- エレベーター
- オートロック
- 防犯カメラ
- 共用・テナント
-
- 不動産屋
- 美容室
今見ている物件以外も、
仲介手数料が最大無料。
リノベーションご売却についてもお気軽にご相談ください!
リノベーションご売却もゼロレボにお任せください
無料お問い合わせはこちら
ご希望条件に
ぴったりの
お部屋が
見つかりませんか?
当サイトに掲載していない物件でも、仲介手数料無料または割引でご案内! 条件に合う物件をプロが一緒にお探しします。
港区のおすすめ物件
-
NEW26,800万円1戸公開中静寂へと導く邸宅
有栖川ナショナルコート
3LDK/109.27㎡港区 広尾駅 -
NEW4,798万円1戸公開中この地で気ままに
クレール芝
1K/38.03㎡港区 三田駅 -
NEW36,800万円1戸公開中スペシャルな日々を期待して
パークコート麻布十番三田ガーデン
3LDK/72.08㎡港区 麻布十番駅 -
NEW7,850万円1戸公開中都心で過ごす新生活
秀和第2北青山レジデンス
2LDK/45.50㎡港区 外苑前駅 -
NEW13,990万円1戸公開中暮らしやすさを極めた住まい
ザ・パークハウス西麻布レジデンス
1LDK/43.19㎡港区 広尾駅 -
NEW45,900万円1戸公開中アーバンな暮らし
赤坂タワーレジデンスTop of the Hill
2LDK/76.72㎡港区 赤坂駅 -
NEW20,000万円2戸公開中港区アドレスのタワマン暮らし
カテリーナ三田タワースイート
1LDK/53.10㎡港区 三田駅 -
NEW8,490万円1戸公開中魅惑のレインボーブリッジビュー
クレストフォルム田町ベイフロントスクエア
2LDK/55.21㎡港区 日の出駅














