
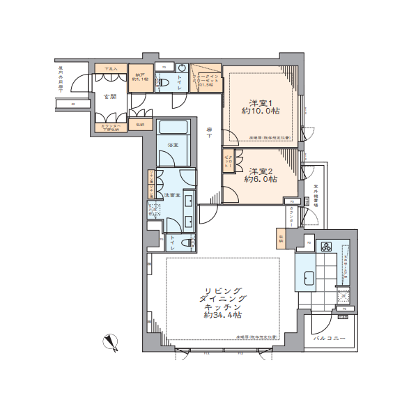
2LDK+WIC+納戸
2LDK+WIC+納戸
特徴ピックアップ
- 贅沢な広さ◎専有面積120㎡超の2LDK
- 約34.4帖もの開放的なメインルーム◎
- お料理好きに嬉しいコの字型キッチン
- 寒い時期でも快適♪床暖房完備
編集部の部屋レポ
ゼロレボ編集部が実際に現地を訪れました。
写真や図面だけじゃわからない
リアルな空気感を全力でお届けします!
-
1 / 8
専有面積122.72㎡という広さを贅沢に使った、3階部分の2LDK住戸。空間に余白があるからこそ、将来的には3LDKへとアレンジできる柔軟さも魅力です。2025年6月のリノベーションにより室内は現代的で上品な雰囲気に刷新。ペットと一緒に暮らせる点や、アフターサービス保証が付帯する点もこれからの暮らしを長く見据える方にとって心強いポイント。
-
2 / 8
約34.4帖の広さを誇るリビングダイニングキッチンは、この住まいを象徴する開放的な空間。大型のソファやゆったりとしたダイニングセットを配置しても動線に余裕があり、窮屈さを感じさせません。さらに床暖房を完備しているため、寒い季節でも足元からやさしい暖かさに包まれ家族が自然と集まる心地よいリビングが叶います。
-
3 / 8
広々としたワークトップが魅力のコの字型キッチン。下部収納も豊富で、調理器具や食器類をすっきりと収めることが可能。作業効率を考えたレイアウトにより、毎日の料理がスムーズに◎使い勝手の良さが、暮らしの満足度を高めてくれますよ。
-
4 / 8
LDKの一角に設けられたDENは、暮らしに+αの価値をもたらす空間。造作の収納棚があるため作業道具をまとめやすく、空間を美しく保てます。窓からの柔らかな光を感じながら仕事に集中したり、趣味の時間を楽しんだりと使い方は自由自在。
-
5 / 8
主寝室としても十分な広さを確保した約10帖の洋室。ベッド周りに余白があるため、サイドテーブルや収納家具を置いてもゆったりとした印象です。無駄のない間取りが、心からくつろげる寝室作りを快適にサポート。
-
6 / 8
さらに洋室には大容量のウォークインクローゼットを完備。衣類を用途別に分けて収納できるため、毎日の身支度もスムーズ。大型荷物まで収められる余裕があり、住空間全体を美しく整えたい方に心強い設備です。
-
7 / 8
ゆとりを感じさせるサニタリールームには、2ボウルタイプの洗面化粧台を設置。ホテルライクな佇まいと実用性を兼ね備え、日常の支度時間を快適に演出します。細かなアイテムまで整理できる収納力もあり、水回りを清潔に保ちやすい設計に。
-
8 / 8
程よい広さの北側バルコニーは、洗濯物干しとしてはもちろんちょっと外に出て深呼吸したい時にも活躍。暮らしの合間に自然を感じられる、控えめながらも嬉しいアウトドアスペースですね☀
その他の室内・設備写真
ゼロレボ編集部が
お部屋を訪れてみて
今回ご紹介したのは『パークレ・ジェイド白金レジデンス』3階に位置する1室。このお部屋の最大の魅力は、何と言っても約34.4帖という圧倒的な広さを誇るメインルーム!大きく取られた窓からは安定した光が差し込み、視線が奥へと抜けることで実際の帖数以上に開放感を感じさせてくれます。北向き住戸のため強い直射日光による家具やフローリングの日焼けを抑えやすい点も、長く美しい住空間を保ちたい方には嬉しいポイント。LDKの一角には造作のカウンターデスクを設置。ワークスペースとしての利用はもちろん、お気に入りのアートや雑貨を並べるディスプレイスペースとしても活躍しそうでした◎随所に設けられた収納は見せる収納と隠す収納をバランス良く配置しており、生活感を抑えた洗練された空間作りが可能です。また、ゆとりあるコの字型キッチンもこの住戸ならでは。作業動線が短く、複数人での調理にも余裕があります。対面側はフラットなカウンター仕様となっており、椅子を添えれば軽食や会話を楽しむ場としても利用可能。住まうほどに心地よさを実感できる上質な暮らしが叶う1室です。ぜひ現地で、この空間の魅力をご体感ください♪ ライター:hana【26A05】
もっと見る毎月の支払い予想シミュレーション
- ローン支払い目安
- 1,292,383円/月
- 管理費
- 61,260円/月
- 修繕積立金
- 53,170円/月
- 合計
- 1,406,813円/月
※ローンの目安は、頭金ゼロ、借入年数35年、都市銀行・変動金利0.595%(優遇利用を想定。)審査内容により、融資の一部または全部をご利用いただけない場合がございます。予めご了承ください。
住戸概要
- 価格
- 48,990

- 所在階
- 3

- 間取り
- 2LDK+WIC+納戸
- 専有面積
- 122.72

- バルコニー
- 4.50

- 管理費
- 61,260

- 修繕積立費
- 53,170

- インターネット料
- 1,265円/月
- トランクルーム使用料
- 無償
- トランクルーム電気使用料
- 変動
- トランクルーム
- 約1.5㎡
- 備考
- 買主負担で3LDKに変更可
- リノベーション
- アフターサービス保証付
- 住宅ローン控除対象
現在、この物件に
成約済みのお部屋情報はありません。
パークレ・ジェイド白金レジデンス建物全体と周辺環境
アクセス
- 東京メトロ南北線/都営三田線 『白金台』駅 徒歩6分
物件概要
- 物件名
- パークレ・ジェイド白金レジデンス
- 所在地
- 港区白金4-10-28
- 築年数
- 令和5年/2023年1月
- 構造
- 鉄筋コンクリート造
- 階数
- 地下1階付 7階建
- 土地
- 所有権
- 総戸数
- 55戸
- 分譲会社
- 三菱地所レジデンス株式会社・株式会社日本エスコン
- 管理会社
- 三菱地所コミュニティ株式会社
- 駐車場
- 有 (42,000円~52,000円/月 ※1)
- 駐輪場
- 有 (600円/月)
- バイク置場
- 有 (3,000円/月)
- ペット飼育
- 可 (規約有)
- 事務所使用
- 不可
- 学区(小学校)
- 白金小学校
- 学区(中学校)
- 高松中学校
- 共用・設備
-
- エレベーター
- オートロック
- 宅配BOX
- トランクルーム
- 防犯カメラ
- コンシェルジュサービス
- 24時間ゴミ出し可
- 備考・その他
- ※1
全長:5,300㎜、全幅:2,050㎜、全高:2,050㎜、最大重量:2,600㎏以内
インターネット料:1,265円/月
トランクルーム電気使用料:変動
設備・特徴
- 新耐震基準適合
今見ている物件以外も、
仲介手数料が最大無料。
リノベーションご売却についてもお気軽にご相談ください!
リノベーションご売却もゼロレボにお任せください
無料お問い合わせはこちら
ご希望条件に
ぴったりの
お部屋が
見つかりませんか?
当サイトに掲載していない物件でも、仲介手数料無料または割引でご案内! 条件に合う物件をプロが一緒にお探しします。
港区のおすすめ物件
-
NEW13,000万円1戸公開中光と水のタワーマンション
コスモポリス品川
1LDK/55.35㎡港区 品川駅 -
NEW39,990万円1戸公開中下屋敷から紡がれた格調高きマンション
ウェリス麻布狸穴
3LDK/96.03㎡港区 麻布十番駅 -
NEW17,480万円1戸公開中派手じゃない贅沢
ライオンズマンション広尾南
3LDK/62.06㎡渋谷区 広尾駅 -
NEW17,580万円3戸公開中窓の先に広がる美景
芝浦アイランドケープタワー
2LDK/75.36㎡港区 田町駅 -
NEW6,499万円1戸公開中都会的だけど人情味あふれる暮らし
ウィスタリア元麻布
1LDK/32.64㎡港区 麻布十番駅 -
NEW13,990万円1戸公開中都会のまんなかでもほっとできる場所
サージュ赤坂
2LDK/51.22㎡港区 赤坂駅 -
NEW33,980万円1戸公開中やさしさと洗練が同居する
ヴェーゼント赤坂新坂
2LDK/83.78㎡港区 青山一丁目駅 -
NEW12,480万円1戸公開中憧れの街で
イトーピア南麻布マンション
2LDK/65.36㎡港区 白金高輪駅













