現在、こちらの物件は掲載準備中ですが…販売状況・詳細については
最新情報をご案内できます!
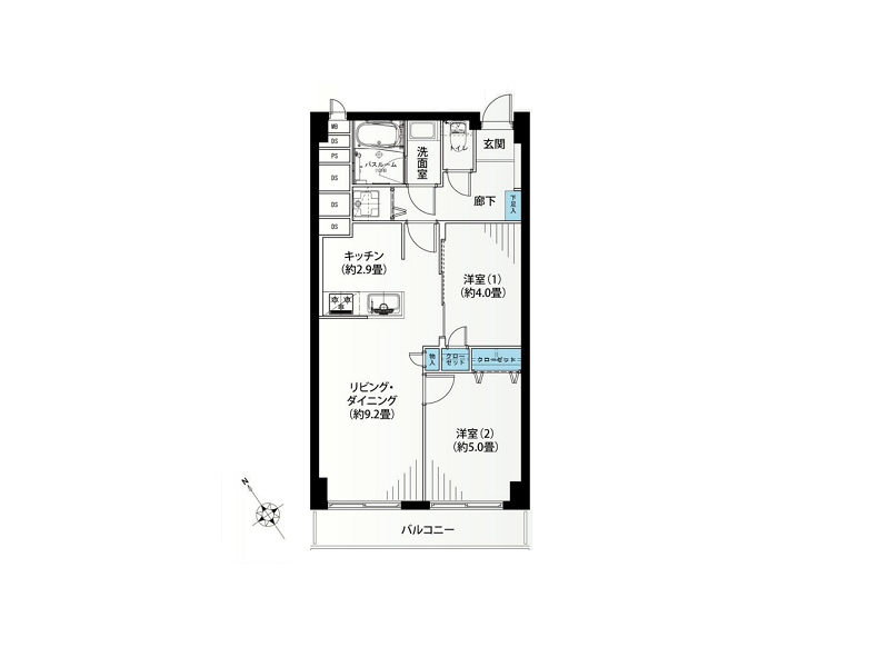
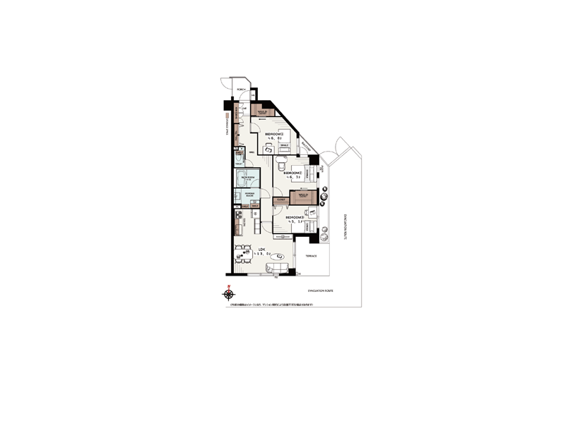
ニューライフ大森は現在掲載準備中です
過去に販売したお部屋の一部をご紹介。
住まい探しやリノベーションのヒントにご覧ください。
もっと見る
閉じる
もっと見る
閉じる
ニューライフ大森建物全体と周辺環境
アクセス
- 京急本線 『大森海岸』駅 徒歩4分
- JR京浜東北線 『大森』駅 徒歩7分
物件概要
- 物件名
- ニューライフ大森
- 所在地
- 大田区大森北2-2-5
- 築年数
- 昭和54年/1979年3月
- 構造
- 鉄骨鉄筋・鉄筋コンクリート造
- 階数
- 9階建
- 土地
- 所有権
- 総戸数
- 157戸
- 分譲会社
- 飛栄産業株式会社
- 管理会社
- 日本ハウズイング株式会社
- 駐車場
- 無
- 駐輪場
- 有 (3,600円/年 ※ステッカー要貼付)
- バイク置場
- 無
- ペット飼育
- 不可
- 事務所使用
- 不可
- 事務所使用
- 不可
- 学区(小学校)
- 入新井第一小学校
- 学区(中学校)
- 大森第二中学校
- 共用・設備
-
- エレベーター
- 宅配BOX
- 防犯カメラ
ご希望条件に
ぴったりの
お部屋が
見つかりませんか?
当サイトに掲載していない物件でも、仲介手数料無料または割引でご案内! 条件に合う物件をプロが一緒にお探しします。
大田区のおすすめ物件
-
NEW5,999万円1戸公開中背伸びしない暮らしが良い
さんろーどダイヤモンドマンション
3LDK/62.72㎡大田区 蓮沼駅 -
NEW6,080万円1戸公開中歴史が育む、落ち着きの都心暮らし
ライオンズマンション西蒲田
3LDK/60.70㎡大田区 蒲田駅 -
NEW6,999万円1戸公開中モダンスタイル好きのあなたへ
メイツ大森西
2LDK/52.36㎡大田区 平和島駅 -
NEW2,980万円2戸公開中コミュニティオブライフを作ろう
シャンボール大森
1LDK/38.19㎡大田区 大森駅 -
NEW4,200万円1戸公開中安らぎの一時を
コトー大森
2LDK/62.28㎡大田区 大森駅 -
NEW2,998万円1戸公開中落ち着きある立地で
シャンボール田園調布
1LDK/34.16㎡大田区 雪が谷大塚駅 -
NEW7,290万円1戸公開中毎日にちょうどいい景色
グランドステージ蒲田
3LDK/76.21㎡大田区 雑色駅 -
NEW9,880万円2戸公開中家族と暮らせる広々4LDK
マンション雪谷テラス
4LDK/116.25㎡大田区 石川台駅










