
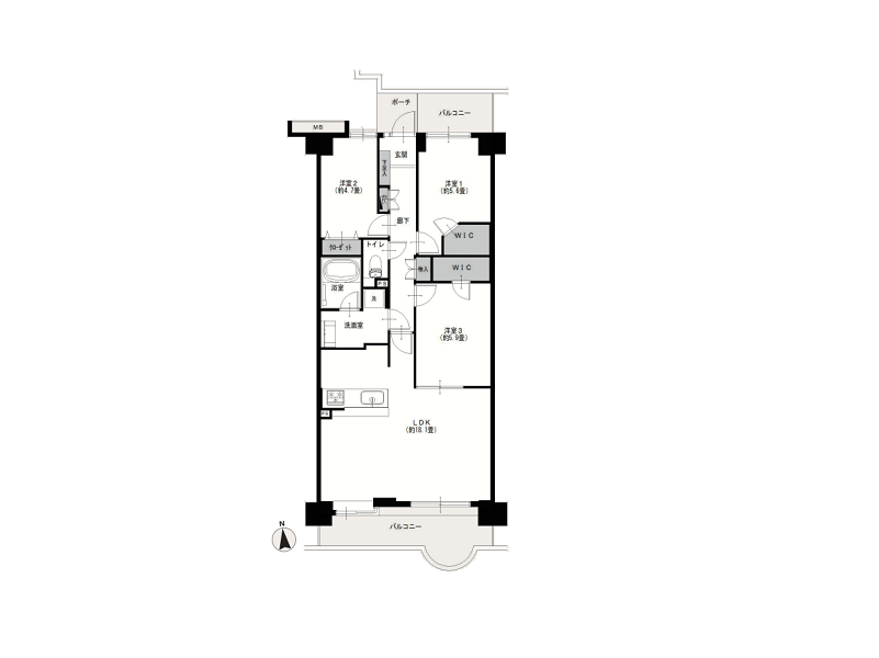
2LDK
2LDK
特徴ピックアップ
- 約2.5帖の大型WIC付き2LDK✧
- 南東向き角住戸で温かい住空間☀
- 2025年11月にリノベ完了物件
- 長原駅徒歩11分
編集部の部屋レポ
ゼロレボ編集部が実際に現地を訪れました。
写真や図面だけじゃわからない
リアルな空気感を全力でお届けします!
-
1 / 8
今回ご紹介するのは『リーベスト上池台』、2階のお部屋です。2025年11月にリノベーションが完了し、温かみのあるスタイリッシュなお部屋になりました。ペットを飼育することも可能なので、犬や猫がお好きな方も大歓迎です◎
-
2 / 8
こちらはLDKのダイニングに当たるスペースです。LDKは約17帖と広く、壁や天井の立体的なデザインと相まって、より開放感溢れる空間となっておりました✧ダイニングテーブルを置いてもゆとりがあるので、気ままにインテリアを選びましょう!
-
3 / 8
ダイニング横には窓と垂直に小さなカウンターがありました。せっかくなら、こういったスペースを有効活用しましょう◎物を置いてディスプレイにするのも良し。人生のバイブルを並べて、あなただけの図書館を作り上げるのも楽しそうです。
-
4 / 8
ダイニングの向かいにあるキッチンはオープンなペニンシュラ型のキッチンです。リビングダイニング側からの採光で、日中はキッチンまで明るくなります。キッチン後ろには冷蔵庫と棚を置くのに十分なスペースがあり、収納やキッチン家電の配置に悩むこともなさそうです♩
-
5 / 8
玄関を上がってすぐ、デザイン性の高い廊下とご対面。ナチュラルな色味でシンプルにまとまっていますが、金具のパーツはゴールドカラーでした✧いかにもメインルームへ続きそうな扉の窓からは、LDKに入った外光が適度に廊下を照らします。
-
6 / 8
こちらは約6.5帖の洋室です。なんとこちらのお部屋には、約2.5帖の"ほぼ寝れる"ウォークインクローゼットがありました!また、ウォークインクローゼットの正面には可動式のオープン収納まで。とにかく物が多い方やオシャレさんにオススメしたい洋室です✧
-
7 / 8
清潔感溢れるこちらのパウダールームには、洗面台・お風呂・洗濯機スペースがありました。白を基調とした空間は、光を反射して明るく、身だしなみを整える際に便利です◎また、入浴時のリラックスタイムを演出してくれます。
-
8 / 8
南の角には、コンパクトなバルコニーがありました。太陽がサンサンと降り注ぐバルコニーは洗濯物を乾かすに最適です♩ベランダへ出ればいつでも日光浴できるので、陽の光を浴びてセロトニンを出し、自律神経を整えましょう!
その他の室内・設備写真
ゼロレボ編集部が
お部屋を訪れてみて
大田区上池台にある『リーベスト上池台』、2階のお部屋をご紹介しました。大田区の北の端に位置し、お隣の品川区に似た下町情緒を感じる街で、暮らしに特化した住環境です。さて、今回のお部屋で特筆すべきは、なんといっても南東向きの角住戸であること!朝から昼にかけての日当たりが素晴らしく、心地の良い目覚めが期待できます✧採光で明るく温かいLDKで家族の団らんを囲んだり、愛犬・愛猫との時間を過ごしたり、素敵な休日を演出してくれること間違いなし。また夜には、壁や天井の立体的な造りと細かく散りばめられた照明のコンビネーションが、上品な雰囲気へ大胆に変えてくれます。私は木目調のフローリングとドアや壁に適度にあしらわれたグレーの差し色が、上品だけど遊び心があって好みでした♩落ち着いた暮らしをご所望の方はぜひ、『リーベスト上池台』に足を運んでみてください! ライター:takumi【25L18】
もっと見る毎月の支払い予想シミュレーション
- ローン支払い目安
- 160,657円/月
- 管理費
- 13,170円/月
- 修繕積立金
- 24,090円/月
- 合計
- 197,917円/月
※ローンの目安は、頭金ゼロ、借入年数35年、都市銀行・変動金利0.595%(優遇利用を想定。)審査内容により、融資の一部または全部をご利用いただけない場合がございます。予めご了承ください。
住戸概要
- 価格
- 6,090

- 所在階
- 2

- 間取り
- 2LDK
- 専有面積
- 63.90

- バルコニー
- 4.50

- 管理費
- 13,170

- 修繕積立費
- 24,090

- ポーチ
- 2.14㎡
- リノベーション
- 住宅ローン控除対象
リーベスト上池台建物全体と周辺環境
アクセス
- 東急池上線 『長原』駅 徒歩11分
- 都営浅草線 『馬込』駅 徒歩12分
物件概要
- 物件名
- リーベスト上池台
- 所在地
- 大田区上池台5-5-9
- 築年数
- 平成13年/2001年3月
- 構造
- 鉄筋コンクリート造
- 階数
- 6階建
- 土地
- 所有権
- 総戸数
- 32戸
- 分譲会社
- 住友石炭鉱業株式会社
- 管理会社
- 伊藤忠アーバンコミュニティ株式会社
- 駐車場
- 有 (25,000円~32,000円/月)
- 駐輪場
- 有 (無償)
- バイク置場
- 有 (2,000円~4,000円/月)
- ペット飼育
- 可 (細則有)
- 学区(小学校)
- 馬込第三小学校
- 学区(中学校)
- 貝塚中学校
- 共用・設備
-
- エレベーター
- オートロック
- 宅配BOX
- 防犯カメラ
設備・特徴
- 新耐震基準適合
今見ている物件以外も、
仲介手数料が最大無料。
リノベーションご売却についてもお気軽にご相談ください!
リノベーションご売却もゼロレボにお任せください
無料お問い合わせはこちら
ご希望条件に
ぴったりの
お部屋が
見つかりませんか?
当サイトに掲載していない物件でも、仲介手数料無料または割引でご案内! 条件に合う物件をプロが一緒にお探しします。
大田区のおすすめ物件
-
NEW6,290万円1戸公開中アクセス重視・暮らし重視
エクラン西蒲田
3LDK/61.36㎡大田区 蒲田駅 -
NEW5,890万円1戸公開中のびのびとした暮らし
東急ドエルアルス多摩川
3LDK/76.80㎡大田区 矢口渡駅 -
NEW7,130万円1戸公開中新築で暮らすワクワクを
カーサソサエティ大森山王
1SLDK/57.94㎡大田区 大森駅 -
NEW6,998万円1戸公開中暮らしやすさを求めた先に
レクセル大森ラウンドアーク
2LDK/71.11㎡大田区 大森町駅 -
NEW7,680万円1戸公開中穏やかな暮らしの拠点
コスモ千鳥町エクセラ
3LDK/77.71㎡大田区 千鳥町駅 -
NEW6,180万円1戸公開中静けさが日常を包む
ライフレビュー久が原
2LDK/53.14㎡大田区 千鳥町駅 -
NEW7,190万円1戸公開中毎日にちょうどいい景色
グランドステージ蒲田
3LDK/76.21㎡大田区 雑色駅 -
NEW5,990万円1戸公開中毎日が回り出す街、蒲田という拠点
グランシティ蒲田東
3LDK/65.06㎡大田区 蒲田駅


















