
2LDK
2LDK
特徴ピックアップ
- LDKゆったり18帖越え♪
- 新規リノベーション済みの綺麗なお部屋◎
- ペットと一緒に暮らせます♡
- 幅広い層にオススメの2LDK
編集部の部屋レポ
ゼロレボ編集部が実際に現地を訪れました。
写真や図面だけじゃわからない
リアルな空気感を全力でお届けします!
-
1 / 8
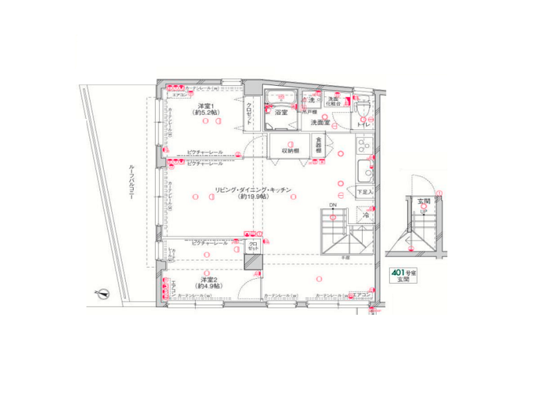
約15.3帖のリビングダイニングキッチンは、住戸の中でも特に開放感が際立つ空間です。西・北の角住戸ならではの広がりがあり、時間帯によって変わる光の入り方が、室内に自然な表情を与えてくれます。
-
2 / 8
2025年11月に新規内装リノベーションが完了。段差の少ないフラットフロアのため、家具配置もしやすく、日常の動線もスムーズ。ソファでくつろぐ時間とダイニングでの食事が無理なく共存し、家族それぞれが思い思いに過ごせる余白を感じられます。
-
3 / 8
3.5帖程のキッチンスペースには、シンプルなデザインのシステムキッチンを完備。作業スペースと収納がバランスよく配置され、調理や片付けがスムーズです。複数品の同時調理が可能なグリル付き3口コンロ&便利な食洗機を搭載しています。
-
4 / 8
おおよそ6.3帖の洋室には、たっぷりの採光が入り、お部屋全体がポカポカと温かな印象。全居室がバルコニーに面しているのは嬉しいポイントですよね♪家族それぞれの居場所をつくりやすく、2LDKの住まいに程よいバランスをもたらしてくれます。
-
5 / 8
約5.6帖の洋室は、主寝室として使いやすい落ち着いた空間です。ベッドを配置しても圧迫感が出にくく、クローゼットを備えているため、衣類や身の回りの物をすっきり収納できます。
-
6 / 8
洗面化粧台はすっきりとした白を基調に、清潔感と使いやすさを両立した設えです。ワイドなカウンターは、朝の身支度や夜のスキンケアもゆとりをもって行える広さ。3面鏡はミラーキャビネットになっていて、細かなアイテムも表に出さず整理できます。
-
7 / 8
バスルームは新規リノベーションによりユニットバスが交換されました。換気乾燥機付きで、天候や時間帯を気にせず使いやすい点も魅力。追焚き機能も備わっており、家族それぞれの入浴時間がずれても快適に対応できます。
-
8 / 8
バルコニーは、北・西向きにそれぞれ計3箇所あります。洗濯物を干すといった実用面はもちろん、窓を開けた際に外の気配を感じられることで、住まい全体に余裕が生まれます。日常の中でふと外に目を向けたくなる、暮らしに寄り添うバルコニーです。
その他の室内・設備写真
ゼロレボ編集部が
お部屋を訪れてみて
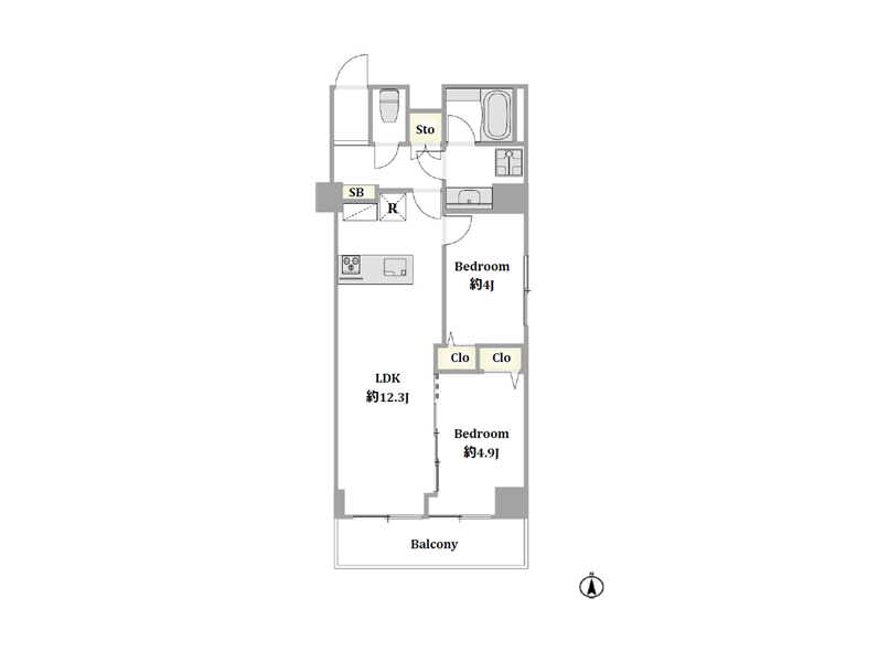
今回ご紹介するのは、京浜急行線大森町駅より徒歩4分の場所に佇む『レクセル大森ラウンドアーク』。近くにはスーパーやコンビニ、飲食店など、生活の支えとなる店舗が揃い暮らしやすい環境が整っています。お部屋は2階部分に位置する角住戸。専有面積約71.11㎡の2LDKで、2つの洋室は約18.8帖のメインルームを挟むように配置されています。良好な生活動線と、プライベート空間のバランスが良いレイアウトですね。また、全ての居室にそれぞれ独立したバルコニーにアクセスできる構造も大きな特徴です。洗濯物や布団を干したり、植物を育てたり、家族それぞれのライフスタイルにあわせて棲み分けすることが出来るのではないでしょうか。南向きではありませんが、角部屋の利点を活かし窓が多く設け得られとっても開放的で爽やかな印象を受けました。新規内装リノベーションにより隅々まで綺麗に整えられ、清々しく生活をスタートするのにふさわしい一室です。是非内見してみてくださいね ライター:kayo【26A15】
もっと見る毎月の支払い予想シミュレーション
- ローン支払い目安
- 184,611円/月
- 管理費
- 11,700円/月
- 修繕積立金
- 22,040円/月
- 合計
- 218,351円/月
※ローンの目安は、頭金ゼロ、借入年数35年、都市銀行・変動金利0.595%(優遇利用を想定。)審査内容により、融資の一部または全部をご利用いただけない場合がございます。予めご了承ください。
住戸概要
- 価格
- 6998

- 所在階
- 2

- 間取り
- 2LDK
- 専有面積
- 71.11

- バルコニー
- 17.49

- 管理費
- 11,700

- 修繕積立費
- 22,040

- リノベーション
- 住宅ローン控除対象
レクセル大森ラウンドアーク建物全体と周辺環境
アクセス
- 京急本線 『大森町』駅 徒歩4分
- 京急本線 『平和島』駅 徒歩10分
物件概要
- 物件名
- レクセル大森ラウンドアーク
- 所在地
- 大田区大森東2-22-1
- 築年数
- 平成18年/2006年8月
- 構造
- 鉄筋コンクリート造
- 階数
- 15階建
- 土地
- 所有権
- 総戸数
- 57戸
- 分譲会社
- 扶桑レクセル株式会社
- 管理会社
- 株式会社大京アステージ
- 駐車場
- 有 (9,000円~15,000円/月)
- 駐輪場
- 有 (1,200円/年)
- バイク置場
- 有 (800円~1,200円/月)
- ペット飼育
- 可 (飼育細則有)
- 学区(小学校)
- 大森第一小学校
- 学区(中学校)
- 大森東中学校
- 共用・設備
-
- エレベーター
- オートロック
- 宅配BOX
- 防犯カメラ
- 24時間セキュリティ
- 24時間ゴミ出し可
設備・特徴
- 新耐震基準適合
今見ている物件以外も、
仲介手数料が最大無料。
リノベーションご売却についてもお気軽にご相談ください!
リノベーションご売却もゼロレボにお任せください
無料お問い合わせはこちら
ご希望条件に
ぴったりの
お部屋が
見つかりませんか?
当サイトに掲載していない物件でも、仲介手数料無料または割引でご案内! 条件に合う物件をプロが一緒にお探しします。
大田区のおすすめ物件
-
NEW7,699万円1戸公開中永く住みたくなる環境
フローレンスパレス大森
3LDK/68.00㎡大田区 馬込駅 -
NEW6,080万円1戸公開中静けさが日常を包む
ライフレビュー久が原
2LDK/53.14㎡大田区 千鳥町駅 -
NEW9,180万円1戸公開中ドライブ好きなご家族へ
フェアロージュ南雪谷アークスコート
3LDK/70.78㎡世田谷区 石川台駅 -
NEW3,980万円1戸公開中まろやかな日々
シャトー久が原
1SLDK/61.55㎡大田区 千鳥町駅 -
NEW3,480万円2戸公開中コミュニティオブライフを作ろう
シャンボール大森
2LDK/49.05㎡大田区 大森駅 -
NEW7,690万円1戸公開中多摩川のほとりで
多摩川ハイム3号棟
4LDK/105.22㎡大田区 武蔵新田駅 -
NEW6,180万円1戸公開中下町の温度感が心地いい
アイディ西馬込
2LDK/60.13㎡大田区 西馬込駅 -
NEW6,499万円1戸公開中穏やかさが続く日々
ルモンド平和の森
2LDK/56.51㎡大田区 平和島駅





















