現在、こちらの物件は掲載準備中ですが…販売状況・詳細については
最新情報をご案内できます!
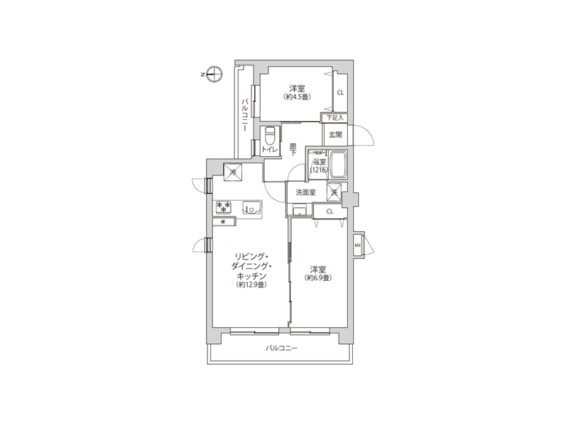
エンゼルハイム大森西建物全体と周辺環境
アクセス
- 京急本線 『大森町』駅 徒歩13分
- 京急本線 『平和島』駅 徒歩17分
物件概要
- 物件名
- エンゼルハイム大森西
- 所在地
- 大田区大森西4-3-6
- 築年数
- 平成11年/1999年2月
- 構造
- 鉄筋コンクリート造
- 階数
- 7階建
- 土地
- 所有権
- 総戸数
- 23戸
- 分譲会社
- 株式会社エンゼル
- 管理会社
- 株式会社長谷工コミュニティ
- 駐車場
- 有
- 駐輪場
- 有
- ペット飼育
- 不可
- 学区(小学校)
- 入新井第二小学校
- 学区(中学校)
- 大森第三中学校
- 共用・設備
-
- エレベーター
- オートロック
- 宅配BOX
- 防犯カメラ
設備・特徴
- 新耐震基準適合
今見ている物件以外も、
仲介手数料が最大無料。
リノベーションご売却についてもお気軽にご相談ください!
リノベーションご売却もゼロレボにお任せください
無料お問い合わせはこちら
ご希望条件に
ぴったりの
お部屋が
見つかりませんか?
当サイトに掲載していない物件でも、仲介手数料無料または割引でご案内! 条件に合う物件をプロが一緒にお探しします。
大田区のおすすめ物件
-
NEW7,880万円1戸公開中三方角部屋ならではの明るさ
フォルム上池台
3LDK/108.51㎡大田区 長原駅 -
NEW2,898万円1戸公開中窓の外には富士山が…!
シャンボール田園調布
1LDK/34.16㎡大田区 雪が谷大塚駅 -
NEW4,480万円1戸公開中運河沿いのビッグコミュニティ
大森ハイツ(大田区)
2LDK/57.90㎡大田区 大森海岸駅 -
NEW4,299万円1戸公開中温かな光と暮らす
南馬込セントラルパレス
1SLDK/46.36㎡大田区 馬込駅 -
NEW8,290万円1戸公開中家族で営む落ち着いた暮らし
グランシティル・ロワイヤル久が原
3LDK/76.26㎡大田区 西馬込駅 -
NEW2,680万円1戸公開中居心地がよいってこういうこと
グランドメルシー大森
1DK/31.53㎡大田区 大森駅 -
NEW6,998万円1戸公開中懐かしさと新しさが交わる
クラウンコーポラス
5LDK/116.93㎡大田区 梅屋敷駅 -
NEW14,800万円1戸公開中暮らしをグレードアップ
ブランズシティ久が原
3LDK/84.30㎡大田区 久が原駅
















