
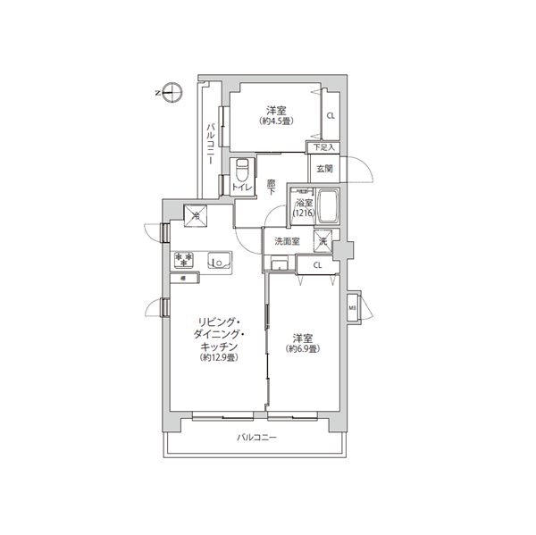
3LDK+2WIC
3LDK+2WIC
特徴ピックアップ
- ファミリーにおすすめの3LDK
- 使いやすいフルスライド式収納採用♪
- 開放感抜群の南東向き角部屋☀
- 2020年大規模修繕工事実施済み◎
編集部の部屋レポ
ゼロレボ編集部が実際に現地を訪れました。
写真や図面だけじゃわからない
リアルな空気感を全力でお届けします!
-
1 / 8
小さなお子さまがいらっしゃるご家庭にもオススメな、ファミリー向けの3LDKをご紹介します♫1階部分に位置しており、階下への足音や物音を気にせず暮らせますよ。南東角部屋で、窓が多く通風良好。
-
2 / 8
リビングダイニングキッチンはおよそ13.0帖。南と東の2面に窓があって、実際の間取りよりも広く感じました!白いクロスとフローリングを基調としたシンプルな空間で、家具のレイアウトが考えやすいですね✨
-
3 / 8
お料理にしっかり集中できる壁付けキッチンに新規交換されています。幅が広いので、キッチン背面に冷蔵庫やカップボードを設置することが可能。カップボードを置くことを想定して、キッチンのコンセントは高い位置に設置されていますよ♩細かいところにまでこだわりを感じますね。
-
4 / 8
今回の3LDKで素敵だと思ったのが、こちらのテラス。タイルが敷かれている部分がテラスで、その周囲の芝生のエリアは共用部の避難経路の様です。自由に使うことはできなくても、開放感をプラスしてくれるのは嬉しいですね♥
-
5 / 8
1番広いおよそ6.3帖の洋室。角部屋ならではの2面採光で、開放的な空間です。淡いグレーのクロスがアクセントになっています。ウォールミラーやアートなどを飾るのも素敵ですよね。ご夫婦で使用する主寝室にピッタリです。
-
6 / 8
2つ目の洋室はおよそ6.0帖。少し変わった間取りですが、寝具を置くスペースは十分確保されていますよ。窓の外には1.4㎡の小さなバルコニーが。大きな窓を開ければ爽やかな風がお部屋に入ります。
-
7 / 8
収納の多さは、今回の3LDKの魅力の1つ。先程ご紹介した2つの洋室には、どちらもウォークインクローゼットが備わっています✨ご覧の通り、かなりスペースがあってたくさんお洋服をしまえますよ。さらに、玄関廊下にも収納をご用意。日用品やお掃除道具のストックの保管に便利です。
-
8 / 8
白やベージュを基調としたパウダールーム。3面鏡の洗面化粧台には、フルスライド式の収納を使用しており奥までしっかり引き出せます。また、洗濯機置き場上部の吊戸棚に加え、可動棚のラックもご用意。洗剤類やかさばるリネン類もすっきり収納できそうです。
その他の室内・設備写真
ゼロレボ編集部が
お部屋を訪れてみて
今回の舞台は『コスモ千鳥町エクセラ』。最寄り駅の千鳥町駅周辺は程よい活気が感じられ、スーパーやコンビニ、飲食店など、暮らしを支えるお店が軒を連ねていました。
お部屋はファミリーにおすすめの3LDK。1階住居ならではのゆったりとしたテラス付きとなっています。全てのお部屋には玄関から続く廊下から出入りする構造に。各居室や設備の独立性が高いので、家族それぞれのプライバシーもしっかり確立することができそうですよね。
2面採光のメインルームは開放感が抜群で、実際の広さよりのびのびと感じられました。白い壁と淡いベージュのフローリングに、窓枠のブラックが締め色となったモダンな内装は、スタイリッシュながらもどこか温かみもあり、家族みんなが居心地良くお過ごしいただけるはず。是非一度内見してみてくださいね。 ライター:kayo【26B24】
毎月の支払い予想シミュレーション
- ローン支払い目安
- 197,590円/月
- 管理費
- 16,200円/月
- 修繕積立金
- 30,770円/月
- 合計
- 244,560円/月
※ローンの目安は、頭金ゼロ、借入年数35年、都市銀行・変動金利0.595%(優遇利用を想定。)審査内容により、融資の一部または全部をご利用いただけない場合がございます。予めご了承ください。
住戸概要
- 価格
- 7,490

- 所在階
- 1

- 間取り
- 3LDK+2WIC
- 専有面積
- 77.71

- バルコニー
- 1.40

- 管理費
- 16,200

- 修繕積立費
- 30,770

- 町会費
- 300円/月
- リノベーション
- 住宅ローン控除対象
- R1住宅適合
コスモ千鳥町エクセラ建物全体と周辺環境
アクセス
- 東急池上線 『千鳥町』駅 徒歩4分
- 東急池上線 『池上』駅 徒歩11分
物件概要
- 物件名
- コスモ千鳥町エクセラ
- 所在地
- 大田区千鳥1-15-3
- 築年数
- 平成9年/1997年2月
- 構造
- 鉄筋コンクリート造
- 階数
- 7階建
- 土地
- 所有権
- 総戸数
- 26戸
- 分譲会社
- 株式会社リクルートコスモス
- 管理会社
- 大和ライフネクスト株式会社
- 駐車場
- 有 (22,000円/月)
- 駐輪場
- 有
- ペット飼育
- 不可
- 事務所使用
- 不可
- 学区(小学校)
- 千鳥小学校
- 学区(中学校)
- 大森第七中学校
- 共用・設備
-
- エレベーター
- オートロック
- 宅配BOX
- 防犯カメラ
- 備考・その他
- 町会費:300円/月
設備・特徴
- 新耐震基準適合
- 長期修繕計画有
今見ている物件以外も、
仲介手数料が最大無料。
リノベーションご売却についてもお気軽にご相談ください!
リノベーションご売却もゼロレボにお任せください
無料お問い合わせはこちら
ご希望条件に
ぴったりの
お部屋が
見つかりませんか?
当サイトに掲載していない物件でも、仲介手数料無料または割引でご案内! 条件に合う物件をプロが一緒にお探しします。
大田区のおすすめ物件
-
NEW8,498万円1戸公開中都心近接の静かな拠点
グランシティ南馬込
2SLDK/67.61㎡大田区 馬込駅 -
NEW7,880万円1戸公開中三方角部屋ならではの明るさ
フォルム上池台
3LDK/108.51㎡大田区 長原駅 -
NEW2,898万円1戸公開中窓の外には富士山が…!
シャンボール田園調布
1LDK/34.16㎡大田区 雪が谷大塚駅 -
NEW4,480万円2戸公開中運河沿いのビッグコミュニティ
大森ハイツ(大田区)
2LDK/57.90㎡大田区 大森海岸駅 -
NEW4,299万円1戸公開中温かな光と暮らす
南馬込セントラルパレス
1SLDK/46.36㎡大田区 馬込駅 -
NEW8,290万円1戸公開中家族で営む落ち着いた暮らし
グランシティル・ロワイヤル久が原
3LDK/76.26㎡大田区 西馬込駅 -
NEW2,680万円1戸公開中居心地がよいってこういうこと
グランドメルシー大森
1DK/31.53㎡大田区 大森駅 -
NEW6,998万円1戸公開中懐かしさと新しさが交わる
クラウンコーポラス
5LDK/116.93㎡大田区 梅屋敷駅



















