
1LDK
1LDK
特徴ピックアップ
- 角部屋につき日当たり良好☀
- ホワイト基調の清潔感ある内装◎
- リノベーション済みの綺麗なお部屋♪
- 2路線利用可能の便利な立地
編集部の部屋レポ
ゼロレボ編集部が実際に現地を訪れました。
写真や図面だけじゃわからない
リアルな空気感を全力でお届けします!
-
1 / 8
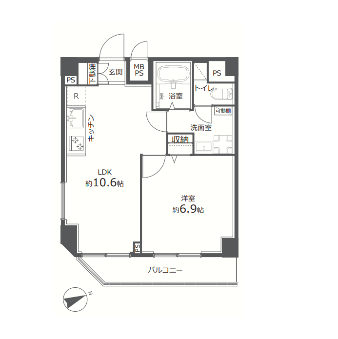
約10.6帖のリビングダイニングキッチンは、角住戸ならではの2面採光により、空間全体にやわらかな光が広がるのが特徴です。シンプルな長方形に近い形状で、ダイニングとリビングを分けてレイアウトしやすく、日々の過ごし方に合わせた家具配置がしやすい設計。
-
2 / 8
新規張替えされたフローリングとクロスにより、室内全体に清潔感があり、入居後すぐに落ち着いた暮らしを始められます。キッチンとの距離も近く、食事の準備から片付けまでの動きがスムーズにまとまる、日常に馴染むリビングです。
-
3 / 8
調理に集中できる壁付タイプのシステムキッチンは新規交換されており、使い始めから清潔な状態を保てるのが魅力。水まわりへの動線もシンプルで、家事全体の流れが自然と整う、実用性の高いキッチンです。
-
4 / 8
サニタリルームは廊下からアクセスできる位置に配置されており、生活動線の中で使いやすい設計。洗面化粧台は新規交換されており、清潔感のある状態で使い始められます。トイレも同様に新規交換されており、水まわり全体が整った安心感のある空間です。
-
5 / 8
落ち着いた色味でまとめられたバスルーム。浴室乾燥機も新設されているため、天候に左右されず洗濯物を乾かせるのも嬉しいポイント。日々の入浴に加え、生活機能としての利便性もしっかり備えたバスルームです。
-
6 / 8
約6.9帖の洋室は、主寝室としてゆとりを持って使える広さが確保されています。ベッドを配置しても動線に余裕があり、圧迫感を感じにくいのがポイント。バルコニーに面した開口部から光を取り込みやすく、朝の時間帯も心地よく過ごせる環境です。
-
7 / 8
洋室内には収納も備わっているため、衣類や日用品を整理しながら空間を整えやすく、生活感を抑えた使い方が可能。リビングと適度な距離があることで、オンとオフを切り替えやすい落ち着いた居室です。デスクを置いて、在宅ワークなどにも集中できそうですね。
-
8 / 8
玄関にはシューズボックスが設けられており、靴を整理しながらすっきりとした状態を保ちやすい設計。そのままリビングへとつながるダイレクトな動線が特徴です。空間が連続することで視線が奥まで抜け、実際の広さ以上に開放感を得られるのもポイント。
その他の室内・設備写真
ゼロレボ編集部が
お部屋を訪れてみて
大森駅と平和島駅のちょうど中間あたりに位置し、複数路線を使い分けることができる立地が魅力の『ルーブル大森参番館』。駅前には様々な飲食店やスーパー、コンビニ、ドラッグストアなど日々を支えるお店が軒を連ね、暮らしやすそうな環境が整っています。
今回ご紹介したのは6階部分の1LDK、1~2人暮らしにオススメの専有面積40.72㎡のお部屋です。角住戸のため窓が多く、室内にはやわらかな光が入り込む明るい空間でした。新規リノベーションによって、室内は隅々まで綺麗に整えられ、ホワイト基調の爽やかな内装に。キッチンやユニットバス、洗面化粧台など水回りの設備に加え建具やフローリングも一新され清潔感のある状態で新生活をスタートできそうです。是非内見してみてくださいね。
ライター:kayo【26C16】
毎月の支払い予想シミュレーション
- ローン支払い目安
- 144,565円/月
- 管理費
- 10,000円/月
- 修繕積立金
- 5,250円/月
- 合計
- 159,815円/月
※ローンの目安は、頭金ゼロ、借入年数35年、都市銀行・変動金利0.595%(優遇利用を想定。)審査内容により、融資の一部または全部をご利用いただけない場合がございます。予めご了承ください。
住戸概要
- 価格
- 5,480

- 所在階
- 6

- 間取り
- 1LDK
- 専有面積
- 40.72

- バルコニー
- 5.10

- 管理費
- 10,000

- 修繕積立費
- 5,250

- リノベーション
- アフターサービス保証付
現在、この物件に
成約済みのお部屋情報はありません。
ルーブル大森参番館建物全体と周辺環境
アクセス
- JR京浜東北線 『大森』駅 徒歩12分
- 京急本線 『平和島』駅 徒歩12分
物件概要
- 物件名
- ルーブル大森参番館
- 所在地
- 大田区大森北5-12-12
- 築年数
- 平成18年/2006年7月
- 構造
- 鉄筋コンクリート造
- 階数
- 7階建
- 土地
- 所有権
- 総戸数
- 53戸
- 管理会社
- 株式会社TFDコミュニティ
- 駐車場
- 無
- 駐輪場
- 有 (無償)
- バイク置場
- 無
- ペット飼育
- 不可
- 学区(小学校)
- 開桜小学校
- 学区(中学校)
- 大森第二中学校
- 共用・設備
-
- エレベーター
- オートロック
- 宅配BOX
- 防犯カメラ
設備・特徴
- 新耐震基準適合
今見ている物件以外も、
仲介手数料が最大無料。
リノベーションご売却についてもお気軽にご相談ください!
リノベーションご売却もゼロレボにお任せください
無料お問い合わせはこちら
ご希望条件に
ぴったりの
お部屋が
見つかりませんか?
当サイトに掲載していない物件でも、仲介手数料無料または割引でご案内! 条件に合う物件をプロが一緒にお探しします。
大田区のおすすめ物件
-
NEW4,399万円1戸公開中暮らしやすさ重視で選ぶ
豊栄コート蒲田
2LDK/48.60㎡大田区 蒲田駅 -
NEW6,999万円1戸公開中視界良し♡オシャレ家具付きroom
石川台ハイライズ
3LDK/68.24㎡大田区 石川台駅 -
NEW3,480万円1戸公開中アットホームにのんびりライフ
池上コーポラス(池上6丁目)
2LDK/47.89㎡大田区 池上駅 -
NEW2,980万円1戸公開中都心と空を結ぶ拠点
ルナハイツ蒲田
1LDK/34.54㎡大田区 蒲田駅 -
NEW7,999万円1戸公開中静穏と利便の調和
アイリス大森シティ
LDK/51.46㎡大田区 大森駅 -
NEW13,500万円1戸公開中多摩川を望むタワマン
ザ・リバープレイスウエストタワー
3LDK/81.53㎡大田区 下丸子駅 -
NEW10,500万円1戸公開中本物の豊かさは、ここにある
セボンモードグランデ田園調布
3LDK/84.16㎡大田区 多摩川駅 -
NEW9,480万円2戸公開中都会暮らしの答え
エンゼル大森グランディア
3LDK/74.12㎡大田区 大森駅















