
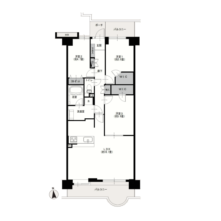
3LDK+2WIC
3LDK+2WIC
特徴ピックアップ
- ファミリー向けの3LDK・76.80㎡
- ポカポカの南向きのバルコニー☀
- 都心へのアクセス良好◎
- 自然あふれる多摩川のすぐそば
編集部の部屋レポ
ゼロレボ編集部が実際に現地を訪れました。
写真や図面だけじゃわからない
リアルな空気感を全力でお届けします!
-
1 / 8
今回ご紹介するのは『東急ドエルアルス多摩川』の6階のお部屋です。専有面積76.80㎡・3LDKののびのびと過ごせるお部屋♩2025年にリノベーションが完了し、モダンでスタイリッシュなお部屋になりました✧
-
2 / 8
約18.1帖のメインルームは広々としており、家族の憩いの場になること間違いなし...。大きなダイニングテーブル、ソファ、テレビなどを置いても窮屈にならない広さでした。レイアウトの自由度が高く、飽きのこないお部屋になりそうです!
-
3 / 8
窓は南向きで、晴れた日は日当たりサイコーです☀木目調のフローリングが採光を反射し、お部屋は温かな光に包まれております。窓際にソファや絨毯などを設置して、寝そべりながらのんびりと日光浴したくなってしまいました♩
-
4 / 8
こちらがバルコニーからの眺望です。周辺には背の高い建物がなく、広い空が広がります。目を凝らしてみると、向こうには多摩川の河川敷が見え、視覚的に自然を堪能することもできます◎バルコニーの半円形に膨らんだスペースに椅子を置いて読書するのも素敵です✧
-
5 / 8
キッチンはセミオープン。リビングダイニングとは隔てられていないので、友人や家族とコミュニケーションを取りながらお料理できます◎外の光でキッチンも明るく、日中のクッキングも楽しそうですよ!
-
6 / 8
約5.9帖の洋室はリビングダイニングに直結しておりました。室内に窓はありませんが、引き戸を開ければリビングダイニングを通して採光が届きます!寝室として利用するなら、起きてすぐ引き戸を開ければ、心地よい目覚めを迎えることができますね☀
-
7 / 8
こちらは約5.6帖の洋室です。こちらは北側に向いたお部屋で、WICとバルコニーが付いております!日中は柔らかい光が絶えずお部屋を照らしてくれるので、お仕事や趣味に没頭するのには最適◎このお部屋なら、こもっていても苦じゃなさそうです...!
-
8 / 8
パウダールームには洗面化粧台とバスルーム、洗濯機スペースがまとめられておりました。白を基調とした清潔感のあるスペースで、キレイ好きの人やお掃除好きの人にオススメ◎ほこりや髪の毛などが目立ちやすく、清潔感を保ちやすいのです!
その他の室内・設備写真
ゼロレボ編集部が
お部屋を訪れてみて
『東急ドエルアルス多摩川』は、東京の南の端っこにあります。東急多摩川線の矢口渡駅周辺は良い意味で”東京らしさ”がなく、しかし人情味あふれる生活が根付いている街です✧近くを流れる多摩川の河川敷など、自然あふれるスポットが点在しており、子育てにはうってつけの落ち着いた住環境となっております!
さて、今回ご紹介したのは6階のお部屋でした。なんと言っても、南向きの広々としたメインルームが魅力的!天気が良い日でもおうちで過ごしてしまいたくなるようなリラックス空間。冬は温かい日差しを生かし、夏は鋭い日差しを避けるように..レイアウトの自由度が高いので季節に応じて模様替えするも楽しそうです◎洋室が3部屋あるので、お子様の成長などに合わせて使い分けられるのもGOOD!
気になる方はぜひ足を運んでいただき、今後の生活について想像を膨らませてみてください! ライター:takumi【25A23】
毎月の支払い予想シミュレーション
- ローン支払い目安
- 155,381円/月
- 管理費
- 16,300円/月
- 修繕積立金
- 15,540円/月
- 合計
- 187,221円/月
※ローンの目安は、頭金ゼロ、借入年数35年、都市銀行・変動金利0.595%(優遇利用を想定。)審査内容により、融資の一部または全部をご利用いただけない場合がございます。予めご了承ください。
住戸概要
- 価格
- 5,890

- 所在階
- 6

- 間取り
- 3LDK+2WIC
- 専有面積
- 76.80

- バルコニー
- 13.78

- 管理費
- 16,300

- 修繕積立費
- 15,540

- 給湯暖房維持管理費
- 1,050円/月
- ポーチ
- 2.25㎡
- リノベーション
- アフターサービス保証付
- フラット35適合
現在、この物件に
成約済みのお部屋情報はありません。
東急ドエルアルス多摩川建物全体と周辺環境
アクセス
- 東急多摩川線 『矢口渡』駅 徒歩10分
- 東急多摩川線 『武蔵新田』駅 徒歩12分
物件概要
- 物件名
- 東急ドエルアルス多摩川
- 所在地
- 大田区矢口3-28-8
- 築年数
- 昭和67年/1987年9月
- 構造
- 鉄骨鉄筋コンクリート造・鉄筋コンクリート造
- 階数
- 地下1階付 14階建
- 土地
- 所有権
- 総戸数
- 461戸
- 分譲会社
- 東急不動産株式会社
- 管理会社
- 株式会社東急コミュニティ
- 駐車場
- 有 (22,000円~25,000円/月)
- 駐輪場
- 有 (1,800円~3,600円/月)
- バイク置場
- 有 (500円~1,000円/月)
- ペット飼育
- その他 (犬猫不可、小鳥・観賞用魚のみ可)
- 学区(小学校)
- 多摩川小学校
- 学区(中学校)
- 矢口中学校
- 共用・設備
-
- エレベーター
- オートロック
- 宅配BOX
- トランクルーム
- 防犯カメラ
- 備考・その他
- 2024年3月 大規模修繕工事完了
給湯暖房維持管理費:1,050円/月
設備・特徴
- 大規模修繕履歴有
今見ている物件以外も、
仲介手数料が最大無料。
リノベーションご売却についてもお気軽にご相談ください!
リノベーションご売却もゼロレボにお任せください
無料お問い合わせはこちら
ご希望条件に
ぴったりの
お部屋が
見つかりませんか?
当サイトに掲載していない物件でも、仲介手数料無料または割引でご案内! 条件に合う物件をプロが一緒にお探しします。
大田区のおすすめ物件
-
NEW9,180万円1戸公開中ドライブ好きなご家族へ
フェアロージュ南雪谷アークスコート
3LDK/70.78㎡世田谷区 石川台駅 -
NEW3,980万円1戸公開中まろやかな日々
シャトー久が原
1SLDK/61.55㎡大田区 千鳥町駅 -
NEW3,480万円2戸公開中コミュニティオブライフを作ろう
シャンボール大森
2LDK/49.05㎡大田区 大森駅 -
NEW7,690万円1戸公開中多摩川のほとりで
多摩川ハイム3号棟
4LDK/105.22㎡大田区 武蔵新田駅 -
NEW6,495万円1戸公開中歴史と川のそばで
マイキャッスル新蒲田
3LDK/70.00㎡大田区 矢口渡駅 -
NEW6,180万円1戸公開中下町の温度感が心地いい
アイディ西馬込
2LDK/60.13㎡大田区 西馬込駅 -
NEW6,499万円1戸公開中穏やかさが続く日々
ルモンド平和の森
2LDK/56.51㎡大田区 平和島駅 -
NEW4,499万円1戸公開中肩肘張らない都会感
豊栄コート蒲田
2LDK/48.60㎡大田区 蒲田駅















