現在リノベーション工事中です
完成予定日2026年4月30日
写真は完成後に公開予定です。工事中もご内見は可能です。

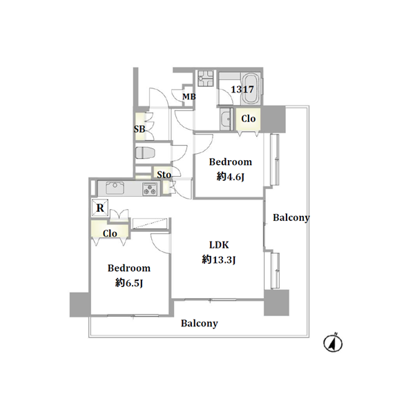
2LDK
2LDK
現在リノベーション工事中です!
完成予定日 2026年4月 30日
写真は完成後に公開予定です。もう少々お待ちください。
- 工事中でもご内見いただけます
- 「完成したら連絡してほしい」という方もお気軽にお問い合わせください。
毎月の支払い予想シミュレーション
- ローン支払い目安
- 171,447円/月
- 管理費
- 10,060円/月
- 修繕積立金
- 18,080円/月
- 合計
- 199,587円/月
※ローンの目安は、頭金ゼロ、借入年数35年、都市銀行・変動金利0.595%(優遇利用を想定。)審査内容により、融資の一部または全部をご利用いただけない場合がございます。予めご了承ください。
住戸概要
- 価格
- 6,499

- 所在階
- 7

- 間取り
- 2LDK
- 専有面積
- 56.51

- バルコニー
- 27.43

- 管理費
- 10,060

- 修繕積立費
- 18,080

- 玄関ポーチ
- 3.40㎡
- リノベーション
- アフターサービス保証付
現在、この物件に
成約済みのお部屋情報はありません。
ルモンド平和の森建物全体と周辺環境


アクセス
- 京急本線 『平和島』駅 徒歩6分
物件概要
- 物件名
- ルモンド平和の森
- 所在地
- 大田区大森東1-30-5
- 築年数
- 平成12年/2000年9月
- 構造
- 鉄骨鉄筋コンクリート造
- 階数
- 12階建
- 土地
- 所有権
- 総戸数
- 22戸
- 分譲会社
- 公共建物株式会社
- 管理会社
- ナイスコミュニティー株式会社
- 駐車場
- 有 (17,000円~30,000円/月)
- 駐輪場
- 有 (200円/月)
- バイク置場
- 有 (1,000円/月)
- ペット飼育
- 可 (飼育細則有)
- 学区(小学校)
- 大森東小学校
- 学区(中学校)
- 大森東中学校
- 共用・設備
-
- エレベーター
- オートロック
- 宅配BOX
設備・特徴
- 新耐震基準適合
今見ている物件以外も、
仲介手数料が最大無料。
リノベーションご売却についてもお気軽にご相談ください!
リノベーションご売却もゼロレボにお任せください
無料お問い合わせはこちら
ご希望条件に
ぴったりの
お部屋が
見つかりませんか?
当サイトに掲載していない物件でも、仲介手数料無料または割引でご案内! 条件に合う物件をプロが一緒にお探しします。
大田区のおすすめ物件
-
NEW9,180万円1戸公開中ドライブ好きなご家族へ
フェアロージュ南雪谷アークスコート
3LDK/70.78㎡世田谷区 石川台駅 -
NEW3,980万円1戸公開中まろやかな日々
シャトー久が原
1SLDK/61.55㎡大田区 千鳥町駅 -
NEW3,480万円2戸公開中コミュニティオブライフを作ろう
シャンボール大森
2LDK/49.05㎡大田区 大森駅 -
NEW7,690万円1戸公開中多摩川のほとりで
多摩川ハイム3号棟
4LDK/105.22㎡大田区 武蔵新田駅 -
NEW6,495万円1戸公開中歴史と川のそばで
マイキャッスル新蒲田
3LDK/70.00㎡大田区 矢口渡駅 -
NEW6,180万円1戸公開中下町の温度感が心地いい
アイディ西馬込
2LDK/60.13㎡大田区 西馬込駅 -
NEW4,499万円1戸公開中肩肘張らない都会感
豊栄コート蒲田
2LDK/48.60㎡大田区 蒲田駅 -
NEW3,980万円1戸公開中味のある風景とともに
石川台マンション別館
2LDK/54.32㎡大田区 石川台駅