
3LDK
3LDK
特徴ピックアップ
- ご家族でゆったり暮らせる3LDK
- 南向きにつき1日を通して明るい室内☀
- リノベーションが施された綺麗な内装
- 大切なパートナー♡愛犬・愛猫と暮らせます
編集部の部屋レポ
ゼロレボ編集部が実際に現地を訪れました。
写真や図面だけじゃわからない
リアルな空気感を全力でお届けします!
-
1 / 8
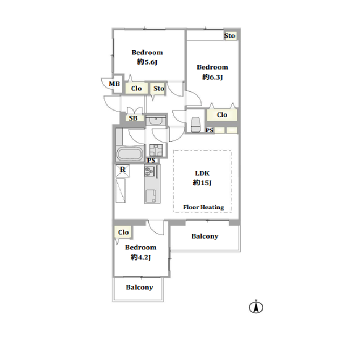
専有面積66.09㎡・3LDKのお部屋は、都心で家族時間を大切にしたい方に寄り添うスマートな住空間。リノベーションによって質感が磨かれた室内は、控えめで洗練されたカラーリングで統一され、毎日の暮らしを静かに整えてくれる一室へと一新されました。ペット飼育可能なため、生活スタイルに幅を持たせた自由度の高い住まいが実現します。
-
2 / 8
約15.0帖のLDKは、南向きの大きな窓から降り注ぐ光に満たされ、日中は照明がいらないほどの明るさが広がります。床暖房が備わり、見えない設備が上質な空気感を支えてくれるのも魅力。開放感と機能性を両立し、自然とご家族が集まるようなくつろぎ空間ですよ♪
-
3 / 8
端正な雰囲気の玄関は、無駄のないデザインで清潔感が際立ちます。大容量のトールシューズボックスは、日常使いから季節ものまでスマートに収納可能。棚の高さを調整できるため、使う人に合わせてカスタマイズできる点も魅力。
-
4 / 8
落ち着いたグレートーンのオープンキッチンは、視界が開けたレイアウトで自然と家族とのコミュニケーションが生まれます。複数の料理を手早く仕上げられるグリル付きコンロや片付けの時間を短縮してくれる食洗機など、料理好きな方には嬉しい設備。背面にカップボードを設置すれば収納力もアップ◎
-
5 / 8
家事をスマートにこなせるよう設計されたサニタリースペースは、必要な設備がコンパクトにまとまり日々の動きを軽減。収納が充実しているため、タオル類やスキンケアグッズなどもすっきり収まり、生活感を見せない美しい空間が続きます。
-
6 / 8
木目調グレーが凛とした印象を与える浴室は、ゆったり浸かれる浴槽と追い焚き機能で、忙しい毎日にも上質な休息をもたらしてくれる空間。浴室乾燥を利用すれば、季節問わず洗濯物をスマートに乾かせる実用性も兼ね備えていますよ◎
-
7 / 8
こちらの洋室は約4.2帖。小さめの空間ながら、2方向から光が入ることで圧迫感を感じない軽快な一室です。デスクワークに適した広さで、静かに集中しやすい環境が整っていました。小さなクローゼットもあるため日用品をすっきり収納でき、部屋の印象をクリーンに保ちます。
-
8 / 8
約6.3帖の洋室は効率的な形状でレイアウトの選択肢が豊富。出窓が奥行きを感じさせ、カウンターに置くインテリアが部屋の印象を引き立てます。可動式の壁面収納棚で、自分好みの見せる収納を楽しんでみてはいかがでしょうか♡
その他の室内・設備写真
ゼロレボ編集部が
お部屋を訪れてみて
ゆったりとした時間が流れる等々力エリアに佇む『エクセレント等々力』。自由が丘駅からは徒歩15分ほどですが、駅前からマンション近くまで伸びるバス路線を利用すれば負担の少ない快適なアクセスが叶います。自由が丘といえばセンスの良い雑貨店や家具店が点在し、インテリア好きにはたまらない街。加えてスーパー・コンビニ・ドラッグストアと日常に必要な施設もバランスよく揃います。さらにカフェやレストラン、人気スイーツなど暮らしに彩りを添えるスポットも豊富で、休日過ごし方には困らなそうですね♪今回ご紹介したのは、3階に位置する心地よい3LDKのお部屋。室内はリノベーションにより新築のように生まれ変わり、明るさが印象的。3つの洋室のうち2部屋が2面採光で、メインルームにも大きな開口部が確保されています。柔らかな日差しを招き入れながら、落ち着いたフローリングと白壁が爽やかな空気を演出。どんな家具も自然と馴染む、優しい空間に仕上がっていますよ♡ぜひ一度、その心地よさをご体感ください。 ライター:hana【25L11】
もっと見る毎月の支払い予想シミュレーション
- ローン支払い目安
- 229,247円/月
- 管理費
- 16,700円/月
- 修繕積立金
- 26,500円/月
- 合計
- 272,447円/月
※ローンの目安は、頭金ゼロ、借入年数35年、都市銀行・変動金利0.595%(優遇利用を想定。)審査内容により、融資の一部または全部をご利用いただけない場合がございます。予めご了承ください。
住戸概要
- 価格
- 8,690

- 所在階
- 3

- 間取り
- 3LDK
- 専有面積
- 66.09

- バルコニー
- 5.83

- 管理費
- 16,700

- 修繕積立費
- 26,500

- リノベーション
- アフターサービス保証付
- 住宅ローン控除対象
現在、この物件に
成約済みのお部屋情報はありません。
エクセレント等々力建物全体と周辺環境
アクセス
- 東急大井町線 『尾山台』駅 徒歩13分
- 東急東横線/大井町線 『自由が丘』駅 徒歩15分
- 東急大井町線 『九品仏』駅 徒歩15分
物件概要
- 物件名
- エクセレント等々力
- 所在地
- 世田谷区等々力6-32-9
- 築年数
- 平成6年/1994年3月
- 構造
- 鉄筋コンクリート造
- 階数
- 5階建
- 土地
- 所有権
- 総戸数
- 21戸
- 分譲会社
- 新日本建設株式会社
- 管理会社
- 株式会社新日本コミュニティー
- 駐車場
- 有 (23,000円~24,000円/月)
- 駐輪場
- 有 (200円/月)
- ペット飼育
- 可 (細則有)
- 学区(小学校)
- 等々力小学校
- 学区(中学校)
- 尾山台中学校
- 共用・設備
-
- エレベーター
- オートロック
- 宅配BOX
- 防犯カメラ
設備・特徴
- 新耐震基準適合
今見ている物件以外も、
仲介手数料が最大無料。
リノベーションご売却についてもお気軽にご相談ください!
リノベーションご売却もゼロレボにお任せください
無料お問い合わせはこちら
ご希望条件に
ぴったりの
お部屋が
見つかりませんか?
当サイトに掲載していない物件でも、仲介手数料無料または割引でご案内! 条件に合う物件をプロが一緒にお探しします。
世田谷区のおすすめ物件
-
NEW7,498万円1戸公開中肩の力を抜いて暮らせる
ベルス経堂弐番館
2LDK/56.15㎡世田谷区 千歳船橋駅 -
NEW8,480万円1戸公開中ずっといられる安心感
藤和シティホームズ千歳烏山弐番館
3LDK/75.49㎡世田谷区 千歳烏山駅 -
NEW16,490万円1戸公開中広さも動線も美しく
パレ駒場
3LDK/114.42㎡世田谷区 池尻大橋駅 -
NEW20,000万円1戸公開中お部屋よりも広いルーフバルコニー⁉
フューズ・コート175
2SLDK/74.45㎡世田谷区 池尻大橋駅 -
NEW13,999万円1戸公開中光とグレーのバランス◎
アジールコフレ三軒茶屋
3LDK/62.51㎡世田谷区 三軒茶屋駅 -
NEW10,980万円1戸公開中やさしい日常
メゾンモンティチェロ弦巻
2SLDK/75.54㎡世田谷区 桜新町駅 -
NEW2,099万円1戸公開中心和むローカル感
三洋マンション
1DK/32.27㎡世田谷区 若林駅 -
NEW4,080万円1戸公開中静けさの中にセンスがある
でがしらやまビル
1LDK/38.48㎡世田谷区 新代田駅















