
2SLDK
2SLDK
特徴ピックアップ
- 木の質感を生かしたミッドセンチュリーをテーマとした内装♥
- アイン地区同様の新規フルリノベーション物件♩
- 南西向き・角住戸につきポカポカ陽気が降り注ぐ☀
- 2SLDKですが3LDK感覚でお住まい可能◎
編集部の部屋レポ
ゼロレボ編集部が実際に現地を訪れました。
写真や図面だけじゃわからない
リアルな空気感を全力でお届けします!
-
1 / 8
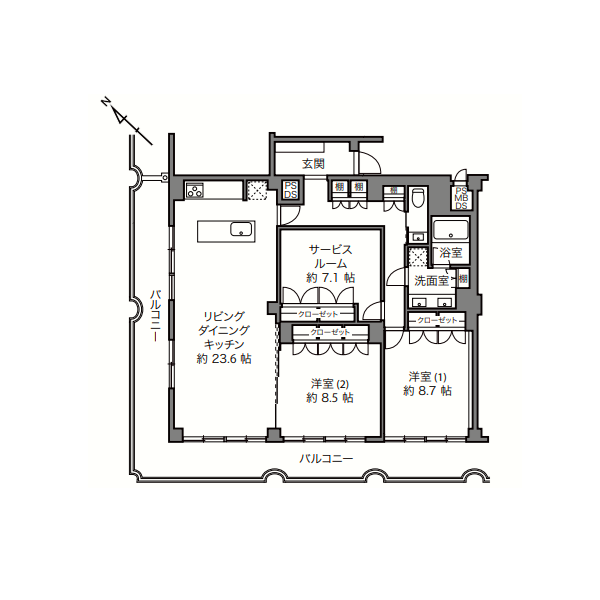
今回ご紹介するのは、専有面積114.32㎡の贅沢な2SLDK。ゆったりとした広さは、2人暮らしはもちろん、ファミリーでものびやかに暮らせる空間です。2025年9月に実施されたフルリノベーションにより、室内は新築のように生まれ変わりかわりました♩ペットとの生活も可能で、大切な家族と一緒に、心地よい毎日を描けるのもポイント。
-
2 / 8
リビングダイニングキッチンは約23.6帖の開放的な広さを誇り、家具やインテリアの配置を自由に楽しめるのが魅力。角部屋ならではの2面採光が室内にたっぷり光を届け、昼間は自然光に包まれながら爽やかな風が通り抜けます。明るく風通しの良い空間は、家族の団らんや在宅ワーク、趣味の時間など、どんなシーンにも心地よく寄り添うリビングに♥
-
3 / 8
約8.5帖の洋室は、大きなガラス張りのスライドドアでリビングダイニングとゆるやかに仕切ることができ、空間の一体感とプライベートの両立が可能です。壁一面に設置された大容量クローゼットは、年々増える荷物もすっきり収納でき、長く暮らすうえでの安心感を与えてくれますよ◎
-
4 / 8
作業スペースの広さが魅力のⅡ型キッチンは、効率的に料理を楽しめる設計。3口コンロとグリルを備えているため、複数の料理を同時に進めることができ、家事の時間をぐっと短縮できます。さらに食洗機内蔵で、後片付けの負担も軽減してくれますよ。
-
5 / 8
約8.7帖の洋室は、南西向きのテラス窓からたっぷりと光が注ぐ明るい空間。朝のやさしい日差しに包まれながら目覚める時間は、まるで毎日がリセットされるような爽やかさです。壁にはピクチャーレールが設けられており、アートや写真を自由に飾れば、自分だけのギャラリーのようなインテリア空間に。
-
6 / 8
独立洗面化粧台は、2つの洗面ボウルが並んだゆとりあるデザイン。ご家族と並んで身支度できるので、忙しい朝でも自然とスムーズに動けます。さらに、洗面台・バスルーム・洗濯機置き場が一か所にまとまっており、効率的な家事動線。日々の暮らしを快適にサポートしてくれる、実用性の高い空間です。
-
7 / 8
バスルームは、ライトブラウンのバスパネルがやさしく落ち着いた雰囲気を演出。壁面のワイドミラーが奥行きを感じさせ、実際の広さ以上にゆったりとした印象を与えます。さらに浴室乾燥機能を備えており、湿気対策はもちろん、花粉の季節や雨の日のお洗濯にも大活躍!
-
8 / 8
独立したトイレは、清潔感あふれるホワイトクロスに包まれ、明るく爽やかな印象。向かいには手洗いカウンターがあり、使うたびにすぐに手を洗えるのが嬉しいポイントです。さらに上部にはトイレ用品を収納できるキャビネットを備え、見た目もすっきり◎
その他の室内・設備写真
ゼロレボ編集部が
お部屋を訪れてみて
京王新線・初台駅から歩いて約6分。商店街やスーパーマーケットが点在する活気ある街並みを抜けると、静かで落ち着いた住宅街が広がる『代々木ハイライズ』に辿り着きます。お部屋は114.32㎡の2SLDK。角部屋ならではの2面採光で、朝の光が柔らかく差し込み、風が心地よく通る快適空間に。約23.6帖の広々としたリビングダイニングキッチンは、家具の配置も自由自在。大きなソファやダイニングセットを置いてもゆったりと暮らせます。特に印象に残ったのは、並んだ2つの洗面ボウルを備えた独立洗面化粧台。朝の身支度もスムーズに進められ、家族の忙しい時間をサポートしてくれますよ。ペットとの生活も楽しめる設計で、大切な家族と一緒に日々のひと時を心地よく過ごせる空間です。採光、動線、収納、機能性すべてに配慮されたこの角部屋は、日常に少し贅沢な開放感を添えてくれる、まさに都会のオアシス✿ぜひ現地で、その心地よさを体感してみてくださいね。 ライター:mao【25L02】
もっと見る毎月の支払い予想シミュレーション
- ローン支払い目安
- 366,162円/月
- 管理費
- 22,100円/月
- 修繕積立金
- 29,010円/月
- 合計
- 417,272円/月
※ローンの目安は、頭金ゼロ、借入年数35年、都市銀行・変動金利0.595%(優遇利用を想定。)審査内容により、融資の一部または全部をご利用いただけない場合がございます。予めご了承ください。
住戸概要
- 価格
- 13,880

- 所在階
- 5

- 間取り
- 2SLDK
- 専有面積
- 114.32

- 管理費
- 22,100

- 修繕積立費
- 29,010

- バルコニー
- 有(広さ不明)
- リノベーション
現在、この物件に
成約済みのお部屋情報はありません。
代々木ハイライズ建物全体と周辺環境
アクセス
- 京王新線 『初台』駅 徒歩6分
- 小田急線 『参宮橋』駅 徒歩8分
- JR山手線/埼京線/湘南新宿ライン/中央線/総武線/京王線/京王新線/小田急線/東京メトロ丸ノ内線/都営新宿線/大江戸線 『新宿』駅 徒歩12分
物件概要
- 物件名
- 代々木ハイライズ
- 所在地
- 渋谷区代々木4-26-10
- 築年数
- 昭和49年/1974年8月
- 構造
- 鉄筋コンクリート造
- 階数
- 6階建
- 土地
- 所有権
- 総戸数
- 24戸
- 分譲会社
- 興和不動産株式会社
- 管理会社
- 株式会社日鉄コミュニティ
- 駐車場
- 有 (18,000円~30,000円/月)
- 駐輪場
- 有 (2,400円/年)
- バイク置場
- 有 (5000円/月)
- ペット飼育
- 可 (細則有)
- 事務所使用
- 不可
- 学区(小学校)
- 代々木山谷小学校
- 学区(中学校)
- 代々木中学校
- 共用・設備
-
- エレベーター
- オートロック
- 宅配BOX
- 防犯カメラ
設備・特徴
- 新耐震基準適合
今見ている物件以外も、
仲介手数料が最大無料。
リノベーションご売却についてもお気軽にご相談ください!
リノベーションご売却もゼロレボにお任せください
無料お問い合わせはこちら
ご希望条件に
ぴったりの
お部屋が
見つかりませんか?
当サイトに掲載していない物件でも、仲介手数料無料または割引でご案内! 条件に合う物件をプロが一緒にお探しします。
渋谷区のおすすめ物件
-
NEW8,499万円1戸公開中静けさが息づく住まい
シェトワ代々木
3LDK/58.86㎡渋谷区 参宮橋駅 -
NEW12,580万円2戸公開中心をくすぐる代官山スタイル
サンビューハイツ渋谷
3LDK/66.09㎡渋谷区 代官山駅 -
NEW12,000万円1戸公開中オシャレタウンで上質な暮らし
THE CONOE代官山
1DK/31.37㎡渋谷区 代官山駅 -
NEW6,980万円2戸公開中都会を身近に、静けさを日常に。
グランエクレール参宮橋
1LDK/41.25㎡渋谷区 参宮橋駅 -
NEW26,000万円1戸公開中オシャレタウンに建つタワーマンション
グランドヒルズ恵比寿
2LDK/65.12㎡渋谷区 恵比寿駅 -
NEW31,800万円4戸公開中活気溢れる街に落ち着ける住まいを
プラウドタワー渋谷
3LDK/77.11㎡渋谷区 渋谷駅 -
NEW8,199万円1戸公開中グルメな街で新しい出会い
シャンボール恵比寿
1LDK/39.42㎡渋谷区 恵比寿駅 -
NEW21,480万円2戸公開中ノスタルジックな街並みに寄り添う
ウィスティリアコート代官山
1SLDK/67.78㎡渋谷区 代官山駅

















