
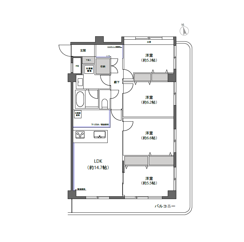
4LDK
4LDK
特徴ピックアップ
- ファミリー世帯にオススメの4LDK♪
- グレー基調のスタイリッシュな内装
- 角部屋につき陽当たり&通気性良好☀
- 2駅利用可能な便利な立地◎
編集部の部屋レポ
ゼロレボ編集部が実際に現地を訪れました。
写真や図面だけじゃわからない
リアルな空気感を全力でお届けします!
-
1 / 8
約14.7帖のリビングダイニングキッチンは、家族が自然と集まりやすい広さと配置が魅力です。フラット対面キッチンを採用しており、料理をしながらリビング全体を見渡せる設計。下り天井と間接照明が空間に奥行きを生み、落ち着いた雰囲気を演出します。
-
2 / 8
床材には木目の美しいフローリングが用いられ、やわらかな光と調和。南東向き×角住戸のため採光にも恵まれ、日中は明るく開放的な空間です。どんな色の家具やカーテンも合わせやすいナチュラルテイストな内装デザイン♡
-
3 / 8
リビング全体を見渡せるカウンタータイプのシステムキッチン。ステンレスバイブレーション仕上げのワークトップやガラストップコンロ、食洗機、タッチレス水栓など、設備が充実しています。作業スペースと収納のバランスが良く、調理動線もスムーズ。日々の家事を効率よくこなせる、機能性の高いキッチンです。
-
4 / 8
おおよそ5.5帖の洋室は2面採光で陽当たり&風通し良好。さらに全居室がバルコニーに面した配置は、この住まいならではの大きな魅力です。どの部屋にも自然光と風が届きやすく、朝の目覚めから日中、夕方まで、それぞれの空間で明るさと開放感を感じられます。
-
5 / 8
5.3帖程の洋室も2面採光で明るい雰囲気。出窓からも採光があり、お部屋全体がポカポカと温かな印象です。全居室にクローゼットが備わっているので、年々増えていくお荷物にも対応可能。
-
6 / 8
サニタリルームには、洗面化粧台・洗濯機置き場・バスルームが集結しています。水回りの機能がまとまっていると、生活動線もスムーズですよね♪洗面化粧台には人気の3面鏡が採用されていました。
-
7 / 8
バスルームはユニットバスに新規交換され、浴室乾燥機と追焚き機能を備えています。1316サイズで、ゆったりと入浴できる設え。天候を気にせず洗濯ができ、家族それぞれの入浴時間にも対応しやすい仕様です。日々の疲れを落ち着いて癒せる空間です。
-
8 / 8
バルコニーは約21.47㎡の大型バルコニー。洗濯物を干すスペースとして十分な広さがあり、日常使いしやすい設計です。南東向きのため日当たりも良好で、室内に光と風を届けます。下階が非住居のため、生活音への配慮がしやすい点も安心材料。屋外でありながら、落ち着いて使えるバルコニーです。
その他の室内・設備写真
ゼロレボ編集部が
お部屋を訪れてみて
京浜東北線大森駅より徒歩11分、京急本線立会川駅徒歩より10分と2駅利用可能な『秀和大森レジデンス』。交通の便の良さを保ちつつ、暮らしやすい住環境の整う穏やかな住宅街に位置しまています。今回ご紹介したのは、2階の東南向き角住戸。ファミリー世帯にオススメの専有面積約84.37㎡の4LDKです。約14.7帖のメインルームに加え、5〜6帖台の洋室が4部屋というバランスの良い間取りになっており、家族それぞれの居場所を確保しやすい構成に。新規リノベーションが施された室内は、ダークグレーを基調とした落ち着いた空間に仕上がっていました。建具や水回りの設備にもグレーが取り入れられ、お部屋全体に統一感のある洗練された雰囲気を纏っています。角部屋ならではの南と東に面した大きなL字型のバルコニーも印象的でした。東側は間近に建物があり、陽当たりはそれほど期待できませんが風通しが良く、強い直射日光を避けて陰干ししたい時に活躍してくれそうです。南側はとっても陽当たりが良く、お日様の光が燦々と降り注いでいました。是非一度内見してみてくださいね。 ライター:kayo【26A14】
もっと見る毎月の支払い予想シミュレーション
- ローン支払い目安
- 205,240円/月
- 管理費
- 15,800円/月
- 修繕積立金
- 16,900円/月
- 合計
- 237,940円/月
※ローンの目安は、頭金ゼロ、借入年数35年、都市銀行・変動金利0.595%(優遇利用を想定。)審査内容により、融資の一部または全部をご利用いただけない場合がございます。予めご了承ください。
住戸概要
- 価格
- 7,780

- 所在階
- 2

- 間取り
- 4LDK
- 専有面積
- 84.37

- バルコニー
- 21.47

- 管理費
- 15,800

- 修繕積立費
- 16,900

- リノベーション
秀和大森レジデンス建物全体と周辺環境
アクセス
- 京急本線 『立会川』駅 徒歩10分
- JR京浜東北線 『大森』駅 徒歩11分
物件概要
- 物件名
- 秀和大森レジデンス
- 所在地
- 品川区南大井5-13-19
- 築年数
- 昭和56年/1981年2月
- 構造
- 鉄筋コンクリート造
- 階数
- 7階建
- 土地
- 所有権
- 総戸数
- 92戸
- 分譲会社
- 株式会社ミルフォード・リアルエステート
- 管理会社
- 朝日管理株式会社
- 駐車場
- 有
- 駐輪場
- 有
- バイク置場
- 有
- ペット飼育
- 不可
- 学区(小学校)
- 浜川小学校
- 学区(中学校)
- 浜川中学校
- 共用・設備
-
- エレベーター
- 共用・テナント
-
- 児童センター
今見ている物件以外も、
仲介手数料が最大無料。
リノベーションご売却についてもお気軽にご相談ください!
リノベーションご売却もゼロレボにお任せください
無料お問い合わせはこちら
ご希望条件に
ぴったりの
お部屋が
見つかりませんか?
当サイトに掲載していない物件でも、仲介手数料無料または割引でご案内! 条件に合う物件をプロが一緒にお探しします。
品川区のおすすめ物件
-
NEW14,480万円1戸公開中静寂と利便性の調和
アデニウム大森山王
3LDK/88.14㎡品川区 大森駅 -
NEW12,800万円1戸公開中水辺のやすらぎ
ブランズ東品川
3LDK/70.01㎡品川区 新馬場駅 -
NEW13,480万円1戸公開中穴場みつけた
東京ナイル
3LDK/85.38㎡品川区 鮫洲駅 -
NEW5,380万円1戸公開中家族の笑顔が増える住まい
秀和東品川レジデンス
2LDK/49.50㎡品川区 青物横丁駅 -
NEW16,980万円1戸公開中利便性高い、駅チカの隠れマンション
ストークマンション目黒
3LDK/100.28㎡品川区 目黒駅 -
NEW3,480万円1戸公開中人と人がつながる、戸越銀座という下町
戸越ハイツ
1LDK/44.09㎡品川区 戸越銀座駅 -
NEW7,690万円1戸公開中商店街がすぐそこ
ジェイパーク戸越銀座ブランシェール
1LDK/53.98㎡品川区 戸越銀座駅 -
NEW2,480万円1戸公開中ホワイトルームを自分色に染め上げて
シャンボール南品川
1LDK/30.27㎡品川区 青物横丁駅





















