
3LDK
3LDK
特徴ピックアップ
- 目黒川のほとりで爽やかな暮らし
- 南東向き角部屋のため日当たり良好☀
- ペットと一緒に暮らせます♡
- 安心の二重オートロック完備◎
編集部の部屋レポ
ゼロレボ編集部が実際に現地を訪れました。
写真や図面だけじゃわからない
リアルな空気感を全力でお届けします!
-
1 / 8
約15.2帖のリビングダイニングキッチンは、南東向き角住戸ならではの開放感が魅力♪バルコニーに面した窓からはたっぷりの採光が入り、陽当たり&風通し良好。ダウンライト新規取付やフロアタイル貼替により、すっきりとした印象。
-
2 / 8
家族で食卓を囲む時間も、ソファでくつろぐひとときも、ほどよい広さの中で自然と心地よくまとまります。エアコン付きなので、引越し直後から快適な暮らしをスタートできます。どんな色の家具やカーテンも合わせやすいナチュラルテイストな内装デザイン♡
-
3 / 8
清潔感溢れるシステムキッチンはコンロや水栓が交換され、日々の料理を快適にこなせる仕様。リビングを見渡せる配置で、家族との会話を楽しみながら家事ができます。カップボード付きなのでで、収納力も抜群です。
-
4 / 8
2面採光で陽当たりが良く、ポカポカと温かな洋室。全洋室にクローゼットが備わっているのは、嬉しポイントですよね♪子ども部屋やワークスペースなど、ライフスタイルに合わせて使いやすい一室です。
-
5 / 8
おおよそ6.0帖の洋室は、クローゼットを備えた主寝室にちょうど良い広さ。バルコニーに面しているため朝の光がやさしく差し込みます。ベッドを置いてもゆとりがあり、落ち着いて休めるプライベート空間です。
-
6 / 8
サニタリルームには、洗面化粧台・洗濯機置き場・バスルームが集結。水回りの機能がまとまっていると、生活動線もスムーズですよね♪使い勝手の良い洗面化粧台には、人気の3面鏡が採用されています。
-
7 / 8
シンプルなデザインのバスルームには、快適なご入浴に欠かせない追焚き機能&浴室乾燥機を搭載。機能面も充実しています。ゆったり湯船につかりながら、一日の疲れをしっかり癒せそうですね。
-
8 / 8
8.46㎡のバルコニーと3.25㎡のサービスバルコニーを備えた、ゆとりある設計。陽当たりが良いので、洗濯物もよく乾きます。9階部分ならではの眺望とともに、目黒川の桜並木を望む贅沢な景色が広がっていました。
その他の室内・設備写真
ゼロレボ編集部が
お部屋を訪れてみて
京急本線の新馬場駅から徒歩8分ほどの位置に佇む『ブランズ東品川』。天王洲アイル駅も徒歩圏内にあり目的地によって使い分けることができそうです。運河や水辺が連なる東品川エリアは、都心にありながら空が広く、季節の移ろいを感じやすい場所です。目黒川沿いの桜並木がほど近く、春には街全体が柔らかな色に包まれます。日常の利便性と、風景としての豊かさが静かに両立する立地です。
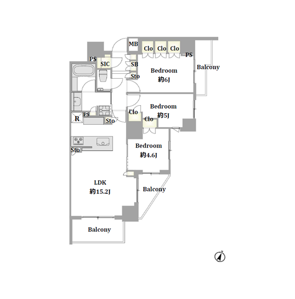
ご紹介するのは9階部分の南東角住戸。専有面積70.01㎡の3LDKで、LDKは約15.2帖を確保。角部屋ならではの開口部により、室内に光と風が通りやすい構成です。バルコニーからは目黒川の桜並木を望み、季節ごとに表情が変わる景色を日常に取り込めます。
洋室は約6帖・約5帖・約4.6帖の3部屋。寝室や子ども部屋、在宅ワークスペースなど、家族構成や働き方に合わせて使い分けしやすいフレキシブルな構成に。玄関にはSIC、各所にクローゼットや物入を備えている点も魅力的ですよね。ぜひ一度内見してみてください。 ライター:kayo【26B05】
毎月の支払い予想シミュレーション
- ローン支払い目安
- 337,671円/月
- 管理費
- 14,700円/月
- 修繕積立金
- 21,000円/月
- 合計
- 373,371円/月
※ローンの目安は、頭金ゼロ、借入年数35年、都市銀行・変動金利0.595%(優遇利用を想定。)審査内容により、融資の一部または全部をご利用いただけない場合がございます。予めご了承ください。
住戸概要
- 価格
- 12,800

- 所在階
- 9

- 間取り
- 3LDK
- 専有面積
- 70.01

- バルコニー
- 8.46

- 管理費
- 14,700

- 修繕積立費
- 21,000

- インターネット利用料
- 1,210円/月
- 電力見える化サービス料
- 110円/月
- コミュニティ形成費
- 300円/月
- テレビ共聴設備保守料
- 110円/月
- サービスバルコニー
- 3.25㎡
- リノベーション
- アフターサービス保証付
- 住宅ローン控除対象
現在、この物件に
成約済みのお部屋情報はありません。
ブランズ東品川建物全体と周辺環境
アクセス
- 京急本線 『新馬場』駅 徒歩8分
- 東京モノレール/りんかい線 『天王洲アイル』駅 徒歩10分
物件概要
- 物件名
- ブランズ東品川
- 所在地
- 品川区東品川1-38-3
- 築年数
- 平成28年/2016年1月
- 構造
- 鉄筋コンクリート造
- 階数
- 11階建
- 土地
- 所有権
- 総戸数
- 39戸
- 分譲会社
- 東急不動産株式会社
- 管理会社
- 株式会社東急コミュニティー
- 駐車場
- 有 (25,000円~28,000円/月)
- 駐輪場
- 有
- バイク置場
- 有 (※ミニバイク)
- ペット飼育
- 可 (2匹飼育可 ※細則有)
- 学区(小学校)
- 城南第二小学校
- 学区(中学校)
- 東海中学校
- 共用・設備
-
- エレベーター
- オートロック
- 宅配BOX
- 防犯カメラ
- 備考・その他
- インターネット利用料:1,210円/月
電力見える化サービス料:110円/月
コミュニティ形成費:300円/月
テレビ共聴設備保守料:110円/月
設備・特徴
- 新耐震基準適合
今見ている物件以外も、
仲介手数料が最大無料。
リノベーションご売却についてもお気軽にご相談ください!
リノベーションご売却もゼロレボにお任せください
無料お問い合わせはこちら
ご希望条件に
ぴったりの
お部屋が
見つかりませんか?
当サイトに掲載していない物件でも、仲介手数料無料または割引でご案内! 条件に合う物件をプロが一緒にお探しします。
品川区のおすすめ物件
-
NEW14,480万円1戸公開中静寂と利便性の調和
アデニウム大森山王
3LDK/88.14㎡品川区 大森駅 -
NEW13,480万円1戸公開中穴場みつけた
東京ナイル
3LDK/85.38㎡品川区 鮫洲駅 -
NEW5,380万円1戸公開中家族の笑顔が増える住まい
秀和東品川レジデンス
2LDK/49.50㎡品川区 青物横丁駅 -
NEW16,980万円1戸公開中利便性高い、駅チカの隠れマンション
ストークマンション目黒
3LDK/100.28㎡品川区 目黒駅 -
NEW3,480万円1戸公開中人と人がつながる、戸越銀座という下町
戸越ハイツ
1LDK/44.09㎡品川区 戸越銀座駅 -
NEW7,690万円1戸公開中商店街がすぐそこ
ジェイパーク戸越銀座ブランシェール
1LDK/53.98㎡品川区 戸越銀座駅 -
NEW2,480万円1戸公開中ホワイトルームを自分色に染め上げて
シャンボール南品川
1LDK/30.27㎡品川区 青物横丁駅 -
NEW5,990万円1戸公開中アットホームな雰囲気に癒されて
シティインデックス武蔵小山
1LDK/40.74㎡品川区 荏原中延駅















