
3LDK
3LDK
特徴ピックアップ
- 文教地区が身近な住宅エリア
- 全国初!学童保育サービス付き◎
- 最上階・南向きの開放的な3LDK
- 綺麗な状態が保たれた新築未入居✦
編集部の部屋レポ
ゼロレボ編集部が実際に現地を訪れました。
写真や図面だけじゃわからない
リアルな空気感を全力でお届けします!
-
1 / 2
-
2 / 2
ゼロレボ編集部が
お部屋を訪れてみて
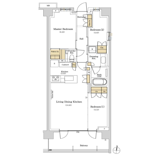
高田馬場駅から徒歩7分の立地に誕生した、2025年5月築の新築マンション『パークシティ高田馬場』。マンションは山手通り沿いの325戸の大規模新築で、オートロックや防犯カメラ、宅配ボックスなど安心のセキュリティを完備。ゲストルームやパーティールーム、スタディブース、全国初の学童保育サービスなど、共用施設も充実しており、子育て世帯から大人の単身者まで幅広く暮らしをサポートします。ご紹介の7階最上階の南向き住戸は、専有面積64.83㎡の3LDKで、木目×ホワイトを基調としたナチュラルで明るい室内が印象的✦玄関を入って左手にはシューズクローゼットを完備し、廊下沿いには約6.0帖と約4.5帖の独立した洋室を配置。約6.0帖の洋室にはウォークインクローゼットが備わり、収納力も十分です。パウダールームには洗面化粧台と洗濯機置き場を完備し、1418サイズのバスルームには24時間換気機能付き浴室暖房乾燥機を装備。独立タイプのトイレも設けられ、プライベート空間の快適さが保たれていますよ。リビングダイニングキッチンは約14.6帖、床暖房付きで冬も足元から暖かく、グレーのアクセントウォールが空間を引き締めます。約3.0帖のペニンシュラキッチンにはカップボードや収納、ディスポーザー、食洗機、3口コンロを完備。メインルーム隣の約4.0帖の洋室はスライドドアで仕切られ、在宅ワークやゲストルームなどフレキシブルにご使用いただけますよ。バルコニーからは開放感ある眺望が楽しめ、南向きのため洗濯物もカラッと乾きそう♩利便性と最上階ならではの明るさ、安心・快適な共用空間を両立した、理想的な住まいを是非現地にてお確かめくださいね。 ライター:mao【25A08】
もっと見る毎月の支払い予想シミュレーション
- ローン支払い目安
- 443,193円/月
- 管理費
- 23,860円/月
- 修繕積立金
- 11,220円/月
- 合計
- 478,273円/月
※ローンの目安は、頭金ゼロ、借入年数35年、都市銀行・変動金利0.595%(優遇利用を想定。)審査内容により、融資の一部または全部をご利用いただけない場合がございます。予めご了承ください。
住戸概要
- 価格
- 16,800

- 所在階
- 7

- 間取り
- 3LDK
- 専有面積
- 64.83

- バルコニー
- 10.80

- 管理費
- 23,860

- 修繕積立費
- 11,220

- インターネット利用料
- 715円/月
- 備考
- 建築中(2025年6月下旬完成予定)
- 住宅ローン控除対象
- 新築未入居
先行公開の速報物件です
詳細レポート準備中
ご希望があれば優先して作成します。ご内見は可能です。

2LDK
2LDK
先行公開の速報物件です!
詳細レポート準備中
- 内見してみたい
- もっと詳しく知りたい
- 記事が完成したら連絡してほしい
ご希望があれば優先して作成します。ご内見は可能です。
毎月の支払い予想シミュレーション
- ローン支払い目安
- 395,180円/月
- 管理費
- 23,866円/月
- 修繕積立金
- 11,220円/月
- 合計
- 430,266円/月
※ローンの目安は、頭金ゼロ、借入年数35年、都市銀行・変動金利0.595%(優遇利用を想定。)審査内容により、融資の一部または全部をご利用いただけない場合がございます。予めご了承ください。
住戸概要
- 価格
- 14,980

- 所在階
- 4

- 間取り
- 2LDK
- 専有面積
- 64.84

- バルコニー
- 6.66

- 管理費
- 23,866

- 修繕積立費
- 11,220

- インターネット使用料
- 715円/月
- 住宅ローン控除対象
- 新築未入居
現在、この物件に
成約済みのお部屋情報はありません。
パークシティ高田馬場建物全体と周辺環境
アクセス
- JR山手線/西武新宿線/東京メトロ東西線 『高田馬場』駅 徒歩7分
- 西武新宿線 『下落合』駅 徒歩7分
- 東京メトロ副都心線 『西早稲田』駅 徒歩14分
物件概要
- 物件名
- パークシティ高田馬場
- 所在地
- 新宿区高田馬場4-29-27
- 築年数
- 令和7年/2025年6月
- 構造
- 鉄筋コンクリート造
- 階数
- 地下1階付 13階建
- 土地
- 所有権
- 総戸数
- 325戸
- 分譲会社
- 三井不動産レジデンシャル株式会社
- 管理会社
- 三井不動産レジデンシャルサービス株式会社
- 駐車場
- 有 (33,000円~52,000円/月)
- 駐輪場
- 有 (400円~700円/月)
- バイク置場
- 有 (3,000円/月)
- ペット飼育
- 可 (細則有)
- 学区(小学校)
- 戸塚第三小学校
- 学区(中学校)
- 新宿西戸山中学校
- 共用・設備
-
- エレベーター
- オートロック
- 宅配BOX
- 防犯カメラ
- 各階ダストステーション
- 24時間ゴミ出し可
- 各階宅配兼食配コーナー
- ガーデン(屋上)
- マルチスタジオ
- ゲストルーム
- プライベートゲストルーム
- パーティールーム
- キッズコーナー
- ミーティングスペース
- スタディブース
- 学童保育サービス
- コミュニティスペース
- 備考・その他
- インターネット使用料:715円/月
設備・特徴
- 新耐震基準適合
今見ている物件以外も、
仲介手数料が最大無料。
リノベーションご売却についてもお気軽にご相談ください!
リノベーションご売却もゼロレボにお任せください
無料お問い合わせはこちら
ご希望条件に
ぴったりの
お部屋が
見つかりませんか?
当サイトに掲載していない物件でも、仲介手数料無料または割引でご案内! 条件に合う物件をプロが一緒にお探しします。
新宿区のおすすめ物件
-
NEW13,480万円1戸公開中品格に寄り添う暮らし
リリーゼ目白近衛町
2LDK/58.5㎡新宿区 目白駅 -
NEW11,490万円1戸公開中喧騒を離れた洗練の住まい
It’s東京フォーサイトスクエア
3LDK/70.00㎡新宿区 大久保駅 -
NEW12,880万円1戸公開中風光明媚な街並み
コート市ヶ谷
2LDK/60.02㎡新宿区 市ヶ谷駅 -
NEW5,180万円1戸公開中都心で暮らすって便利
藤和ハイタウン新宿
1LDK/33.12㎡新宿区 新宿御苑前駅 -
NEW4,999万円1戸公開中四季折々の彩りを楽しむ
ベルディ早稲田東
2LDK/46.92㎡新宿区 江戸川橋駅 -
NEW12,800万円1戸公開中アクセス抜群で気分上々
オーベル高田馬場
2LDK/63.26㎡新宿区 高田馬場駅 -
NEW15,980万円1戸公開中都会を感じさせない落ち着き
ジオ新宿若松町
3LDK/67.50㎡新宿区 若松河田駅 -
NEW13,790万円1戸公開中古き良き街並み
ドム神楽坂
3LDK/62.66㎡新宿区 江戸川橋駅


















