
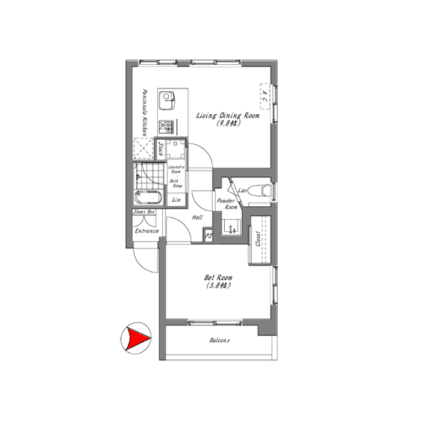
1LDK
1LDK
特徴ピックアップ
- 3方角住戸でストレスフリーな暮らし♪
- 事務所利用可能!
- 陽当たり・風通し・眺望良好✧
- 間接照明がお洒落なお部屋♪
編集部の部屋レポ
ゼロレボ編集部が実際に現地を訪れました。
写真や図面だけじゃわからない
リアルな空気感を全力でお届けします!
-
1 / 8
今回ご紹介する『大久保ローヤルコーポ』は専有面積35.76㎡、1LDKのお部屋です。3方角住戸で隣接する住居が少ない為、静かでストレスが少なく過ごせそうですね♪また、こちらのお部屋は事務所としての利用も可能となっております。
-
2 / 8
約9.8帖のLDKには窓が3つ設置されており、明るく開放感があります✧くすみブルーのクロスと木目調のフローリングは落ち着きがあり、オシャレですね♪壁にはコーニス照明が付いており、空間を柔らかく照らしてくれています。
-
3 / 8
人気のペニンシュラキッチンは、友人や家族と会話をしながらお料理ができますよ♪2口コンロで同時調理も可能です!コンロ前には油避けも設置されており、お掃除楽々。
-
4 / 8
人気の3面鏡が付いた独立洗面台。収納力にも優れ、歯ブラシ等を鏡裏にしまうことができるので生活感を感じにくく、スッキリと整頓できますよ。白を基調としたクロスは清潔感がありますね✧
-
5 / 8
バスルームは追い焚き機能、浴室乾燥機付きで、いつでも温かい湯船に浸かることができます。また、天気の悪い日でも洗濯物を安心して干すことができますよ。木目調のクロスが温かみを感じさせ、リラックスして入浴できそう♪
-
6 / 8
5.8帖の洋室は窓が2つあり、明るく開放的でした。クローゼットが設置されており、散らかりがちな衣類を収納すればお部屋を広々使うことができそうですね♪
-
7 / 8
6階は隔てる建物が少なく、眺めがとても良いです✧新宿方向にはビルが建ち並び、夜も綺麗や夜景が見えるのではないでしょうか?陽当たりが良く、晴れた日には洗濯物が良く乾きそう!
-
8 / 8
玄関にはシューズボックスがありました。靴を立てておくことができるので通気性が良く、衛生面に優れています✧鏡も設置されており、外出時の身支度チェックもバッチリ行えますよ。
その他の室内・設備写真
ルームツアー動画
ゼロレボ編集部が
お部屋を訪れてみて
今回ご紹介する『大久保ローヤルコーポ』は大久保駅から徒歩4分の好立地で新宿駅へも1駅でアクセスできる便利なエリアです。駅前には多国籍な飲食店が集まっており日常の中でちょっとした特別感を楽しめる環境が整っていますよ♪マンション周辺は人通りが穏やかで静かな雰囲気があり、落ち着いて暮らせる印象。お部屋は1LDKで、くすみブルーの木目調クロスがアクセントになった、お洒落で落ち着いた空間✧窓が多く陽当りと風通しが良好で、間接照明も備わっておりシーンに合わせて雰囲気を変えられるのも魅力です!3方角住戸のため隣接部分が少なく、騒音トラブルが起きにくい点も安心ポイント♪5.8帖の洋室には高さのあるクローゼットを設置。コート類もきれいに収納でき、お部屋全体をすっきり保ちやすい造りとなっております。利便性と落ち着いた住環境をどちらも大事にしたい方にぜひ一度ご覧いただきたいお部屋です♩ ライター:kanna【25K17】
もっと見る毎月の支払い予想シミュレーション
- ローン支払い目安
- 65,634円/月
- 管理費
- 5,000円/月
- 修繕積立金
- 13,000円/月
- 合計
- 83,634円/月
※ローンの目安は、頭金ゼロ、借入年数35年、都市銀行・変動金利0.595%(優遇利用を想定。)審査内容により、融資の一部または全部をご利用いただけない場合がございます。予めご了承ください。
住戸概要
- 価格
- 2,488

- 所在階
- 6

- 間取り
- 1LDK
- 専有面積
- 35.76

- バルコニー
- 3.12

- 管理費
- 5,000

- 修繕積立費
- 13,000

- リノベーション
現在、この物件に
成約済みのお部屋情報はありません。
大久保ローヤルコーポ建物全体と周辺環境
アクセス
- JR総武線 『大久保』駅 徒歩4分
- JR山手線 『新大久保』駅 徒歩8分
物件概要
- 物件名
- 大久保ローヤルコーポ
- 所在地
- 新宿区百人町2-24-22
- 築年数
- 昭和47年/1972年1月
- 構造
- 鉄筋コンクリート造
- 階数
- 6階建
- 土地
- 所有権
- 総戸数
- 36戸
- 分譲会社
- 藤澤建設株式会社
- 管理会社
- 自主管理
- 駐車場
- 有
- 駐輪場
- 有 (500円/年)
- バイク置場
- 無 (1,000円~3,000円/月)
- ペット飼育
- 不可
- 事務所使用
- 可 (細則有)
- 学区(小学校)
- 戸山小学校
- 学区(中学校)
- 西早稲田中学校
ご希望条件に
ぴったりの
お部屋が
見つかりませんか?
当サイトに掲載していない物件でも、仲介手数料無料または割引でご案内! 条件に合う物件をプロが一緒にお探しします。
新宿区のおすすめ物件
-
NEW11,980万円1戸公開中静かすぎないのがいい
ヴィルヌーブ西早稲田
3LDK/80.94㎡新宿区 西早稲田駅 -
NEW29,800万円3戸公開中ワンランク上の暮らし
パークタワー西新宿
2LDK/88.39㎡新宿区 西新宿五丁目駅 -
NEW7,099万円2戸公開中思い描いたマイホーム
飯田橋第二パークファミリア
2LDK/54.60㎡新宿区 江戸川橋駅 -
NEW4,780万円1戸公開中高台の落ち着きを手に
ルミナール若松町
1LDK/50.31㎡新宿区 若松河田駅 -
NEW5,990万円1戸公開中心に余裕が生まれる街。
ウイン四ツ谷
1LDK/42.35㎡新宿区 曙橋駅 -
NEW14,380万円1戸公開中高くそびえる高級マンション
ザ・パークハウス西新宿タワー60
2LDK/60.21㎡新宿区 西新宿五丁目駅 -
NEW7,998万円1戸公開中帰るたびに落ち着く場所
アビターレ目白
3LDK/102.39㎡新宿区 目白駅 -
NEW4,198万円1戸公開中街並みに調和する
パティオ西早稲田
1DK/31.22㎡新宿区 早稲田駅










