
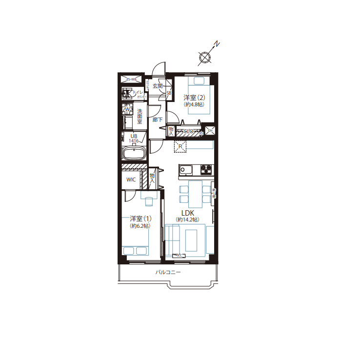
3LDK
3LDK
特徴ピックアップ
- 駅から徒歩1分の好立地マンション✧
- 陽当り・風通し良好の3方角部屋☀
- ご家族でゆったり♪広々3LDK
- 開放感たっぷりのルーフバルコニーあり♪
編集部の部屋レポ
ゼロレボ編集部が実際に現地を訪れました。
写真や図面だけじゃわからない
リアルな空気感を全力でお届けします!
-
1 / 8
2025年6月に新規内装リノベーションが完了したばかりの3LDKをご紹介します。北東・南東・北西の三方角部屋で、陽当たり&風通しは良好です。
-
2 / 8
メインとなるのは、約18.3帖のリビングダイニングキッチン。かなり広々としていて開放感に溢れていました。ルーフバルコニーに面した窓からはたっぷりの採光が入ります。
-
3 / 8
調理に集中できる、独立タイプのシステムキッチン。白で統一され、清潔感を感じられますね。複数品の同時調理が可能なグリル付き3口コンロ&便利な食洗機が備わっていて、機能面も充実しています。
-
4 / 8
34.88㎡の広さを誇る広々としたルーフバルコニー。天気の良い日はお食事や読書を楽しんだり、夏はお子様用のプールを出したり、使い方は様々です。物干しスタンドを置けば、シーツや布団も干せそう。
-
5 / 8
サニタリールームには、洗面化粧台・洗濯機置き場・バスルームが集結しています。水回りの機能がまとまっていると、生活動線もスムーズ♪バスルームには快適なご入浴に欠かせない追い焚き機能&浴室乾燥機を搭載。
-
6 / 8
全居室に収納スペースを完備しています。衣類はもちろん、小物類や季節家電などがしまえるスペースが複数あるので、年々増えていくお荷物にも対応可能。
-
7 / 8
リビングの他に3つの洋室があります。スライド扉を開けて仕切りをなくすことで、より広々と感じられました。シンプルな内装デザインなので、自分好みのインテリアをお楽しみいただけます。
-
8 / 8
おおよそ7.1帖の洋室は、2面採光で陽当たり良好。大きめのベッドもゆとりを持って置けるサイズ感です。窓からは心地良い風が吹き込み、毎朝心地良いお目覚めが期待できそう。
その他の室内・設備写真
ゼロレボ編集部が
お部屋を訪れてみて
今回訪れたのは富士見ヶ丘駅から徒歩わずか1分という好立地に建つ駅チカマンション『ハイネス富士見ヶ丘』。ご紹介するのは7階部分に位置する3LDKのお部屋。ご家族でゆったりとした時間を過ごせる広さを備えています。南東・北東・北西の3方角住戸のため、室内は明るさと風通しに恵まれ心地よい開放感を感じられます☀内装はリノベーションが施され、シンプルかつ上質な空間へとリニューアル。落ち着きのある木目調フローリングは、インテリアの魅力をさらに引き立ててくれそうです。さらに、広々したルーフバルコニーも大きな魅力!テーブルやチェアを置けば、青空の下でのアウトドアリビングとして日常に特別なひとときをプラスできますよ。ぜひ、この快適さと開放感をご自身の目で現地にてご体感ください♪ ライター:hana【25I17】
もっと見る毎月の支払い予想シミュレーション
- ローン支払い目安
- 176,723円/月
- 管理費
- 13,900円/月
- 修繕積立金
- 22,150円/月
- 合計
- 212,773円/月
※ローンの目安は、頭金ゼロ、借入年数35年、都市銀行・変動金利0.595%(優遇利用を想定。)審査内容により、融資の一部または全部をご利用いただけない場合がございます。予めご了承ください。
住戸概要
- 価格
- 6,699

- 所在階
- 7

- 間取り
- 3LDK
- 専有面積
- 80.58

- バルコニー
- 6.88

- 管理費
- 13,900

- 修繕積立費
- 22,150

- ルーフバルコニー
- 34.88㎡
- リノベーション
ハイネス富士見ヶ丘建物全体と周辺環境
アクセス
- 京王井の頭線 『富士見ヶ丘』駅 徒歩1分
- 京王井の頭線 『高井戸』駅 徒歩10分
物件概要
- 物件名
- ハイネス富士見ヶ丘
- 所在地
- 杉並区久我山2-23-9
- 築年数
- 昭和52年/1977年12月
- 構造
- 鉄骨鉄筋・鉄筋コンクリート造
- 階数
- 8階建
- 土地
- 所有権
- 総戸数
- 81戸
- 分譲会社
- ハイネス恒産株式会社
- 管理会社
- ハイネス管理株式会社
- 駐車場
- 有 (20,000円/月)
- 駐輪場
- 有 (200円/月)
- バイク置場
- 有 (800円~1,400円/月)
- ペット飼育
- 不可
- 学区(小学校)
- 富士見丘小学校
- 学区(中学校)
- 富士見丘中学校
- 共用・設備
-
- エレベーター
- 夜間オートロック
- 防犯カメラ
- 備考・その他
- 夜間オートロック:23:00~3:00
今見ている物件以外も、
仲介手数料が最大無料。
リノベーションご売却についてもお気軽にご相談ください!
リノベーションご売却もゼロレボにお任せください
無料お問い合わせはこちら
ご希望条件に
ぴったりの
お部屋が
見つかりませんか?
当サイトに掲載していない物件でも、仲介手数料無料または割引でご案内! 条件に合う物件をプロが一緒にお探しします。
杉並区のおすすめ物件
-
NEW6,980万円1戸公開中商店街が支える南阿佐ヶ谷暮らし
ヴィンテージ南阿佐ヶ谷
2LDK/53.46㎡杉並区 南阿佐ヶ谷駅 -
NEW12,499万円1戸公開中日常は穏やかに、アクセスは軽快に。
パーク・コート浜田山ウエストコート
4LDK/103.29㎡杉並区 浜田山駅駅 -
NEW10,380万円1戸公開中高井戸でゆとりのある暮らしを。
ファミールグラン高井戸デュープレックス
3LDK/78.94㎡杉並区 高井戸駅 -
NEW9,699万円1戸公開中駅徒歩2分、ゆとりと上質を纏う暮らし。
サンウッド浜田山
1LDK/45.25㎡杉並区 浜田山駅 -
NEW6,299万円1戸公開中何でも揃う、が自慢
ライオンズプラザ方南町
2LDK/50.05㎡杉並区 方南町駅 -
NEW6,598万円1戸公開中どこかほっこりする心地良さ
パークハイム杉並
3LDK/77.75㎡杉並区 方南町駅 -
NEW6,280万円1戸公開中ゆったり時が流れる街
藤和杉並富士見ヶ丘ホームズ
2LDK/62.83㎡杉並区 富士見ヶ丘駅 -
NEW8,690万円1戸公開中ゆるやかな時間が流れる
グランシティ西荻窪
3LDK/73.60㎡杉並区 西荻窪駅

















