
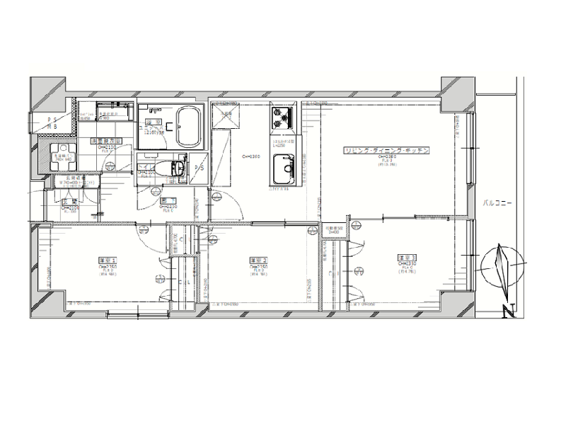
2LDK
2LDK
特徴ピックアップ
- 南西角部屋で明るい2LDK
- 嬉しい家具付きのお部屋です!
- ペットの飼育可能です
- ターミナル駅池袋駅が徒歩圏内
編集部の部屋レポ
ゼロレボ編集部が実際に現地を訪れました。
写真や図面だけじゃわからない
リアルな空気感を全力でお届けします!
-
1 / 8
2025年7月末に新規リノベーションが完了したばかりの2LDKをご紹介。エアコン1基、床暖房、そしてオシャレな家具付きなので、引越し直後から快適な暮らしをスタートできますね。
-
2 / 8
メインとなるのは約12.7帖のリビングダイニングキッチン。2面採光でお部屋全体が明るくポカポカと温かな印象でした。どんな色の家具やカーテンも合わせやすいナチュラルテイストな内装デザイン♡
-
3 / 8
リビング全体を見渡せるカウンタータイプのシステムキッチン。複数品の同時調理が可能なグリル付き3口コンロ&便利な食洗機を完備しています。
-
4 / 8
西向きに位置するバルコニーは6.29㎡の広さがあり、開放感たっぷり♪陽当たり&風通しが良く、洗濯物もたくさん干せます。都心ならではの眺望ですね。
-
5 / 8
リビングのお隣には、おおよそ5.5帖の洋室があります。こぢんまりとしたサイズのお部屋ですが、大きな窓からは開放感溢れる眺望をお楽しみいただけます。
-
6 / 8
こちらは3.4帖程の洋室です。スライド式の扉を開けることで、広く感じられそうです。収納スペースも備わっているので、小物類もスッキリ整理可能。
-
7 / 8
サニタリールームには、洗面化粧台・洗濯機置き場・バスルームが集結しています。水回りの機能がまとまっていると、生活動線がスムーズ♪
-
8 / 8
ラグジュアリーな雰囲気の玄関。一部エコカラットが採用されているので、防音・断熱効果などが期待できます。姿見も備わっているので、外出前の身だしなみチェックもバッチリ♬
その他の室内・設備写真
ゼロレボ編集部が
お部屋を訪れてみて
複数路線が利用可能な池袋駅から徒歩5分。そんな好立地に佇む『コンフォルテハイム池袋』。ホテルライクな内装だけでなく、安心安全のセキュリティも備えています。人通りの多い池袋エリアでも安心して暮らせるはず。今回ご紹介するのは、角部屋で開放的な2LDK。家具付きなので、お引越しの初日からオシャレなお部屋でお過ごしいただけます。アクセス良好・住環境良好なこちらのお部屋でペットやご家族と新しい暮らしをスタートしませんか。 ライター:mii【25I18】
もっと見る毎月の支払い予想シミュレーション
- ローン支払い目安
- 250,087円/月
- 管理費
- 17,170円/月
- 修繕積立金
- 10,420円/月
- 合計
- 277,677円/月
※ローンの目安は、頭金ゼロ、借入年数35年、都市銀行・変動金利0.595%(優遇利用を想定。)審査内容により、融資の一部または全部をご利用いただけない場合がございます。予めご了承ください。
住戸概要
- 価格
- 9,480

- 所在階
- 4

- 間取り
- 2LDK
- 専有面積
- 50.51

- バルコニー
- 6.29

- 管理費
- 17,170

- 修繕積立費
- 10,420

- 住宅管理費
- 330円/月
- 管理組合運営費
- 300円/月
- インターネット使用料
- 1,298円/月
- テレビ共聴料
- 1,100円/月
- リノベーション
- 家具付
過去に販売したお部屋の一部をご紹介。
住まい探しやリノベーションのヒントにご覧ください。
もっと見る
閉じる
コンフォルテハイム池袋建物全体と周辺環境
アクセス
- JR山手線/埼京線/湘南新宿ライン/東武東上線/西武池袋線/東京メトロ丸ノ内線/有楽町線/副都心線 『池袋』駅 徒歩5分
- 東京メトロ有楽町線/副都心線 『要町』駅 徒歩12分
物件概要
- 物件名
- コンフォルテハイム池袋
- 所在地
- 豊島区池袋2-33-16
- 築年数
- 平成21年/2009年10月
- 構造
- 鉄筋コンクリート造
- 階数
- 地下1階付 7階建
- 土地
- 所有権
- 総戸数
- 28戸
- 分譲会社
- 住商商事株式会社
- 管理会社
- 住商建物株式会社
- 駐車場
- 有 (30,000円/月)
- 駐輪場
- 有 (300円/月)
- ペット飼育
- 可 (細則有)
- 学区(小学校)
- 池袋小学校
- 学区(中学校)
- 西池袋中学校
- 共用・設備
-
- エレベーター
- オートロック
- 宅配BOX
- 防犯カメラ
- 備考・その他
- 住宅管理費:330円/月
管理組合運営費:300円/月
インターネット使用料:1,298円/月
テレビ共聴料:1,100円/月
2023年:大規模修繕工事実施済み
設備・特徴
- 新耐震基準適合
- 大規模修繕履歴有
ご希望条件に
ぴったりの
お部屋が
見つかりませんか?
当サイトに掲載していない物件でも、仲介手数料無料または割引でご案内! 条件に合う物件をプロが一緒にお探しします。
豊島区のおすすめ物件
-
NEW6,500万円1戸公開中暮らしの真ん中に
ベルメゾン池袋高知ビル
4LDK/66.93㎡豊島区 東池袋駅 -
NEW5,980万円1戸公開中人と夢が行き交う街
菱和パレス池袋駅前
1LDK/34.74㎡豊島区 池袋駅 -
NEW6,398万円1戸公開中ビッグコミュニティの安心感
目白ガーデニア
3LDK/59.70㎡豊島区 学習院下駅 -
NEW5,480万円1戸公開中伝統と静けさを纏う邸宅街
グローリア駒込
1LDK/43.05㎡豊島区 駒込駅 -
NEW6,598万円1戸公開中未来へ広がる副都心ライフ
グランレーブ目白東
1SLDK/61.01㎡豊島区 東池袋駅 -
NEW5,580万円1戸公開中進化が続く
レガリアスパシエ目白
1LDK/43.26㎡豊島区 池袋駅 -
NEW11,990万円1戸公開中池袋を生活圏内に
ブランズ池袋立教南
3LDK/66.55㎡豊島区 池袋駅 -
NEW11,990万円2戸公開中池袋の地に建つタワーマンション
ライオンズタワー池袋
1SLDK/63.26㎡豊島区 東池袋駅
















