
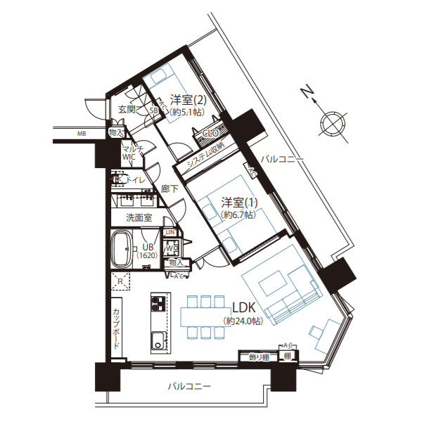
2LDK
2LDK
特徴ピックアップ
- 高層階25階・3方角住戸の開放感☀
- 天候が良い日には富士山を望める🗻
- 飾り棚で“魅せる”収納を楽しむ♥
- 新築同様の新規フルリノベーション物件
編集部の部屋レポ
ゼロレボ編集部が実際に現地を訪れました。
写真や図面だけじゃわからない
リアルな空気感を全力でお届けします!
-
1 / 8
今回ご紹介するのは、タワーマンション25階に位置する眺望自慢の2LDK。ワイドサッシ1面に広がる絶景が、日常に特別な時間を届けてくれます。室内は新規フルリノベーション済み。木目×ホワイトの上質なコントラストが、落ち着きと温もりを演出しています♩
-
2 / 8
メインルームは約24帖ものゆとりある大空間。リビングドアを開けた瞬間、視界いっぱいに広がる開放感に思わず息をのむはず。ブラックフレームのスライドドアをあしらった飾り棚が、空間にスタイリッシュなアクセントを添えています。
-
3 / 8
憧れのアイランドキッチンが、暮らしの中心に。オープンな設計で料理をする時間も自然と楽しくなり、ご家族や友人と過ごす時間も特別に。デザイン性と機能性を兼ね備えた空間は、インテリアの一部としても存在感抜群ですね。
-
4 / 8
アクセントクロスのウォールや木製フレームのミラー、さらに存在感のあるベッセルタイプの洗面台。どの角度から眺めてもスタイリッシュで洗練された印象の独立トイレは、毎日の生活にさりげない贅沢感をプラスしてくれますよ♩
-
5 / 8
ダブルボウルを備えたパウダールームは、ふたり並んで身支度ができる贅沢な設計。忙しい朝でもスムーズに準備ができ、互いの時間を気にせず快適に使えます。サイドにも収納を備え、スッキリ空間を保つことができますよ。
-
6 / 8
洋室はバルコニーに直接アクセスでき、窓から差し込む光と風が室内に広がります☀室内のシステム収納は、まるでセレクトショップのディスプレイのように衣類や小物を美しく整理でき、使うたびにワクワク感を演出。
-
7 / 8
ワンランク上のバスルームには、くつろぎを演出する浴室TVを完備。湯船に浸かりながら映像を楽しめる贅沢なひと時は、日々の疲れを癒すだけでなく、バスタイムそのものを特別な時間に変えてくれますよ◎
-
8 / 8
窓の向こうに広がる景色は、25階ならではの贅沢。晴れた日には、遠く富士山の雄大な姿がひときわ際立ち、室内にいるだけで非日常の空気に包まれます。バルコニーにチェアを用意して、ゆっくり過ごす自分時間を満喫してくださいね♩
その他の室内・設備写真
ゼロレボ編集部が
お部屋を訪れてみて
池尻大橋駅からわずか徒歩2分にそびえるタワーマンション『プリズムタワー』。今回ご紹介したのは27階建ての25階に位置する、圧倒的な開放感を誇る2LDKです。東・南・西の3方角部屋のため、朝から夕方まで陽光が差し込み、明るく爽やかな空気に包まれます✦室内は86.02㎡のゆとりある専有面積を活かした新規フルリノベーション済み。約24帖のリビングダイニングキッチンは、間接照明やデザインウォールが随所に施され、まるで雑誌の一ページのような煌びやかな空間が広がります。キッチンにはディスポーザーや蒸気排出ユニットが備わり、バスルームはモニター付きで肩湯・腰湯も楽しめるラグジュアリー仕様。さらに床ワイパー洗浄機能も完備され、水回りの快適さも妥協なしです。高層階ならではの眺望と、タワーマンションならではの優雅な設備、日常のすべてが特別になる暮らしを是非スタートしませんか♩ ライター:mao【25K19】
もっと見る毎月の支払い予想シミュレーション
- ローン支払い目安
- 699,084円/月
- 管理費
- 24,700円/月
- 修繕積立金
- 28,990円/月
- 合計
- 752,774円/月
※ローンの目安は、頭金ゼロ、借入年数35年、都市銀行・変動金利0.595%(優遇利用を想定。)審査内容により、融資の一部または全部をご利用いただけない場合がございます。予めご了承ください。
住戸概要
- 価格
- 26,500

- 所在階
- 25

- 間取り
- 2LDK
- 専有面積
- 86.02

- バルコニー
- 25.56

- 管理費
- 24,700

- 修繕積立費
- 28,990

- CATV施設利用料
- 40円/月
- インターネット運営保守管理料
- 924円/月
- リノベーション
- アフターサービス保証付
- 住宅ローン控除対象
現在、この物件に
成約済みのお部屋情報はありません。
プリズムタワー建物全体と周辺環境
アクセス
- 東急田園都市線 『池尻大橋』駅 徒歩2分
- 京王井の頭線 『神泉』駅 徒歩16分
- 東急東横線/東京メトロ日比谷線 『中目黒』駅 徒歩18分
物件概要
- 物件名
- プリズムタワー
- 所在地
- 目黒区大橋1-10-1
- 築年数
- 平成21年/2009年4月
- 構造
- 鉄筋コンクリート造
- 階数
- 地下2階付 27階建
- 土地
- 所有権
- 総戸数
- 219戸
- 分譲会社
- 東急不動産株式会社・東京急行電鉄株式会社・三井不動産レジデンシャル株式会社
- 管理会社
- 大和ライフネクスト株式会社
- 駐車場
- 有 (35,000円~44,000円/月)
- 駐輪場
- 有 (200円~300円/月)
- バイク置場
- 有 (1,000円~1,500円/月 ミニバイク置場:500円/月)
- ペット飼育
- 可 (1住戸2匹迄、小型犬・犬猫の小動物で成長後高さ50cm以内かつ体重10kg以内の動物に限る ※規約有)
- 学区(小学校)
- 菅刈小学校
- 学区(中学校)
- 第一中学校
- 共用・設備
-
- エレベーター
- オートロック
- 宅配BOX
- トランクルーム
- 防犯カメラ
- コンシェルジュサービス
- 24時間ゴミ出し可
- 各階ダストステーション
- 24時間有人管理
- 共用・テナント
-
- 郵便局
- クリーニング店
- 備考・その他
- インターネット使用料:924円/月
CATV使用料:40円/月
トランクルーム使用料:900円/月~
設備・特徴
- 新耐震基準適合
今見ている物件以外も、
仲介手数料が最大無料。
リノベーションご売却についてもお気軽にご相談ください!
リノベーションご売却もゼロレボにお任せください
無料お問い合わせはこちら
ご希望条件に
ぴったりの
お部屋が
見つかりませんか?
当サイトに掲載していない物件でも、仲介手数料無料または割引でご案内! 条件に合う物件をプロが一緒にお探しします。
目黒区のおすすめ物件
-
NEW7,499万円1戸公開中ホッとできる暖かみのある空間
ライオンズマンション上目黒
2LDK/51.84㎡目黒区 中目黒駅 -
NEW5,299万円1戸公開中街ごと楽しむ
都立大八雲マンション
1LDK/48.60㎡目黒区 都立大学駅 -
NEW6,990万円1戸公開中ゆったりお散歩気分で帰宅
ジェイパーク目黒祐天寺
1LDK/40.01㎡目黒区 祐天寺駅 -
NEW6,280万円1戸公開中素敵なシティライフを
ニックハイム中目黒
1LDK/46.74㎡目黒区 中目黒駅 -
NEW21,480万円1戸公開中都会と田舎が混在
コートヤード祐天寺
3LDK/106.51㎡目黒区 祐天寺駅 -
NEW3,998万円1戸公開中高台に堂々と佇む
松見坂武蔵野マンション
1LDK/39.53㎡目黒区 神泉駅 -
NEW4,590万円1戸公開中都心生活を心地よく
第2目黒コーポビアネーズ
1LDK/41.52㎡目黒区 目黒駅 -
NEW3,280万円1戸公開中快適が詰まった町
祐天寺フラット
1LDK/53.09㎡目黒区 祐天寺駅















