
1DK
1DK
特徴ピックアップ
- 大岡山北口商店街から徒歩3分のヴィンテージマンション
- 富士山を望む3階住戸
- 新規内装リノベーション済み
- ワンルーム感覚で使える広々1DK
編集部の部屋レポ
ゼロレボ編集部が実際に現地を訪れました。
写真や図面だけじゃわからない
リアルな空気感を全力でお届けします!
-
1 / 8
3階部分に位置する、専有面積34.97㎡・1DKのお部屋。1人暮らしにちょうど良いサイズ感で、無理のない快適な生活動線が魅力です。室内はリノベーションが施され、装飾を抑えたシンプルデザインの美しい空間へと一新。エアコンも設置済のため、引っ越し当日から季節を問わず快適にお過ごしいただけます。
-
2 / 8
バルコニーからの見晴らしは良好で、3階とは思えないほどの開放感。西向き住戸ならではの、午後の優しい日差しが室内を心地よく照らします。日中は自然光を活かした生活ができ、照明に頼りすぎないのも嬉しいポイント。
-
3 / 8
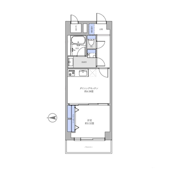
メインルームは約6.58帖。柔らかな木目フローリングとホワイトクロスの組み合わせが、清潔感あふれる爽やかな印象を演出します。キッチンは壁付タイプを採用しており、調理に集中しやすい設計。生活空間に匂いや煙が広がりにくく、居住スペースを快適に保てますよ。
-
4 / 8
こちらの一室にはモニター付きインターフォンを設置。来訪者の顔や声を事前に確認できるため、突然の訪問にも落ち着いて対応可能。セールスや不審者など、トラブルの原因となり得る接触を未然に防げる点は、1人暮らしにとって心強いです。
-
5 / 8
洋室は約5.32帖。メインルームとはスライドドアで仕切られており、開放すれば一体感のある広々空間として使用できます。さらに大容量のクローゼットも備えており、衣類や生活用品をしっかり収納◎お部屋をすっきり保てるのは嬉しいですね。
-
6 / 8
ベージュ色のパネルに、ブラックのシャンプーラックとカウンターが映えるバスルーム。追い焚き機能を完備しており、いつでも温かいお湯でゆったりと入浴が可能。ワンタッチで湯温をキープできるため、半身浴や長風呂を楽しみたい方にも嬉しい仕様です♡
-
7 / 8
洗濯機置き場・洗面化粧台・バスルームをひとまとめにしたサニタリースペース。大きめの洗面化粧台は収納力も十分で、ドライヤーからストック品までしっかり収納できます。もちろん歯ブラシなどの細かなアイテムも整頓しやすく、毎日の身支度が快適に。
-
8 / 8
木目の温もりを感じられる玄関スペース。トール型シューズボックスには全身ミラーが設置されており、お出かけ前の身だしなみチェックもスムーズです。フットライトも備え、暗い時間帯でも足元をしっかり照らしてくれますよ♪
その他の室内・設備写真
ゼロレボ編集部が
お部屋を訪れてみて
大岡山駅から徒歩4分・商店街から徒歩3分の利便性良好なヴィンテージマンション『秀和大岡山レジデンス』。大岡山は駅前に複数のスーパーがあるのに加えて、近くに大学があることでリーズナブルな飲食店も多め。自炊派・外食派どちらの方にとっても暮らしやすい街と言えるでしょう◎大手町、目黒、横浜方面など様々なエリアに一本でアクセスできるため、通勤にも非常に便利です。外観はどっしりと重厚感があり、ヴィンテージマンションらしいデザイン✧バルコニーの手すり1つ見ても凝っています。お部屋の間取りは単身向けの1DK。ダイニングキッチンと洋室を仕切る扉が大きく開くスライド型なので、2部屋を繋げて、広めなワンルームのような感覚で暮らせますよ。生活動線が良い点や、エアコンが1基で済むというのもこのような間取りの魅力ですね。そして私が一番魅力的に感じたのがバルコニーから見た眺望。スッキリとした青空の下に富士山と穏やかな住宅街。何も考えず遠くの山を眺めているだけで、気持ちをリフレッシュできました。ぜひ現地でご覧になってみてください。 ライター:yuki【25L05】
もっと見る毎月の支払い予想シミュレーション
- ローン支払い目安
- 92,305円/月
- 管理費
- 9,500円/月
- 修繕積立金
- 12,200円/月
- 合計
- 114,005円/月
※ローンの目安は、頭金ゼロ、借入年数35年、都市銀行・変動金利0.595%(優遇利用を想定。)審査内容により、融資の一部または全部をご利用いただけない場合がございます。予めご了承ください。
住戸概要
- 価格
- 3,499

- 所在階
- 3

- 間取り
- 1DK
- 専有面積
- 34.97

- バルコニー
- 3.50

- 管理費
- 9,500

- 修繕積立費
- 12,200

- 住民活動協力金
- 2,000円/月
- リノベーション
秀和大岡山レジデンス建物全体と周辺環境
アクセス
- 東急目黒線/大井町線 『大岡山』駅 徒歩4分
物件概要
- 物件名
- 秀和大岡山レジデンス
- 所在地
- 目黒区大岡山2-4-2
- 築年数
- 昭和47年/1972年2月
- 構造
- 鉄筋コンクリート造
- 階数
- 7階建
- 土地
- 所有権
- 総戸数
- 82戸
- 分譲会社
- 秀和株式会社
- 管理会社
- レジデンス・ビルディング・マネジメント株式会社
- 駐車場
- 有 (15,000円/月)
- 駐輪場
- 有 (6,000円~7,200円/年)
- バイク置場
- 無
- ペット飼育
- 不可
- 学区(小学校)
- 中根小学校
- 学区(中学校)
- 第十一中学校
- 共用・設備
-
- エレベーター
- 夜間オートロック
- 宅配BOX
- 備考・その他
- 夜間オートロック::22:00~翌5:00
設備・特徴
- 長期修繕計画有
今見ている物件以外も、
仲介手数料が最大無料。
リノベーションご売却についてもお気軽にご相談ください!
リノベーションご売却もゼロレボにお任せください
無料お問い合わせはこちら
ご希望条件に
ぴったりの
お部屋が
見つかりませんか?
当サイトに掲載していない物件でも、仲介手数料無料または割引でご案内! 条件に合う物件をプロが一緒にお探しします。
目黒区のおすすめ物件
-
NEW5,699万円1戸公開中静けさが都会に息づく
ザ・ランド代官山青葉台
1DK/30.25㎡目黒区 池尻大橋駅 -
NEW9,880万円1戸公開中日常にやさしさを足す住まい
ベルメゾン鷹番
2LDK/68.94㎡目黒区 学芸大学駅 -
NEW3,780万円1戸公開中人気の都立大学のすぐそば
シャンボール都立大
1DK/30.24㎡目黒区 都立大学駅 -
NEW7,280万円1戸公開中光降り注ぐプライベート空間
碑文谷寿マンション
2LDK/60.88㎡目黒区 学芸大学駅 -
NEW7,290万円1戸公開中美意識に洗練された暮らし
自由が丘ハイタウン
3LDK/68.05㎡目黒区 自由が丘駅 -
NEW5,499万円1戸公開中上品さ薫る日常風景
ミニカムマンション
2LDK/58.19㎡目黒区 都立大学駅 -
NEW6,680万円1戸公開中シンプルな輝きをこの手に
朝日中目黒マンション
1LDK/43.28㎡目黒区 中目黒駅 -
NEW5,699万円2戸公開中優雅な風を感じながら
パシフィック自由が丘マンション
1LDK/47.41㎡目黒区 自由が丘駅

















