
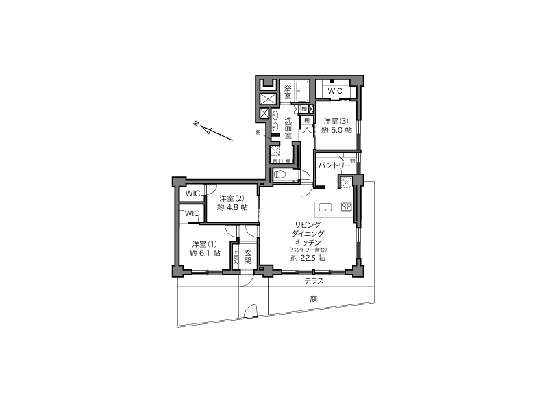
3LDK+WIC
3LDK+WIC
特徴ピックアップ
- 人気エリア都立大学駅から徒歩7分のマンション
- 約22.5帖の広々としたリビングダイニングキッチン
- 陽当たりの良い専用庭付き♪
- ウォークインクローゼットを3箇所に完備
編集部の部屋レポ
ゼロレボ編集部が実際に現地を訪れました。
写真や図面だけじゃわからない
リアルな空気感を全力でお届けします!
-
1 / 8
約22.5帖の広々としたリビングダイニングキッチンは、専用庭に面した大きな開口部が魅力。採光がたっぷり入り、室内に自然な明るさと開放感をもたらします。キッチンと一体感のあるレイアウト。
-
2 / 8
2面採光で陽当たり&風通し良好。専用庭との繋がりがあることで視線が抜け、実際の帖数以上の広がりを感じられる点もポイントです。エアコン1基が備わっていました。
-
3 / 8
リビング全体を見渡せるカウンタータイプのシステムキッチン。シンプルで使い勝手の良いデザインで、清潔感を感じられます。複数品の同時調理が可能なグリル付き3口コンロ、便利な食洗機、浄水器を搭載。
-
4 / 8
3つの洋室にはそれぞれ大容量サイズのウォークインクローゼットが備わっています。季節もののコートや丈の長いワンピースなども綺麗に保管できる、便利なスペース。
-
5 / 8
専用庭は南西向きに2ヵ所備わっています。ガーデニングを楽しんだり、チェアを置いて外気浴をしたりと、日常に心地よい余白が生まれます。視線を気にせず過ごしやすく、1階住戸ならではの豊かな暮らしを演出します。
-
6 / 8
サニタリールームには洗面台・洗濯機置き場・バスルームがまとまっています。可動式棚が複数あり、収納力も抜群。2面ボウル付の洗面化粧台は、忙しい朝の身支度にもとっても便利です♪
-
7 / 8
窓には2重サッシが採用されており、外からの音を和らげる防音性と室内の温度を保ちやすい断熱性が期待できます。室内で過ごす時間がより心地よく感じられる優れモノ。
-
8 / 8
今回ご紹介のお部屋は、特別なプライベートエントランスを確保。マンションの裏側から玄関ポーチに繋がり、まるで戸建て住宅のようなプライベート感を味わえます。
その他の室内・設備写真
ゼロレボ編集部が
お部屋を訪れてみて
幅広い世代に人気の都立大学駅から徒歩7分。落ち着いた閑静な住宅街に佇む中古マンション『豊栄平町マンション』をご紹介します。駅までフラットに歩け、周辺にはスーパーやコンビニも揃うため、日々の暮らしは快適♪総戸数47戸の管理体制が整ったマンションで、オートロック付きのセキュリティも安心材料。過去には大規模修繕工事が行われ、共用部も丁寧に維持されています。ご紹介のお部屋は、専有面積92.34㎡のゆとりある3LDK。約22.5帖のリビングダイニングキッチンをメインとした、開放感溢れる間取りです。窓越しに見える専用庭とテラスが、室内に広がりをもたらす心地よい住まいです。対面式キッチンや食洗機、浴室乾燥機など設備充実の仕様で毎日の家事がスムーズ。全居室に収納を確保し、ウォークインクローゼットは各洋室に計3箇所備わっています。広さと動線のバランスが良く、ファミリーやDINKsの方におすすめ。庭に近いリビングでくつろぐ時間や、風が抜ける室内でのひと息など、豊かな日常が思い浮かびます。 ライター:rei【25K09】
もっと見る毎月の支払い予想シミュレーション
- ローン支払い目安
- 232,148円/月
- 管理費
- 32,230円/月
- 修繕積立金
- 15,600円/月
- 合計
- 279,978円/月
※ローンの目安は、頭金ゼロ、借入年数35年、都市銀行・変動金利0.595%(優遇利用を想定。)審査内容により、融資の一部または全部をご利用いただけない場合がございます。予めご了承ください。
住戸概要
- 価格
- 8,800

- 所在階
- 1

- 間取り
- 3LDK+WIC
- 専有面積
- 92.34

- 管理費
- 32,230

- 修繕積立費
- 15,600

- 庭
- 35.52㎡
- リノベーション
- アフターサービス保証付
現在、この物件に
成約済みのお部屋情報はありません。
豊栄平町マンション建物全体と周辺環境
アクセス
- 東急東横線 『都立大学』駅 徒歩5分
- 東急東横線 『学芸大学』駅 徒歩9分
- 東急目黒線/大井町線 『大岡山』駅 徒歩17分
- 東急バス 『平町』停 徒歩2分
物件概要
- 物件名
- 豊栄平町マンション
- 所在地
- 目黒区平町1-4-29
- 築年数
- 昭和45年/1970年5月
- 構造
- 鉄筋コンクリート造
- 階数
- 7階建
- 土地
- 所有権
- 総戸数
- 47戸
- 分譲会社
- 豊栄土地開発株式会社
- 管理会社
- 株式会社東急コミュニティー
- 駐車場
- 有 (4,420円/月 ※内訳:車庫管理費1,430円・別途積立金2,990円)
- 駐輪場
- 有 (300円/月 ※ステッカー貼付200円/枚)
- バイク置場
- 有 (500円/月 ※原付のみ可)
- ペット飼育
- 不可
- 学区(小学校)
- 大岡山小学校
- 学区(中学校)
- 第八中学校
- 共用・設備
-
- エレベーター
- オートロック
- 防犯カメラ
- 備考・その他
- 管理人駐在:月~土曜日
設備・特徴
- 長期修繕計画有
ご希望条件に
ぴったりの
お部屋が
見つかりませんか?
当サイトに掲載していない物件でも、仲介手数料無料または割引でご案内! 条件に合う物件をプロが一緒にお探しします。
目黒区のおすすめ物件
-
NEW4,399万円1戸公開中丁寧な暮らし
目黒グリーンコープ
1LDK/36.51㎡目黒区 目黒駅 -
NEW3,280万円1戸公開中快適が詰まった町
祐天寺フラット
1LDK/53.09㎡目黒区 祐天寺駅 -
NEW3,499万円1戸公開中高台に思いのせて
秀和大岡山レジデンス
1DK/34.97㎡目黒区 大岡山駅 -
NEW7,880万円1戸公開中憩いの空間を
マンションニュー目黒
3LDK/63.00㎡目黒区 学芸大学駅 -
NEW7,980万円1戸公開中家具付きで優雅に
GSハイム都立大
3LDK/80.75㎡目黒区 都立大学駅 -
NEW5,699万円1戸公開中静けさが都会に息づく
ザ・ランド代官山青葉台
1DK/30.25㎡目黒区 池尻大橋駅 -
NEW12,980万円1戸公開中暮らしに便利
ドルフ都立大
3LDK/101.91㎡目黒区 都立大学駅 -
NEW4,780万円1戸公開中控えめで美しい
柿の木坂アビタシオン
1LDK/48.79㎡目黒区 都立大学駅
















