
2LDK
2LDK
特徴ピックアップ
- 27階による清々しい眺望☀
- リノベーション済みの綺麗な内装◎
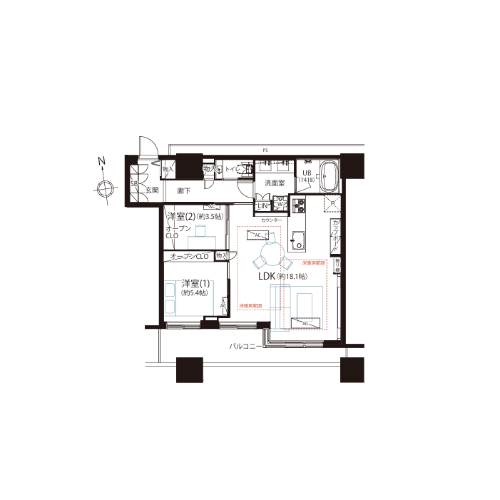
- LDK約18帖のゆとりある居住空間♪
- ペットと一緒に暮らせます♡
編集部の部屋レポ
ゼロレボ編集部が実際に現地を訪れました。
写真や図面だけじゃわからない
リアルな空気感を全力でお届けします!
-
1 / 8
-
2 / 8
-
3 / 8
-
4 / 8
-
5 / 8
-
6 / 8
-
7 / 8
-
8 / 8
その他の室内・設備写真
ゼロレボ編集部が
お部屋を訪れてみて
『クレストプライムタワー芝』は浜松町駅から徒歩6分ほどに佇む総戸数479戸のビッグコミニティー。大門駅・芝公園駅も徒歩圏に収まり、山手線と都営地下鉄を自在に使える立地です。再開発が進む浜松町エリアにありながら、芝公園の緑や運河の風景も身近で、都市の利便性と落ち着きを行き来できる場所に位置しています。常駐管理・4重セキュリティ・各階クリーンステーションなど、日常を支える基盤が厚く整っています。また、スカイラウンジやゲストスイート、フィットネススタジオといったタワーマンションならではの充実した共用設備も魅力的ですよね。
今回ご紹介したのは27階に位置する2LDK。専有面積は約62㎡とゆとりのある居住空間は新規フルリノベーションによってナチュラルモダンテイストのオシャレな空間に生まれ変わりました。特に約18.1帖のLDKはそもそものびのびとしたスペースでありながら、バルコニー側に豊富に取り入れられた窓や、間接照明、大きな全身鏡が取り入れられているおかげで空間に奥行きを感じられ、開放感があふれる清々しい空間に仕上がっています。また、高層階の特権であるダイナミックな眺望もオススメしたいポイント。窓の外には大都会港区の街並みを一望することができますよ。
都心の動線と高層階ならではの清々しい生活を享受できる一室です。ぜひ一度内見してみてくださいね。 ライター:kayo【26B03】
毎月の支払い予想シミュレーション
- ローン支払い目安
- 712,275円/月
- 管理費
- 21,800円/月
- 修繕積立金
- 12,400円/月
- 合計
- 746,475円/月
※ローンの目安は、頭金ゼロ、借入年数35年、都市銀行・変動金利0.595%(優遇利用を想定。)審査内容により、融資の一部または全部をご利用いただけない場合がございます。予めご了承ください。
住戸概要
- 価格
- 27,000

- 所在階
- 27

- 間取り
- 2LDK
- 専有面積
- 62.24

- バルコニー
- 7.30

- 管理費
- 21,800

- 修繕積立費
- 12,400

- サービスバルコニー
- 2.80㎡
- リノベーション
- アフターサービス保証付
- 住宅ローン控除対象
先行公開の速報物件です
詳細レポート準備中
ご希望があれば優先して作成します。ご内見は可能です。

2LDK
2LDK
先行公開の速報物件です!
詳細レポート準備中
- 内見してみたい
- もっと詳しく知りたい
- 記事が完成したら連絡してほしい
ご希望があれば優先して作成します。ご内見は可能です。
毎月の支払い予想シミュレーション
- ローン支払い目安
- 765,036円/月
- 管理費
- 23,200円/月
- 修繕積立金
- 13,300円/月
- 合計
- 801,536円/月
※ローンの目安は、頭金ゼロ、借入年数35年、都市銀行・変動金利0.595%(優遇利用を想定。)審査内容により、融資の一部または全部をご利用いただけない場合がございます。予めご了承ください。
住戸概要
- 価格
- 29,000

- 所在階
- 29

- 間取り
- 2LDK
- 専有面積
- 66.3

- バルコニー
- 15.1

- 管理費
- 23,200

- 修繕積立費
- 13,300

- リノベーション
- アフターサービス保証付
- 住宅ローン控除対象
現在、この物件に
成約済みのお部屋情報はありません。
クレストプライムタワー芝建物全体と周辺環境
アクセス
- JR山手線/京浜東北線/東京モノレール 『浜松町』駅 徒歩6分
- 都営浅草線/大江戸線 『大門』駅 徒歩6分
- 都営三田線 『芝公園』駅 徒歩7分
- ゆりかもめ 『日の出』駅 徒歩9分
物件概要
- 物件名
- クレストプライムタワー芝
- 所在地
- 港区芝1-2-1
- 築年数
- 平成19年/2007年8月
- 構造
- 鉄筋コンクリート造
- 階数
- 地下2階付 39階建
- 土地
- 所有権
- 総戸数
- 479戸
- 分譲会社
- 株式会社ゴールドクレスト
- 管理会社
- 株式会社ゴールドクレストコミュニティ
- 駐車場
- 有 (39,000円~52,000円/月)
- 駐輪場
- 有 (200円~700円/月)
- バイク置場
- 有 (5,000円/月)
- ペット飼育
- 可 (犬猫2匹迄、成長時50cm未満・10kg未満 ※規約有)
- 事務所使用
- 不可
- 学区(小学校)
- 芝小学校
- 学区(中学校)
- 三田中学校
- 共用・設備
-
- エレベーター
- オートロック
- 宅配BOX
- 防犯カメラ
- 24時間有人管理
- コンシェルジュサービス
- 24時間ゴミ出し可
- 各階ダストステーション
- ディスポーザー
- 備考・その他
- 36F:スカイラウンジ
29F:ゲストスイート
1F:フィットネススタジオ・ピアノホール・グランドエントランスホール
ゲストスイート:10,000円/泊
2024年2月 大規模修繕工事実施済
設備・特徴
- 新耐震基準適合
- 大規模修繕履歴有
- 建物状況調査済
- 制震構造
今見ている物件以外も、
仲介手数料が最大無料。
リノベーションご売却についてもお気軽にご相談ください!
リノベーションご売却もゼロレボにお任せください
無料お問い合わせはこちら
ご希望条件に
ぴったりの
お部屋が
見つかりませんか?
当サイトに掲載していない物件でも、仲介手数料無料または割引でご案内! 条件に合う物件をプロが一緒にお探しします。
港区のおすすめ物件
-
NEW39,990万円1戸公開中下屋敷から紡がれた格調高きマンション
ウェリス麻布狸穴
3LDK/96.03㎡港区 麻布十番駅 -
NEW17,480万円1戸公開中派手じゃない贅沢
ライオンズマンション広尾南
3LDK/62.06㎡渋谷区 広尾駅 -
NEW17,580万円3戸公開中窓の先に広がる美景
芝浦アイランドケープタワー
2LDK+WIC/75.36㎡港区 田町駅 -
NEW6,499万円1戸公開中都会的だけど人情味あふれる暮らし
ウィスタリア元麻布
1LDK/32.64㎡港区 麻布十番駅 -
NEW13,990万円1戸公開中都会のまんなかでもほっとできる場所
サージュ赤坂
2LDK/51.22㎡港区 赤坂駅 -
NEW34,980万円1戸公開中やさしさと洗練が同居する
ヴェーゼント赤坂新坂
2LDK/83.78㎡港区 青山一丁目駅 -
NEW12,480万円1戸公開中憧れの街で
イトーピア南麻布マンション
2LDK/65.36㎡港区 白金高輪駅 -
NEW59,800万円1戸公開中国際水準の空気が流れる
アークタワーズウエスト
3LDK/129.76㎡港区 六本木一丁目駅


















