
1LDK
1LDK
特徴ピックアップ
- 店舗・事務利用可!ネイルサロンやエステサロンにも◎
- 開口部が広く明るい1LDK
- クロス張り替え済み✧
- 内装綺麗な状態です
編集部の部屋レポ
ゼロレボ編集部が実際に現地を訪れました。
写真や図面だけじゃわからない
リアルな空気感を全力でお届けします!
-
1 / 8
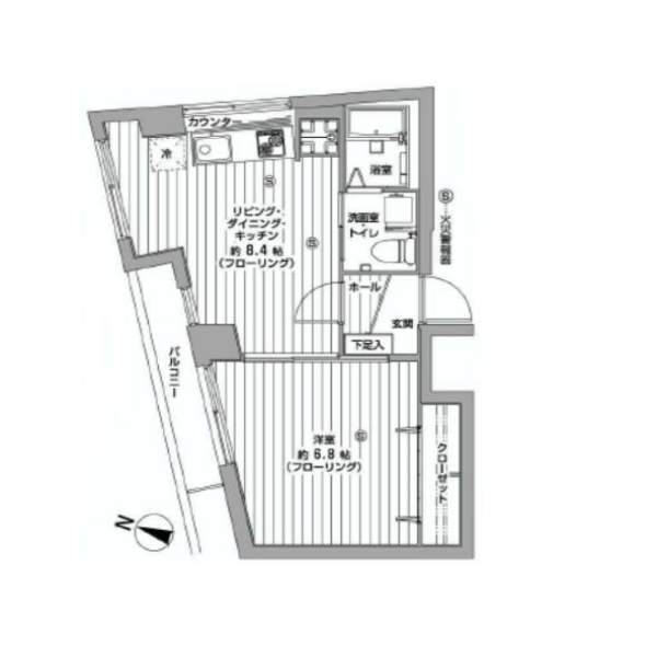
4階に位置する1LDK、専有面積34.31㎡のコンパクトなお部屋です。北東・北西向きの角住戸で、風通しが良く爽やかな空気が室内に届きます。住戸としてだけでなく、店舗や事務所としての利用も可能。ネイルサロンやエステサロンなど、小規模なビジネス空間としても適しており、住まい兼仕事場として活用できるのも魅力です◎
-
2 / 8
約8.4帖のリビングダイニングキッチンは、木目調の温かみとホワイトカラーを組み合わせた可愛らしい内装です。特徴的な形の間取りを活かして家具を工夫すれば、自分らしい空間作りが楽しめそう♪リビングとダイニングを分けず一体化するとより広々と使え、生活動線もスムーズになります。
-
3 / 8
温かみのある木目調キッチンは、壁付けでコンパクトながら機能性抜群。窓からの自然換気で、匂いや蒸気も気になりません。2口コンロにグリルも付いているので、複数の料理を同時に調理可能。収納スペースも充実しており、調理器具や食材をきれいに整理できるのも嬉しいポイントです。
-
4 / 8
約6.8帖の洋室は、メインルームとスモークガラスのスライドドアで仕切られています。光を程よく通すため、プライバシーを確保しつつ明るさも取り込めます。大容量のクローゼットも備わっており、衣類や小物の収納に困ることはありません。
-
5 / 8
ナチュラルで清潔感のあるサニタリールームには、スタイリッシュな洗面台とトイレが設置されています。トイレには扉がありませんが、1人暮らしであれば問題なく使える仕様。毎日の身支度や掃除が効率的に行える、機能性に優れた空間です。
-
6 / 8
白を基調としたシンプルなバスルームには、壁面にラックが備え付けられており、シャンプーやボディーソープなどをすっきり整理可能です。清潔感を保ちながら、必要なアイテムを手の届く場所に収納できる使いやすい造りですね。
-
7 / 8
メインルームと洋室にそれぞれエアコンを完備しており、入居後すぐに快適な生活を始められるのは嬉しいポイント。季節を問わず快適に過ごすことができ、追加購入の必要はありませんよ♪
-
8 / 8
前面に建物がないため、バルコニーからの視界は開けています。北西向きで柔らかな光が差し込み、洋室の大きな掃き出し窓から直接アクセス可能。洗濯物を干すだけでなく、ちょっとしたリフレッシュ空間としても活用できます☀
その他の室内・設備写真
ゼロレボ編集部が
お部屋を訪れてみて
目黒駅から徒歩1分の駅チカマンション『グリーンビュー白金』。店舗・事務所利用可の物件で、エステや整体サロンなどが多く入っています。1フロア2住戸の縦長な構造のため共用廊下がコンパクト!お部屋とエレベーターの距離が近く、建物内の移動がスムーズにできますよ。内装は白を基調とした明るい色合いです✧全面的なリノベーションは行われていませんが、今回クロスを張り替え済み。居室・水回りともにそれほど使用感は強くなく、改めてリノベーションをしなくても十分快適に暮らせそうです。開口部が広い上に居室間を仕切る扉は半透明な素材が使用されており、とても明るい印象でした。新居をお探しの方はもちろん、ネイルサロンやエステサロンを開業予定の方にもおすすめしたいです◎ ライター:yuki【25E16】
もっと見る毎月の支払い予想シミュレーション
- ローン支払い目安
- 118,184円/月
- 管理費
- 20,592円/月
- 修繕積立金
- 8,242円/月
- 合計
- 147,018円/月
※ローンの目安は、頭金ゼロ、借入年数35年、都市銀行・変動金利0.595%(優遇利用を想定。)審査内容により、融資の一部または全部をご利用いただけない場合がございます。予めご了承ください。
住戸概要
- 価格
- 4,480

- 所在階
- 4

- 間取り
- 1LDK
- 専有面積
- 34.31

- バルコニー
- 3.77

- 管理費
- 20,592

- 修繕積立費
- 8,242

- 一部リノベーション

1LDK
1LDK
特徴ピックアップ
- 新規フルリノベーション物件✦
- ダークブラウン×グレーをアクセントとしたシックな内装
- 通風良好な6階の1LDK
- 事務所・店舗として利用可能です
編集部の部屋レポ
ゼロレボ編集部が実際に現地を訪れました。
写真や図面だけじゃわからない
リアルな空気感を全力でお届けします!
-
1 / 8
6階部分に位置する1LDKの角部屋をご紹介します♪店舗や事務所利用可能で、ネイルサロンやエステサロンにも最適。フルリノベーションが予定されています。
-
2 / 8
どんな色の家具やカーテンも合わせやすいシンプルでスタイリッシュな内装デザイン。メインとなるリビングダイニングキッチンは、約8.4帖の広さがあります。
-
3 / 8
奥に広がるのは、おおよそ6.8帖の洋室。エアコン付きなので、引越し直後から快適な暮らしをスタートできそう。大容量サイズのクローゼット付きで収納面も充実しています。
-
4 / 8
クローゼットには普段使いのジャケットやシャツ、季節もののコートやかさばりやすいダウンジャケットなども綺麗に保管できます。衣装持ちの方も安心ですね。
-
5 / 8
広々としたキッチンスペースには窓があるので、調理中の匂いや煙が気になりにくい構造。複数品の同時調理が可能なグリル付き3口コンロが採用されているのも嬉しいポイントです。
-
6 / 8
サニタリルームには洗面台・バスルームが集結。水回りの機能がまとまっていると、家事動線がスムーズです♪シックな色合いのバスルームには、快適なご入浴に欠かせない追焚き機能&浴室乾燥機を搭載。
-
7 / 8
6階部分につき見晴らしが良く、開放感溢れる眺望をお楽しみいただけます。目黒通りを一望できる、都会的な景観。横長のバルコニーは風通しが良く、洗濯物がよく乾きます♪
-
8 / 8
白を基調としたクロスとフロアがスタイリッシュな玄関。トールタイプで大容量のシューズボックスを完備しています。そのままリビングダイニングキッチンへ繋がる、開放的な間取りです。
その他の室内・設備写真
ゼロレボ編集部が
お部屋を訪れてみて
こちらのお部屋は今回内装をフルリノベーション済み!深みのあるブラウンやグレーがアクセントカラーとして使われており、シックな雰囲気です。キッチンやバスルームといった水回りの設備ももちろん交換されているため、新築のような綺麗さ✦洋室が約6.8帖のゆったりとしたレイアウトなので、大きめなベッドを置いても窮屈感がなさそうです。ワイドなクローゼットは2つに分割。アウター・シャツ、ボトムスなど、ジャンルごとに分けて収納できるのが魅力的ですね。6階住戸かつ大通りに面しているため、外からの視線は気になりません◎アクセスの良さが抜群なので、住居や事務所のほか、2拠点生活をされる方のセカンドハウスにも良さそうだと思いました。ぜひ現地にも足を運んでみてください。 ライター:yuki【25E16】
もっと見る毎月の支払い予想シミュレーション
- ローン支払い目安
- 115,546円/月
- 管理費
- 20,592円/月
- 修繕積立金
- 8,242円/月
- 合計
- 144,380円/月
※ローンの目安は、頭金ゼロ、借入年数35年、都市銀行・変動金利0.595%(優遇利用を想定。)審査内容により、融資の一部または全部をご利用いただけない場合がございます。予めご了承ください。
住戸概要
- 価格
- 4,380

- 所在階
- 6

- 間取り
- 1LDK
- 専有面積
- 34.31

- バルコニー
- 3.77

- 管理費
- 20,592

- 修繕積立費
- 8,242

- リノベーション
過去に販売したお部屋の一部をご紹介。
住まい探しやリノベーションのヒントにご覧ください。
もっと見る
閉じる
グリーンビュー白金建物全体と周辺環境
アクセス
- JR山手/東急目黒/東京メトロ南北/都営三田線 『目黒』駅 徒歩1分
物件概要
- 物件名
- グリーンビュー白金
- 所在地
- 品川区上大崎2-13-1
- 築年数
- 昭和53年/1978年1月
- 構造
- 鉄筋コンクリート造
- 階数
- 7階建
- 土地
- 所有権
- 総戸数
- 14戸
- 分譲会社
- 日本興和株式会社
- 管理会社
- 三誠地所株式会社
- 駐車場
- 無
- 駐輪場
- 無
- ペット飼育
- 不可
- 事務所使用
- 可 (要承認・規約有)
- 学区(小学校)
- 第三日野小学校
- 学区(中学校)
- 日野学園
- 共用・設備
-
- エレベーター
- オートロック
- 夜間オートロック
- 防犯カメラ
今見ている物件以外も、
仲介手数料が最大無料。
リノベーションご売却についてもお気軽にご相談ください!
リノベーションご売却もゼロレボにお任せください
無料お問い合わせはこちら
ご希望条件に
ぴったりの
お部屋が
見つかりませんか?
当サイトに掲載していない物件でも、仲介手数料無料または割引でご案内! 条件に合う物件をプロが一緒にお探しします。
品川区のおすすめ物件
-
NEW5,598万円1戸公開中南向きのあったか空間
ドルミ東品川
2LDK/58.24㎡品川区 品川シーサイド駅 -
NEW4,790万円1戸公開中趣のある暮らし
コートハウス東品川
2LDK/59.16㎡品川区 品川シーサイド駅 -
NEW2,999万円1戸公開中軽やかな都心
桔梗ハイツ西五反田
1LDK/37.87㎡品川区 五反田駅 -
NEW25,980万円1戸公開中ガラス張りのスタイリッシュフォルム
大崎ウエストシティタワーズE棟
3LDK/80.80㎡品川区 大崎駅 -
NEW4,580万円1戸公開中穏やかな日々が続く場所
大森駅前住宅2号棟
2LDK/59.22㎡品川区 大森駅 -
NEW6,490万円1戸公開中活気ある街と繋がる
チュリス武蔵小山
1LDK/42.84㎡品川区 武蔵小山駅 -
NEW8,199万円1戸公開中レトロ×モダン
ディナ・スカーラ品川戸越
1LDK/53.01㎡品川区 戸越銀座駅 -
NEW5,499万円1戸公開中心のゆとりを大切に
ニューハイツ大森
2SLDK/61.07㎡品川区 大森駅














