

音羽サンハイツ
現在募集中1件
最終更新日:2025.09.19
思わずキュン
6,899万円
203号室
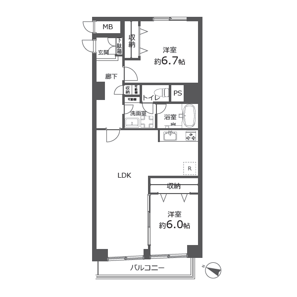
2LDK/62.94
この物件のオススメポイント
- 白を基調とした明るい2LDK✨
- ファミリーやパートナーとの暮らしにおすすめ
- ペットの飼育が可能です
- 護国寺駅徒歩2分の好立地♩
- ゼロレボなら仲介手数料が全額無料!(約234万円オトク!)

-
ご紹介のお部屋は使い勝手のいい2LDKです♫1人暮らしからファミリーまで、家族構成の変化に対応しやすい間取りなので、長くお住まいいただけます。リノベーションが施されて、築年数の経過を感じさせない、美しい空間に生まれ変りました✦ペット飼育も可能ですよ♡
-
リビングダイニングキッチンはL字型で広々としています♫食事をする場所と寛ぐ場所をしっかりと分けられるので、メリハリのある暮らしができそうです♥アクセントクロスがさりげないお洒落を演出してくれています。爽やかで快適なメインルーム♫
-
清潔感たっぷりなキッチンは奥行きがあり、食器棚やカップボードを置くことができそうです。3口コンロにグリルと、作業が捗りそうな設備が整います◎上下に収納棚があるので、散らかりがちなキッチン用品も片付きますね♡
-
約6.0帖のお部屋はバルコニーに面した窓が大きく、実際のサイズよりも広く感じます◎リビングダイニングとの仕切り戸はスライド式なので、開放的にお使いいただけます。収納スぺースもしっかり確保されていますよ✦
-
廊下から出入り可能な洋室は約6.7帖。独立性が高く、リラックスして過ごせそうです◎ダブルベッドを置ける広さがあり、夫婦の寝室にもピッタリです。奥行きのあるクローゼットが備わっていて、沢山の荷物をしまえますよ♡
-
ホワイトを基調とした清潔感のあるサニタリールーム✦洗濯機置き場・独立洗面化粧台・バスルームが備わっていて、身支度が捗ります。洗面化粧台はミラーキャビネット仕様になっていて、細々とした洗面道具も整理整頓できちゃいますね◎
-
トイレは飽きの来ないシンプルなデザインでありながら、アクセントクロスを採用していることで、さりげないお洒落も演出しています✦手洗い一体型で節水にも取り組めますね♪もちろん、温水洗浄便座付きですよ◎
-
音羽通り沿いにマンションはありますが、窓は二重サッシになっているため、騒音は気になりません☆バルコニーはコンパクトなので、洗濯物は浴室乾燥機を活用してみてくださいね♪
この記事を書いた撮影ライターのリアルな感想
治安が良く、緑豊かな護国寺駅。池袋駅まで電車で数分という立地の良さも魅力的です。今回ご紹介する『音羽サンハイツ』は、そんな護国寺駅から歩いてたった2分の場所に。昭和築ながら何度か修繕工事が行われており、マンション内は綺麗な状態です。オートロックを完備しているので女性や小さなお子さまでも安心してお過ごしいただけるはず。新耐震基準に適合しているのも嬉しいですね。今回ご紹介するのは2階部分の2LDK。白を基調としたシンプルかつ明るい空間です。レイアウトのしやすいデザインなので、自分好みのお部屋で新生活をスタートできますよ!全体的にゆったりとした間取りになっていて、ご家族全員がのびのび暮らせるお部屋だと感じました♩ 撮影・ライター:mii【25I18】
ゼロレボなら仲介手数料が全額無料
(約234オトク!)
仲介手数料無料のしくみを知る
月々支払いするローンの目安
181,999円/月
※ローンの目安は、頭金ゼロ、借入年数35年、都市銀行・変動金利0.595%(優遇利用を想定。)審査内容により、融資の一部または全部をご利用いただけない場合がございます。予めご了承ください。
- ご内見やご相談も無料です
- 営業時間内(9:30~20:30)ならすぐお返事いたします!
※時間外のお問い合わせは、翌日営業開始後順次お返事いたします。
- 価格
- 6,899
- 所在階
- 2
- 間取り
- 2LDK
- 専有面積
- 62.94
- バルコニー
- 5.25
- 管理費
- 14,839
- 修繕積立費
- 11,781
- リノベーション
- アフターサービス保証付
- 住宅ローン控除対象
動画でルームツアー
動画はありません
過去掲載物件アーカイブ
12F 59.59

こちらがメインルームとなります。明るい木目調のクロスを使用することで空間にアクセントをプラス☆パステルカラーの家具を置くと可愛らしいテイストに、ダークカラーを用いるとナチュラルモダンな空間に変身♪ご自身のセンスをたっぷり詰め込んでお洒落空間を造ってくださいね❤

キッチンは対面式を採用しています。コンロの前面は壁になっているので、油がはねてお部屋が汚れてしまうことはありません。忙しい時間帯でも3口コンロを賢く利用すれば、一度に複数品目を作ることができちゃいます。食洗機や浄水器一体型水栓など便利な設備も備わっているので、快適なお料理時間を送ってくださいね。

キッチンの前面にはカウンターを設置。出来上がったお料理の配膳がしやすいメリットがあるんです。お子様がいらっしゃる方は、お子様に配膳のお手伝いをしてもらうのも良いですね。椅子を置けばお食事スペースに変身。夜はバー気分で晩酌なんていかがでしょう🍷

洗面化粧台はシンプルな1面鏡タイプ。混雑が予想される朝の時間帯は、譲り合ってご利用くださいね。クロスは植物の絵が描かれたデザイン♥思わずキュンとしてしまう可愛らしさですよ。小窓を開ければ換気をすることが可能。湿気がこもるのを防ぐことができるのは嬉しいですね。

洋室は完全独立空間とメインルームに隣接したお部屋の2部屋があります。こちらのお写真はメインルームに隣接した洋室です。スライドドアを開けっぱなしにしてメインルームの一部として利用したり、キッズルームにしたりなど使い方は様々。ライフスタイルに合わせて利用方法を変更してくださいね♪

メインルームに隣接した洋室にはワイドクローゼットを完備。ハンガーパイプだけでなく可動棚が備わりファッション小物をしまうことも出来ますよ。お部屋は南東向きで陽当たりが良いですが、こちらのクローゼットにしまえば大切なアイテムが日焼けすることも防げます。
外観/共用部/周辺環境
マンション概要
- 所在地
- 文京区音羽1-16-8
- 築年数
- 昭和55年/1980年10月
- 構造
- 鉄骨鉄筋コンクリート造
- 階数
- 13階建
- 土地
- 所有権
- 総戸数
- 31戸
- 分譲会社
- 株式会社三建不動産
- 管理会社
- 新日本管財株式会社
- 駐車場
- 無 (来客用駐車場有:無償 ※一時停車使用に限る)
- 駐輪場
- 有 (大人:3,000円/6ヶ月、小学生迄:1,500円/6ヶ月)
- バイク置場
- 有 (6,000円/6ヶ月 ※排気量400cc迄。前期:1~6月、後期:7~12月)
- ペット飼育
- 可 (細則有)
- 事務所使用
- 不可
- 学区(小学校)
- 関口台町小学校
- 学区(中学校)
- 音羽中学校
- 共用・設備
-
- エレベーター
- オートロック
- 防犯カメラ
- 24時間ゴミ出し可
- 24時間セキュリティ
- 備考
- 2013年 耐震補強工事実施済み
- 新耐震基準適合
- 耐震補強工事実施済
ACCESS
- 東京メトロ有楽町線 『護国寺』駅
- 徒歩3分
- 東京メトロ有楽町線 『江戸川橋』駅
- 徒歩10分
- 東京メトロ丸ノ内線 『茗荷谷』駅
- 徒歩12分