 
       
      ライオンズマンション経堂第2
現在募集中1件
最終更新日:2025.10.31
北沢川緑道を眺めながら
7,190万円
306号室
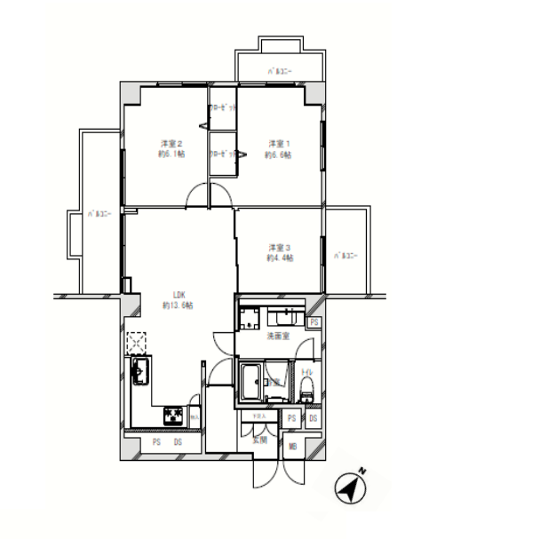
3LDK/72.02
現在リノベーション⼯事中です!
完成予定日
                                      完成後にお写真を公開いたしますので、少々お待ちください!
                                      ⼯事完成前のご内⾒ももちろん可能です。
                                      リノベーション⼯事完了後にご連絡が欲しい⽅もお気軽にお問い合わせください。
                                    
ゼロレボなら仲介手数料が全額無料!(約243万円オトク!)

ゼロレボなら仲介手数料が全額無料
(約243 オトク!)
オトク!)
仲介手数料無料のしくみを知る
月々支払いするローンの目安
189,676円/月
※ローンの目安は、頭金ゼロ、借入年数35年、都市銀行・変動金利0.595%(優遇利用を想定。)審査内容により、融資の一部または全部をご利用いただけない場合がございます。予めご了承ください。
- ご内見やご相談も無料です
- 営業時間内(9:30~20:30)ならすぐお返事いたします!
 ※時間外のお問い合わせは、翌日営業開始後順次お返事いたします。
- 価格
- 7,190 
- 所在階
- 3 
- 間取り
- 3LDK
- 専有面積
- 72.02 
- バルコニー
- 10.54 
- 管理費
- 19,450 
- 修繕積立費
- 11,310 
- リノベーション
動画でルームツアー
動画はありません
外観/共用部/周辺環境
マンション概要
- 所在地
- 世田谷区宮坂3-7-6
- 築年数
- 昭和48年/1973年8月
- 構造
- 鉄筋コンクリート造
- 階数
- 7階建
- 土地
- 所有権
- 総戸数
- 56戸
- 分譲会社
- 大京観光株式会社
- 管理会社
- 株式会社大京アステージ
- 駐車場
- 有 (16,000円~22,000円/月)
- 駐輪場
- 有 (300円/月)
- ペット飼育
- 可 (猫可・居室内で飼育できる小動物のみ ※細則有)
- 事務所使用
- 不可
- 学区(小学校)
- 赤堤小学校
- 学区(中学校)
- 松沢中学校
- 共用・設備
- 
                      - エレベーター
- 宅配BOX
- 防犯カメラ
 
- 長期修繕計画有
ACCESS
- 小田急線 『経堂』駅
- 徒歩5分
- 小田急線 『豪徳寺』駅
- 徒歩11分
 
           
                                           
                                           
                                           
                                           
                                           
                                           
                                           
                                           
                                           
                                           
                                           
                                           
                                           
                                           
                                           
                                           
                                           
                                           
                                           
                                           
                                           
                                           
                                           
                                           
                                           
                                           
                                           
                                           
                                           
                                           
                                           
                                           
                                           
                                           
                                           
                                           
                                           
                                           
                                           
                                           
                                           
                                           
                                           
                                           
                                           
                                           
                                           
                                           
                                           
                                           
                                           
                                           
                                           
                                           
                                           
                                           
                                           
                                           
                                           
   
   
   
   
   
   
   
   
   
   
   
   
   
   
   
   
   
   
   
   
   
   
   
   
                 
                 
                 
                 
                 
                 
                 
                 
                 
                 
                