
1LDK
1LDK
特徴ピックアップ
- 麻布十番を代表とするシンボルタワーレジデンス✧
- 住友不動産旧分譲「シティタワー」シリーズ
- 目に飛び込む景色が暮らしを彩るインテリアに☀
- ハイレベルなフルリノベーション物件!
編集部の部屋レポ
ゼロレボ編集部が実際に現地を訪れました。
写真や図面だけじゃわからない
リアルな空気感を全力でお届けします!
-
1 / 8
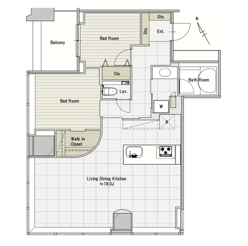
都会暮らしにぴったりの2人向け1LDK。約14.8帖のメインルームは新規フルリノベーションによって生まれ変わり、電気式暖炉や木目天井、お洒落な飾り棚など、暮らしを彩るデザインが随所に♥細部までこだわった空間に仕上がっています。
-
2 / 8
21階に位置するお部屋は、何と言っても眺望の良さが魅力。 メインルームの壁一面に配された大きな3面のFIX窓からは、まるで展望台にいるかのような開放感と絶景が毎日楽しめますよ。朝日や夜景も暮らしの一部として、贅沢な時間を演出してくれそう✦
-
3 / 8
開放感あふれる対面型キッチンは、料理をしながらリビングダイニングを見渡せるレイアウト。たっぷりのカップボードで調理器具や家電もすっきり収納でき、毎日の料理がよりスムーズに。開放感と機能性が両立した、暮らしやすさ抜群のキッチンです。
-
4 / 8
約6帖の洋室は、バルコニーに繋がる大きな窓から光と風を取り込み、明るく開放的な空間。メインルーム2基、洋室1基のビルトインエアコン完備で、一年中快適な室温を保てます。窓辺でゆったりくつろぐ時間も心地よく感じられますよ❀
-
5 / 8
洋室には、マルチクローゼットとコンパクトクローゼットを併設。洋服や小物を効率よく整理できるだけでなく、見せる収納としてコーディネートを楽しむことも可能。日々のスタイリングが楽しくなる、ファッション好きにはたまらない空間です。
-
6 / 8
メインルームの入口には、さりげなくウッド調のアクセントウォールを配置。こちらはなんと磁石が付く仕様で、マグネット式の収納やアート、小物、メモなど、暮らしに合わせて自由にカスタマイズできます。ただの壁ではなく、毎日を楽しむための“自分だけのギャラリー”としても活躍!
-
7 / 8
毎日の身支度がもっとスムーズに、もっと楽しくなるサニタリールーム。機能的な洗面化粧台、ランドリー、大容量リネン庫に加え、透明ガラス扉のバスルームが光と開放感を演出しています。ナチュラルテイストに上質なデザインを組み合わせた、暮らしを格上げする空間ですね。
-
8 / 8
玄関は、大容量のシューズクローゼットに加え、扉付き収納をもう一つ設置。棚板の高さ調整が可能で、靴や小物をスマートに整理できる上、スペースも無駄なく活用できます。全体的に収納力が高く、追加で家具を置かなくてもすっきり整った玄関空間を実現できますよ♩
その他の室内・設備写真
ゼロレボ編集部が
お部屋を訪れてみて
今回ご紹介した、『シティタワー麻布十番』21階に位置する1LDK。何と言っても魅力は、この眺望です。北西向きのメインルームの壁一面を占める大きな窓からは、麻布の街並みが一望でき、目に飛び込む景色の開放感に思わず息をのんでしまいました。南向きではありませんが、これだけ大きな窓があるので日中は柔らかな自然光がたっぷり差し込み、電気を点けずとも明るく爽やかな印象です。新規フルリノベーション済みのお部屋は、マグネットが付くウッドウォールの遊び心、ブラックの透け感ある扉の飾り棚、さらにマルチクローゼットまで、細部にまでこだわりが光ります。思わず友人を招きたくなる、そんな居心地の良さ✦ぜひ現地で、この開放感とデザインの美しさを体感してみてくださいね♩ ライター:mao【25J28】
もっと見る毎月の支払い予想シミュレーション
- ローン支払い目安
- 659,513円/月
- 管理費
- 15,753円/月
- 修繕積立金
- 21,280円/月
- 合計
- 696,546円/月
※ローンの目安は、頭金ゼロ、借入年数35年、都市銀行・変動金利0.595%(優遇利用を想定。)審査内容により、融資の一部または全部をご利用いただけない場合がございます。予めご了承ください。
住戸概要
- 価格
- 25,000

- 所在階
- 21

- 間取り
- 1LDK
- 専有面積
- 55.70

- バルコニー
- 5.52

- 管理費
- 15,753

- 修繕積立費
- 21,280

- 管理協力金
- 1,000円/月
- リノベーション
- アフターサービス保証付
先行公開の速報物件です
詳細レポート準備中
ご希望があれば優先して作成します。ご内見は可能です。

1LDK
1LDK
先行公開の速報物件です!
詳細レポート準備中
- 内見してみたい
- もっと詳しく知りたい
- 記事が完成したら連絡してほしい
ご希望があれば優先して作成します。ご内見は可能です。
毎月の支払い予想シミュレーション
- ローン支払い目安
- 712,275円/月
- 管理費
- 16,053円/月
- 修繕積立金
- 14,290円/月
- 合計
- 742,618円/月
※ローンの目安は、頭金ゼロ、借入年数35年、都市銀行・変動金利0.595%(優遇利用を想定。)審査内容により、融資の一部または全部をご利用いただけない場合がございます。予めご了承ください。
住戸概要
- 価格
- 27,000

- 所在階
- 22

- 間取り
- 1LDK
- 専有面積
- 57.01

- バルコニー
- 5.52

- 管理費
- 16,053

- 修繕積立費
- 14,290

- 備考
- 管理費にインターネット利用料1,227円、CATV利用料42円、緊急地震速報配信サービス利用料284円を含む
- 管理協力金
- 1,000円/月
- リノベーション
- 住宅ローン控除対象
シティタワー麻布十番建物全体と周辺環境
アクセス
- 都営大江戸線/東京メトロ南北線 『麻布十番』駅 徒歩5分
- 都営大江戸線 『赤羽橋』駅 徒歩5分
- 都営三田線 『芝公園』駅 徒歩11分
物件概要
- 物件名
- シティタワー麻布十番
- 所在地
- 港区三田1-6-3
- 築年数
- 平成21年/2009年6月
- 構造
- 鉄筋コンクリート造
- 階数
- 地下2階付 38階建
- 土地
- 所有権
- 総戸数
- 501戸
- 分譲会社
- 住友不動産株式会社
- 管理会社
- 住友不動産建物サービス株式会社
- 駐車場
- 有 (39,000円~63,000円/月)
- 駐輪場
- 有 (300円~1,000円/月)
- バイク置場
- 有 (3,000円~5,000円/月)
- ペット飼育
- 可 (2匹迄、体高40cm以下もしくは体重10kg以下に限る ※細則有)
- 事務所使用
- 不可
- 学区(小学校)
- 赤羽小学校
- 学区(中学校)
- 三田中学校
- 共用・設備
-
- エレベーター
- オートロック
- 宅配BOX
- トランクルーム
- 防犯カメラ
- 24時間有人管理
- クリーンステーション
- プライベートガーデン
- 各階ダストステーション
- 3重セキュリティ
- 備考・その他
- 2025年7月 大規模修繕工事実施済み
〈24F・25F〉
スカイラウンジ
〈3F〉
ゲストルーム
〈1F〉
グランドラウンジ、コンシェルジュサービス、車寄せ
〈B1F〉
コーチエントランス、キッズルーム、コミュニティホール
コンシェルジュサービス:8:00~20:00
三輪車等置場:1,000円/月
トランクルーム:2,000円~8,000円/月
インターネット使用料:1,227円/月
CATV利用料:42円
緊急地震速報配信サービス利用料:284円/月
設備・特徴
- 新耐震基準適合
- 制震構造
今見ている物件以外も、
仲介手数料が最大無料。
リノベーションご売却についてもお気軽にご相談ください!
リノベーションご売却もゼロレボにお任せください
無料お問い合わせはこちら
ご希望条件に
ぴったりの
お部屋が
見つかりませんか?
当サイトに掲載していない物件でも、仲介手数料無料または割引でご案内! 条件に合う物件をプロが一緒にお探しします。
港区のおすすめ物件
-
NEW10,980万円1戸公開中憧れの街でシンプルライフ
デュオ・スカーラ西麻布タワーWEST
1LDK/41.41㎡港区 六本木駅 -
NEW11,300万円1戸公開中湾岸のプライベートリトリート
ザ・タワー芝浦
1LDK/58.04㎡港区 日の出駅 -
NEW15,980万円3戸公開中叶える上質な暮らし
パークタワー品川ベイワード
2LDK/79.95㎡港区 品川駅 -
NEW24,900万円1戸公開中港区の落ち着いた生活
三田清風ガーデン
2LDK/90.05㎡港区 麻布十番駅 -
NEW55,000万円1戸公開中羨望を思いのままに
パークコート赤坂ザ・タワー
3LDK/128.78㎡港区 赤坂駅 -
NEW16,990万円1戸公開中駅チカでの暮らし
朝日白金台マンション
3LDK/76.02㎡港区 白金台駅 -
NEW22,500万円2戸公開中ベイエリアのタワーマンション
ワールドシティタワーズブリーズタワー
3LDK/86.21㎡港区 天王洲アイル駅 -
NEW16,300万円1戸公開中坂の上にそびえるビッグコミュニティ
シティインデックス三田伊皿子坂
2LDK/88.86㎡港区 泉岳寺駅



















