
3LDK
3LDK
特徴ピックアップ
- 表参道も渋谷も徒歩圏内♥
- ファミリーにぴったり!ゆとりの3LDK
- 和室から繋がるサンルーム付き☀
- 南西向きにつき日当たり良好
編集部の部屋レポ
ゼロレボ編集部が実際に現地を訪れました。
写真や図面だけじゃわからない
リアルな空気感を全力でお届けします!
-
1 / 2
-
2 / 2
ゼロレボ編集部が
お部屋を訪れてみて
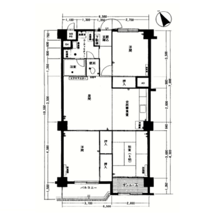
表参道駅から徒歩8分。トレンドと文化が交差する華やかな街並みを抜け、少し奥へ入ると穏やかな空気に包まれた『ソフトタウン南青山』が。表参道ヒルズをはじめとする商業施設を身近にしながら住環境としての落ち着きも享受できる、評価の高いロケーションです。ご紹介するのは1972年9月築・7階建て、総戸数48戸のマンション。派手さはないものの、都心に長く寄り添ってきた安定感のある佇まいが印象的です。お部屋は2階部分、専有面積78.44㎡の3LDK。玄関にはシューズボックスを備え、廊下から直接アクセスできるパウダールームに水回りを集約。生活動線が整理され日々の動きが想像しやすい設計です。洋室は廊下から独立した一室に加え、もう1つの洋室と和室はメインルームを通る配置。ご家族の気配を感じながら過ごせるやわらかな繋がりがありますね。間取りの中心に据えられたメインルームは、住まいのハブとなる存在。壁付けキッチンにより空間を有効に使え、和室から続くサンルームと南西向きバルコニーが室内に心地よい光を取り込みますよ♩周辺環境含め、是非現地にてご確認くださいね✧ ライター:mao【26A07】
もっと見る毎月の支払い予想シミュレーション
- ローン支払い目安
- 263,805円/月
- 管理費
- 16,400円/月
- 修繕積立金
- 37,650円/月
- 合計
- 317,855円/月
※ローンの目安は、頭金ゼロ、借入年数35年、都市銀行・変動金利0.595%(優遇利用を想定。)審査内容により、融資の一部または全部をご利用いただけない場合がございます。予めご了承ください。
住戸概要
- 価格
- 10,000

- 所在階
- 2

- 間取り
- 3LDK
- 専有面積
- 78.44

- バルコニー
- 5.50

- 管理費
- 16,400

- 修繕積立費
- 37,650

- 居住中
現在、この物件に
成約済みのお部屋情報はありません。
ソフトタウン南青山建物全体と周辺環境
アクセス
- 東京メトロ銀座線/千代田線/半蔵門線 『表参道』駅 徒歩8分
物件概要
- 物件名
- ソフトタウン南青山
- 所在地
- 港区南青山6-13-4
- 築年数
- 昭和47年/1972年9月
- 構造
- 鉄筋コンクリート造
- 階数
- 7階建
- 土地
- 所有権
- 総戸数
- 48戸
- 管理会社
- 三井不動前レジデンシャルサービス株式会社
- 駐車場
- 有 (36,000円~39,000万円)
- 駐輪場
- 有 (1,000円/月)
- バイク置場
- 有 (3,000円/月)
- ペット飼育
- 可 (細則有)
- 事務所使用
- 相談 (要相談・細則有)
- 学区(小学校)
- 青南小学校
- 学区(中学校)
- 青山中学校
- 共用・設備
-
- エレベーター
- オートロック
- 防犯カメラ
- 備考・その他
- 2025年:耐震補強工事実施予定有
今見ている物件以外も、
仲介手数料が最大無料。
リノベーションご売却についてもお気軽にご相談ください!
リノベーションご売却もゼロレボにお任せください
無料お問い合わせはこちら
ご希望条件に
ぴったりの
お部屋が
見つかりませんか?
当サイトに掲載していない物件でも、仲介手数料無料または割引でご案内! 条件に合う物件をプロが一緒にお探しします。
港区のおすすめ物件
-
NEW13,000万円1戸公開中光と水のタワーマンション
コスモポリス品川
1LDK/55.35㎡港区 品川駅 -
NEW39,990万円1戸公開中下屋敷から紡がれた格調高きマンション
ウェリス麻布狸穴
3LDK/96.03㎡港区 麻布十番駅 -
NEW17,480万円1戸公開中派手じゃない贅沢
ライオンズマンション広尾南
3LDK/62.06㎡渋谷区 広尾駅 -
NEW17,580万円3戸公開中窓の先に広がる美景
芝浦アイランドケープタワー
2LDK/75.36㎡港区 田町駅 -
NEW6,499万円1戸公開中都会的だけど人情味あふれる暮らし
ウィスタリア元麻布
1LDK/32.64㎡港区 麻布十番駅 -
NEW13,990万円1戸公開中都会のまんなかでもほっとできる場所
サージュ赤坂
2LDK/51.22㎡港区 赤坂駅 -
NEW33,980万円1戸公開中やさしさと洗練が同居する
ヴェーゼント赤坂新坂
2LDK/83.78㎡港区 青山一丁目駅 -
NEW12,480万円1戸公開中憧れの街で
イトーピア南麻布マンション
2LDK/65.36㎡港区 白金高輪駅















