
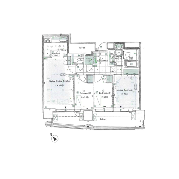
3SLDK
3SLDK
特徴ピックアップ
- パークコートシリーズの高級レジデンス✧
- ファミリー向け♡専有面積76.52㎡・3LDK+S
- 全室バルコニーに面した開放的な住戸
- 高層階につき富士山が望める眺望☀
編集部の部屋レポ
ゼロレボ編集部が実際に現地を訪れました。
写真や図面だけじゃわからない
リアルな空気感を全力でお届けします!
-
1 / 2
-
2 / 2
ゼロレボ編集部が
お部屋を訪れてみて
乃木坂駅から徒歩3分、東京ミッドタウンの緑を間近に感じながら一歩奥へ進むと街の喧騒がふっと遠のくように姿を現す『パークコート赤坂檜町ザタワー』。エントランスへ足を踏み入れると素材感を大切にした空間と落ち着いた照明が迎え、都心にありながらも静謐な空気が流れていました。共用部はホテルライクで、上階へ向かうほどに日常から切り離された感覚が深まります。ご紹介するのは34階部分、専有面積76.52㎡・3LDK+Sのお部屋。3つの洋室は並んで配置され、家族それぞれのプライベート時間が大切にできそうです。メインのリビングダイニングキッチンは約16.4帖とゆとりがあり、お食事部分とくつろぎ部分で自然とゾーニングできる設計。床暖房も完備されており、ご家族そろって過ごせる快適な空間に。さらにサービスルームを備えることで収納やワークスペースなど用途の幅が広がる点も魅力。また、高層階ならではの開放感も特筆すべきポイント!天候に恵まれた日には富士山を望む眺めが日常に溶け込みます。都心立地にありながら、空の広さと静けさを享受できる完成度の高い一邸。ぜひ、気になる方はお気軽にお問い合わせください♪ ライター:hana【25L18】
もっと見る毎月の支払い予想シミュレーション
- ローン支払い目安
- 1,925,780円/月
- 管理費
- 29,840円/月
- 修繕積立金
- 17,980円/月
- 合計
- 1,973,600円/月
※ローンの目安は、頭金ゼロ、借入年数35年、都市銀行・変動金利0.595%(優遇利用を想定。)審査内容により、融資の一部または全部をご利用いただけない場合がございます。予めご了承ください。
住戸概要
- 価格
- 73,000

- 所在階
- 34

- 間取り
- 3SLDK
- 専有面積
- 76.52

- バルコニー
- 17.96

- 管理費
- 29,840

- 修繕積立費
- 17,980

- インターネット接続料
- 1,760円/月
- 居住中
- 住宅ローン控除対象
現在、この物件に
成約済みのお部屋情報はありません。
パークコート赤坂檜町ザタワー建物全体と周辺環境
アクセス
- 東京メトロ千代田線 『乃木坂』駅 徒歩3分
- 東京メトロ日比谷線/都営大江戸線 『六本木』駅 徒歩6分
- 東京メトロ銀座線/半蔵門線/都営大江戸線 『青山一丁目』駅 徒歩12分
物件概要
- 物件名
- パークコート赤坂檜町ザタワー
- 所在地
- 港区赤坂9-4-1
- 築年数
- 平成30年/2018年2月
- 構造
- 鉄筋コンクリート造
- 階数
- 地下1階付 44階建
- 土地
- 所有権
- 総戸数
- 322戸
- 分譲会社
- 三井不動産レジデンシャル株式会社
- 管理会社
- 三井不動産レジデンシャルサービス株式会社
- 駐車場
- 有 (50,000円~81,000円/月)
- 駐輪場
- 有 (100~400円/月 ※専用ステッカー貼付)
- バイク置場
- 有 (1,500~2,000円/月)
- ペット飼育
- 可 (成長時体高40cm体重15kg以内の抱き抱えられる小型犬2匹迄 ※細則有)
- 事務所使用
- 不可
- 学区(小学校)
- 赤坂小学校
- 学区(中学校)
- 赤坂中学校
- 共用・設備
-
- エレベーター
- オートロック
- 宅配BOX
- トランクルーム
- 防犯カメラ
- 24時間ゴミ出し可
- ペット洗い場
- 共用・テナント
-
- 児童遊園
- 保育園
- 居宅介護施設
- 備考・その他
- <屋上>スカイデッキ
<27F>ビューラウンジ・ゲストルーム
<3F>グリーンブリッジ・ラウンジ・パーティーライブラリー・フィットネスジム・プライベートラウンジ
<1F>エントランスホール・ラウンジ・コンシェルジュカウンター・車寄せ
<B1>来客用駐車場(200円/30分)
インターネット利用料:1,760円/月
設備・特徴
- 新耐震基準適合
- 制震構造
今見ている物件以外も、
仲介手数料が最大無料。
リノベーションご売却についてもお気軽にご相談ください!
リノベーションご売却もゼロレボにお任せください
無料お問い合わせはこちら
ご希望条件に
ぴったりの
お部屋が
見つかりませんか?
当サイトに掲載していない物件でも、仲介手数料無料または割引でご案内! 条件に合う物件をプロが一緒にお探しします。
港区のおすすめ物件
-
NEW13,300万円1戸公開中運河沿いに佇むタワーマンション
ベイクレストタワー
2LDK/62.42㎡港区 品川駅 -
NEW10,480万円1戸公開中運河沿いのスロウな生活
天王洲デュープレックス
2LDK/53.98㎡港区 品川駅 -
NEW5,780万円1戸公開中都心の華やぎと静寂がここに
クラウン西麻布
1LDK/36.40㎡港区 六本木駅 -
NEW5,690万円1戸公開中表参道を庭にする、爽やかな角部屋ライフ
ドム南青山
1LDK/33.92㎡港区 外苑前駅 -
NEW5,499万円1戸公開中華やかさに親しみを
マンション麻布コート
1LDK/31.29㎡港区 麻布十番駅 -
NEW21,800万円1戸公開中ペットと一緒に都会暮らし
常盤松ハウス
2LDK/77.23㎡港区 表参道駅 -
NEW15,980万円1戸公開中便利さの虜に
品川Vタワー
1SLDK/53.00㎡港区 品川駅 -
NEW35,000万円1戸公開中静けさに艶が灯る
ミッドガーデン赤坂氷川
2LDK/70.33㎡港区 赤坂駅













