
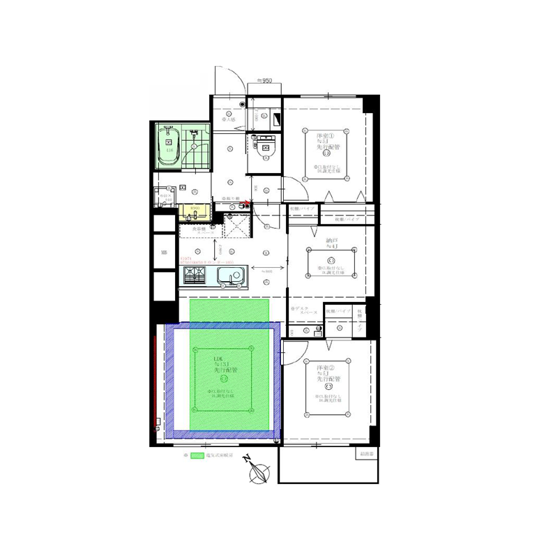
2SLDK
2SLDK
特徴ピックアップ
- ファミリータイプの3LDK
- 南西向きで陽当り良好です!
- ozi design works inc.監修の内装リフォーム済✨
- 高級住宅街、南平台に佇むヴィンテージマンション
編集部の部屋レポ
ゼロレボ編集部が実際に現地を訪れました。
写真や図面だけじゃわからない
リアルな空気感を全力でお届けします!
-
1 / 8
子育て中のファミリーにもオススメな3LDKをご紹介します。国内外の商業空間デザインを手掛けるozi design works inc.監修の新規内装リノベーションが実施された、高級感と居心地の良さが両立された空間です。
-
2 / 8
折り上げ天井とコーブ照明・コーニス照明・ダウンライトが明るさと奥行きをもたらしています。壁面にはタイルが使用され、上品な雰囲気に。大きなアートや壁掛けテレビが良く映えそう。床暖房を搭載しており、冬でも快適です。
-
3 / 8
開放的なフルフラットキッチンに新規交換されています。お料理をしながらお部屋全体を見渡すことができ、ご家族との会話が弾みますね。シンクの右下にスライドオープンの食洗機があり、余洗いしたお皿を屈まずに入れられますよ。腰への負担が少ない上に、手洗いよりも高い節水効果が望めます◎
-
4 / 8
洋室はおよそ5.0帖・およそ5.0帖・およそ4.0帖の3部屋。全ての洋室にクローゼットがあり、お洋服をすっきり整頓できますよ。こちらはメインルームに面したおよそ5.0帖の洋室。南西からの光が射し込む明るい空間です。
-
5 / 8
およそ4.0帖の洋室には屋外へ繋がる窓はありませんが、室内窓が備わっています。それだけでもお部屋の圧迫感が大きく変わりますよね✨こちらのカウンターはデスクとしても使用可能。幅も奥行きもあるので、デスクトップパソコンを置いても快適に作業できそう。
-
6 / 8
玄関左手にはシューズインクローゼットが。奥行きがあり、ベビーカーを折りたたんで収納できそうです。また、可動棚になっているので靴の高さに合わせて棚板の位置を調節可能。ハイヒールやロングブーツも綺麗に保管できます。
-
7 / 8
南西向きのバルコニーは3.19㎡とコンパクト。シーツやお布団などの大きなお洗濯物は、バスルームの浴室換気乾燥機を使って乾かすのが良さそうですね。前面がコインパーキングになっているので、陽差しが遮られず陽当たり抜群です。
-
8 / 8
洗面化粧台は、鏡の角度が変えられると人気の3面鏡タイプ。コンセントが2箇所にあるので、ドライヤーをしながら電動歯ブラシの充電をするなど同時に作業を行えます。洗濯機置き場の横にスペースがあるので、リネン用のラックを置くことも可能。
その他の室内・設備写真
ゼロレボ編集部が
お部屋を訪れてみて
いつの時代も若者のトレンドが集まる街として賑わう渋谷駅。現在は再開発工事に加えて外国人観光客も増え、より多種多様な人から人気を集めています。
『南平台マンション』が位置するのは、そんな渋谷駅のイメージとは少し雰囲気の違う南平台エリア。高級マンションやヴィンテージマンションが並ぶ高級住宅街です。高い建物が少ないので空が広く感じられ、ここが渋谷とは信じられないほど穏やかな時間が流れています♫
そんな街並みの中で圧倒的な存在感を放つ『南平台マンション』。角地に建っているので周囲の建物に日差しを遮られにくく、採光面で期待ができます。周辺の建物よりも資産価値が下がりにくいというメリットもあるんですよ。
今回は明るく高級感のある3LDKをご紹介しました。ナチュラルテイストながら、照明やクロスにこだわりを感じるオシャレなお部屋。置く家具にこだわれば、もっと素敵な空間になりそう。暮らす人の気持ちに寄り添った配置になっていて、忙しい毎日をサポートしてくれますよ。収納の多さも魅力的。ぜひ一度、ご内覧ください。 ライター:mii【26B10】
毎月の支払い予想シミュレーション
- ローン支払い目安
- 274,357円/月
- 管理費
- 13,000円/月
- 修繕積立金
- 15,700円/月
- 合計
- 303,057円/月
※ローンの目安は、頭金ゼロ、借入年数35年、都市銀行・変動金利0.595%(優遇利用を想定。)審査内容により、融資の一部または全部をご利用いただけない場合がございます。予めご了承ください。
住戸概要
- 価格
- 10,400

- 所在階
- 3

- 間取り
- 2SLDK
- 専有面積
- 65.45

- バルコニー
- 3.19

- 管理費
- 13,000

- 修繕積立費
- 15,700

- 組合費
- 300円/月
- リノベーション
現在、この物件に
成約済みのお部屋情報はありません。
南平台マンション建物全体と周辺環境
アクセス
- 京王井の頭線 『神泉』駅 徒歩9分
- JR山手線/埼京線/湘南新宿ライン/京王井の頭線/東急東横線/田園都市線/東京メトロ銀座線/半蔵門線/副都心線 『渋谷』駅 徒歩11分
- 東急東横線 『代官山』駅 徒歩15分
物件概要
- 物件名
- 南平台マンション
- 所在地
- 渋谷区南平台町17-1
- 築年数
- 昭和46年/1971年11月
- 構造
- 鉄筋コンクリート造
- 階数
- 地下1階付 3階建
- 土地
- 所有権
- 総戸数
- 76戸
- 分譲会社
- 日商岩井株式会社
- 管理会社
- 株式会社東急コミュニティ
- 駐車場
- 有 (30,000円~35,000円/月)
- 駐輪場
- 有 (1,500円/月)
- バイク置場
- 無
- ペット飼育
- 不可
- 事務所使用
- 不可
- 学区(小学校)
- 神南小学校(調整区域:猿楽小学校)
- 学区(中学校)
- 松濤中学校(調整区域:鉢山中学校)
- 共用・設備
-
- エレベーター
- 夜間オートロック
- 防犯カメラ
- 備考・その他
- 組合費:300円/月
設備・特徴
- 長期修繕計画有
今見ている物件以外も、
仲介手数料が最大無料。
リノベーションご売却についてもお気軽にご相談ください!
リノベーションご売却もゼロレボにお任せください
無料お問い合わせはこちら
ご希望条件に
ぴったりの
お部屋が
見つかりませんか?
当サイトに掲載していない物件でも、仲介手数料無料または割引でご案内! 条件に合う物件をプロが一緒にお探しします。
渋谷区のおすすめ物件
-
NEW9,480万円1戸公開中奥渋に息づく余白
ライオンズマンション渋谷
1LDK/42.61㎡渋谷区 神泉駅 -
NEW55,500万円1戸公開中華やかさも、雄大さも、手に入れる
ラ・トゥール渋谷宇田川
3LDK/69.51㎡渋谷区 渋谷駅 -
NEW19,800万円1戸公開中魅力的すぎるこの立地
シティハウス恵比寿伊達坂
2LDK/64.17㎡渋谷区 恵比寿駅 -
NEW22,500万円1戸公開中都会の落ち着いた生活
パークハウス広尾
2LDK/78.75㎡渋谷区 恵比寿駅 -
NEW17,800万円1戸公開中特別を日常に
シティハウス広尾南
2LDK/54.79㎡渋谷区 広尾駅 -
NEW16,800万円1戸公開中緑に抱かれる、広尾の特等席
広尾ガーデンフォレスト桜レジデンス
2LDK/63.83㎡渋谷区 広尾駅 -
NEW4,990万円1戸公開中洗練に包まれる日常
ハイネス恵比寿
1LDK/34.20㎡渋谷区 恵比寿駅 -
NEW34,700万円1戸公開中心にゆとりがある暮らし
プラウド恵比寿ヒルサイドガーデン
3LDK/75.00㎡渋谷区 恵比寿駅















