
2LDK
2LDK
特徴ピックアップ
- 東向きにつき、陽当たり良好な2LDK☀
- 大切なペットと一緒に暮らせます🐶😽
- 新規リノベーション済みの清潔感あるお部屋
- 複数駅・路線利用可能な好立地♩
編集部の部屋レポ
ゼロレボ編集部が実際に現地を訪れました。
写真や図面だけじゃわからない
リアルな空気感を全力でお届けします!
-
1 / 8
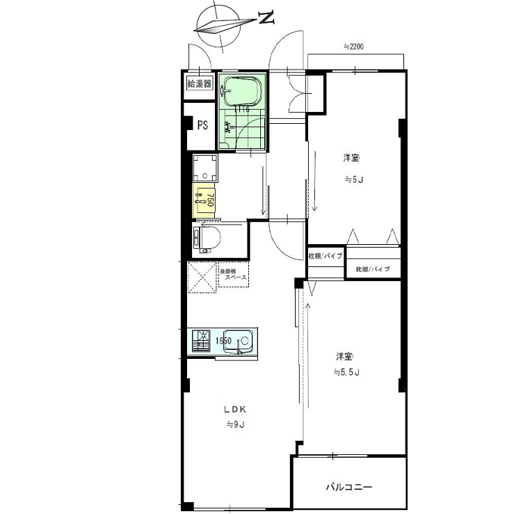
ご紹介する4階部分、専有面積61.60㎡の2LDKのお部屋は、2つの洋室がほぼ同じ広さで2人暮らしに心地よいバランスをもたらします。2025年11月にリノベーションが完了したばかりの室内は、新築のような清潔感に溢れていました✧、さらにペット飼育も可能なため、将来の暮らしの選択肢が広がる住まいです。
-
2 / 8
約9.0帖のメインルームは東向きで、柔らかい朝日が気持ちよく差し込む明るい空間。木目フローリングとホワイトクロスの組み合わせはどんなテイストの家具とも調和。シンプルだからこそ長く愛せる内装デザインです。
-
3 / 8
セミオープンタイプのシステムキッチンは、3口コンロとグリル付きで同時調理もスムーズです。さらに広めのシンクが後片付けのストレスを軽減◎収納力も抜群で、調理器具や調味料もたっぷり収納可能。
-
4 / 8
メインルーム横の約5.5帖の洋室は、大きな掃き出し窓からバルコニーへ直接アクセス可能。スライドドアを開放すると空間が繋がり、開放的なお部屋に様変わりします。ニーズによって使い分けられるのは嬉しいポイント。
-
5 / 8
もう1つの洋室は約5.0帖。日差しは控えめですが、コンパクトな窓があり風通しは良好。大きなクローゼットがあるため、普段使いの服からシーズンオフの荷物まで整理可能。また、デッドスペースのない形なので家具の配置にも困りません◎
-
6 / 8
洗面化粧台やランドリースペース、トイレ、バスルームが一箇所に集まったサニタリースペースは、移動が少なく使いやすい設計。鏡裏収納や洗面台下収納で、洗剤類やドライヤーなどの収納場所にも困りません。
-
7 / 8
バスルームは落ち着きのあるグレーパネルを採用し、上質な雰囲気。シャンプーラックやスライドバーが備わっており、細部までこだわりを感じられました。もちろん、快適な入浴に欠かせない追い焚き機能も完備しているので、ゆったりとしたバスタイムを楽しめます♡
-
8 / 8
温かみのあるブラウン木目のドアが続く廊下は、落ち着いた空気感と清潔さが魅力。各部屋にしっかり扉が付いているため、来客時でも生活空間が視線に入らず、プライバシー面でも安心です。
その他の室内・設備写真
ゼロレボ編集部が
お部屋を訪れてみて
代々木八幡駅と代々木公園駅が最寄りの渋谷区代々木5丁目にあるマンションをご紹介します♪代々木八幡古代住居跡、代々木八幡神社など歴史を感じるスポットがあり、都心でありながらリラックスできそうな住環境なのが魅力♡山手通りの初台坂下交差点より1本入った落ち着いた雰囲気の場所に『代々木第2コーポラス』がありました。建物は鉄骨造の地上5階建てで、総戸数は39戸。自主管理ですが、掃除が行き届いた共用部から大切に住まわれているのが伝わってきます♪お部屋は新規リノベーションされていて、築年数の経過を感じさせません。間取りは使い勝手のいい2LDKで、家族構成の変化にも対応しやすいです。ペット飼育可能なため、将来的に新しい家族を迎える選択肢を持てるのも嬉しいですよね♡ ライター:ana【25K28】
もっと見る毎月の支払い予想シミュレーション
- ローン支払い目安
- 131,876円/月
- 管理費
- 円/月
- 修繕積立金
- 15,000円/月
- 合計
- 146,876円/月
※ローンの目安は、頭金ゼロ、借入年数35年、都市銀行・変動金利0.595%(優遇利用を想定。)審査内容により、融資の一部または全部をご利用いただけない場合がございます。予めご了承ください。
住戸概要
- 価格
- 4,999

- 所在階
- 4

- 間取り
- 2LDK
- 専有面積
- 50.22

- バルコニー
- 11.38

- 修繕積立費
- 15,000

- リノベーション
代々木第2コーポラス建物全体と周辺環境
アクセス
- 小田急線 『代々木八幡』駅 徒歩7分
- 東京メトロ千代田線 『代々木公園』駅 徒歩9分
- 小田急線/東京メトロ千代田線 『代々木上原』駅 徒歩13分
物件概要
- 物件名
- 代々木第2コーポラス
- 所在地
- 渋谷区代々木5-14-3
- 築年数
- 昭和44年/1969年3月
- 構造
- 鉄骨造
- 階数
- 5階建
- 土地
- 所有権
- 総戸数
- 39戸
- 分譲会社
- ニチモプレハブ株式会社
- 管理会社
- 自主管理
- 駐車場
- 有 (20,000円/月)
- 駐輪場
- 有 (500円/年 ※無償のステッカー貼付)
- バイク置場
- 無
- ペット飼育
- 可 (犬猫1匹迄、登録料3,000円/年 ※細則有)
- 事務所使用
- 可 (理事長の承諾必要)
- 学区(小学校)
- 幡代小学校
- 学区(中学校)
- 代々木中学校
- 共用・設備
-
- 防犯カメラ
今見ている物件以外も、
仲介手数料が最大無料。
リノベーションご売却についてもお気軽にご相談ください!
リノベーションご売却もゼロレボにお任せください
無料お問い合わせはこちら
ご希望条件に
ぴったりの
お部屋が
見つかりませんか?
当サイトに掲載していない物件でも、仲介手数料無料または割引でご案内! 条件に合う物件をプロが一緒にお探しします。
渋谷区のおすすめ物件
-
NEW7,990万円1戸公開中都心付近で快適な暮らし
ルセージュ初台
2LDK/51.43㎡渋谷区 幡ヶ谷駅 -
NEW9,290万円1戸公開中大人なあなたに
コンド恵比寿
2LDK/55.46㎡渋谷区 恵比寿駅 -
NEW12,000万円1戸公開中憧れの代官山アドレス
代官山アドレスザ・タワー
1Room/35.55㎡渋谷区 代官山駅 -
NEW4,280万円1戸公開中都心の生活を謳歌する
日興パレス恵比寿
1LDK/52.59㎡渋谷区 広尾駅 -
NEW14,380万円1戸公開中静けさが息づく住まい
シェトワ代々木
3LDK/83.44㎡渋谷区 参宮橋駅 -
NEW6,499万円1戸公開中都会的で穏やかな日常
東高ペアシティ
1LDK/47.25㎡渋谷区 代々木上原駅 -
NEW19,380万円1戸公開中ワンフロア1住戸の贅沢
恵比寿ブルーメ
2LDK/67.03㎡渋谷区 恵比寿駅 -
NEW8,699万円1戸公開中流行が生まれる地で心新たに
ヴァンヴェール渋谷
1LDK/47.92㎡渋谷区 渋谷駅





















