
1LDK
1LDK
特徴ピックアップ
- 東京ミッドタウン徒歩3分&3駅4路線利用可の好立地♪
- 新規リノベ済み1LDK!南西向きの暖かな日差しを感じられます
- 収納豊富で、暮らしやすい間取りです◎
- 事務所利用も可能。赤坂アドレスでビジネスも暮らしもスマートに。
編集部の部屋レポ
ゼロレボ編集部が実際に現地を訪れました。
写真や図面だけじゃわからない
リアルな空気感を全力でお届けします!
-
1 / 8
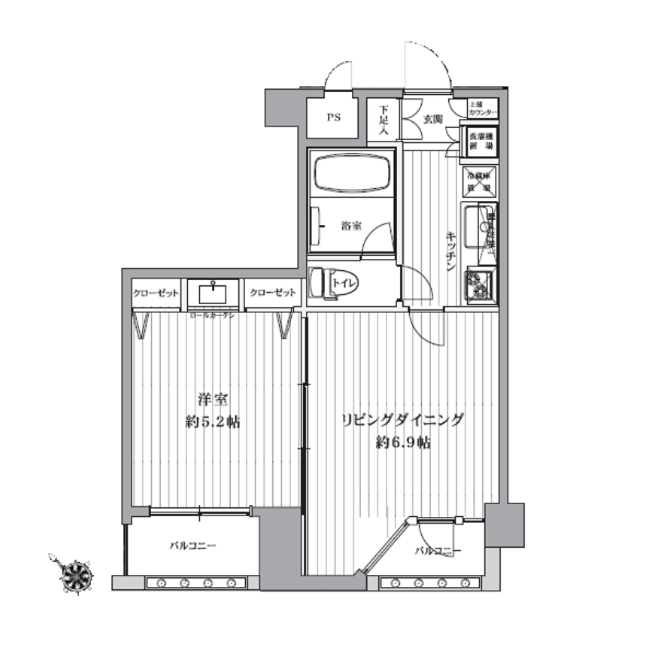
今回ご紹介のお部屋は4階部分に位置する専有面積30.68㎡の1LDKです✧ゆったりとした1人暮らしを叶えたい方にぴったりの間取り!事務所利用も可能なため、フリーランスや個人事業主の方にもおすすめの1室ですよ。
-
2 / 8
キッチンが廊下側に配置されていることでメインルームは広々とした開放感のある空間を実現。シンプルでナチュラルな内装は家具の配置や装飾で個性を演出しやすく、自分らしいレイアウトを自由にお楽しみいただけます♪
-
3 / 8
間仕切りのスライドドアを開ければ洋室とリビングダイニングが自然と繋がり、広々とした1Roomとしても◎フレキシブルな間取りで、来客時にはプライベート空間をさっと隠せるのも嬉しいポイントですね。
-
4 / 8
玄関を入るとすぐ目の前にキッチンスペースがあり、買い物帰りのお片付けがスムーズに行えます。キッチンが独立しているため、調理中のにおいや煙がダイニングルームに広がりにくく、快適な居住空間を保つことができますよ。
-
5 / 8
洋室に設置されたロールカーテンを上げると、シンプルでスタイリッシュなフロートタイプの洗面化粧台が…♥クローゼットの隣に配置されているため、身支度やスタイリングがスムーズに行えるのではないでしょうか。
-
6 / 8
トイレはグレーのタイルデザインで落ち着いた雰囲気を演出。手洗い一体型は節水効果があり省エネ効果が♪サニタリールームは設けられておらず、トイレから直接バスルームへアクセスするコンパクトな空間でした。
-
7 / 8
モノトーンの大理石調パネルがラグジュアリーな印象をもたらすバスルーム。追い焚き機能・浴室乾燥機付きで機能性バッチリです◎温度調整が簡単に行えるので、半身浴を楽しむときには低めの温度に設定してリラックスタイムを満喫してくださいね♡
-
8 / 8
玄関には靴をすっきり収納できるシューズボックスが備わり、清潔感ある印象を保てます。廊下に設置された洗濯機置き場は普段は扉でしっかり目隠しできるため、来客時も気にならず生活感を抑えられますね♪
ゼロレボ編集部が
お部屋を訪れてみて
ご紹介したお部屋は、都心での洗練されたシングルライフを叶える、新規リフォーム済1LDKのお部屋です。約30.68㎡の専有面積には、約6.9帖の広々としたリビングダイニングと5.2帖の洋室が配され、生活と休息をしっかりと分けた快適な間取り設計。ホテルライクな内廊下や高級感ある内装仕様が、日々の暮らしに上質な雰囲気を添えます。リノベーションでは、システムキッチンやユニットバス、ビルトイン洗浄便座付きトイレ、フローリング、クロス、天井ダウンライトの新設などを施し、隅々まで清潔感あふれる空間に一新。収納も充実しており、2つのクローゼットとロールカーテン付きの空間が生活感を上手に隠してくれます。さらに東京ミッドタウン徒歩3分という絶好の立地も魅力。交通利便性はもちろん、都心の華やかなライフスタイルを存分に楽しめる、理想の一室です。 ライター:ari【25E02】
もっと見る毎月の支払い予想シミュレーション
- ローン支払い目安
- 139,289円/月
- 管理費
- 11,360円/月
- 修繕積立金
- 12,890円/月
- 合計
- 163,539円/月
※ローンの目安は、頭金ゼロ、借入年数35年、都市銀行・変動金利0.595%(優遇利用を想定。)審査内容により、融資の一部または全部をご利用いただけない場合がございます。予めご了承ください。
住戸概要
- 価格
- 5,280

- 所在階
- 4

- 間取り
- 1LDK
- 専有面積
- 30.68

- バルコニー
- 3.99

- 管理費
- 11,360

- 修繕積立費
- 12,890

- リノベーション
現在、この物件に
成約済みのお部屋情報はありません。
赤坂ロイヤルマンション建物全体と周辺環境
アクセス
- 東京メトロ千代田線 『乃木坂』駅 徒歩3分
- 東京メトロ日比谷線/都営大江戸線 『六本木』駅 徒歩6分
- 東京メトロ千代田線 『赤坂』駅 徒歩9分
- 東京メトロ銀座線/半蔵門線/都営大江戸線 『青山一丁目』駅 徒歩11分
物件概要
- 物件名
- 赤坂ロイヤルマンション
- 所在地
- 港区赤坂9-5-29
- 築年数
- 昭和52年/1977年5月
- 構造
- 鉄筋コンクリート造
- 階数
- 地下1階付 6階建
- 土地
- 所有権
- 総戸数
- 54戸
- 分譲会社
- 山本産業株式会社
- 管理会社
- ナイスコミュニティ株式会社
- 駐車場
- 有 (40,000円/月)
- 駐輪場
- 有 (200円~300円/月)
- バイク置場
- 有 (3,000円~6,000円/月)
- ペット飼育
- 不可
- 事務所使用
- 可 (管理規約による制限有)
- 事務所使用
- 可 (管理規約による制限有)
- 学区(小学校)
- 赤坂小学校
- 学区(中学校)
- 赤坂中学校
- 共用・設備
-
- エレベーター
- オートロック
- 宅配BOX
- 防犯カメラ
設備・特徴
- 新耐震基準適合
ご希望条件に
ぴったりの
お部屋が
見つかりませんか?
当サイトに掲載していない物件でも、仲介手数料無料または割引でご案内! 条件に合う物件をプロが一緒にお探しします。
港区のおすすめ物件
-
NEW32,500万円2戸公開中ワンランク上の暮らし
東京ツインパークス ライトウィング
2LDK/77.06㎡港区 汐留駅 -
NEW48,500万円1戸公開中上質を極めた麻布の邸宅
パークコート南麻布ヒルトップレジデンス
3LDK/126.99㎡港区 麻布十番駅 -
NEW19,800万円1戸公開中新しい魅力が満載
グランスイート虎ノ門
2LDK/52.46㎡港区 虎ノ門ヒルズ駅 -
NEW22,800万円1戸公開中水面に映るタワーマンション
ワールドシティタワーズアクアタワー
3LDK/89.96㎡港区 天王洲アイル駅 -
NEW29,000万円0戸公開中羨望を思いのままに
パークコート赤坂ザ・タワー
2LDK/68.61㎡港区 赤坂駅 -
NEW39,800万円1戸公開中モダンな愛されタワーマンション
パークコート虎ノ門愛宕タワー(Atago Tower)
2LDK/75.19㎡港区 虎ノ門駅 -
NEW5,980万円1戸公開中駅チカでの暮らし
朝日白金台マンション
1Room/37.17㎡港区 白金台駅 -
NEW31,800万円1戸公開中高台に佇むブランドマンション
パークハウス赤坂氷川
3LDK/84.46㎡港区 赤坂駅














